

屋
顶
天
窗
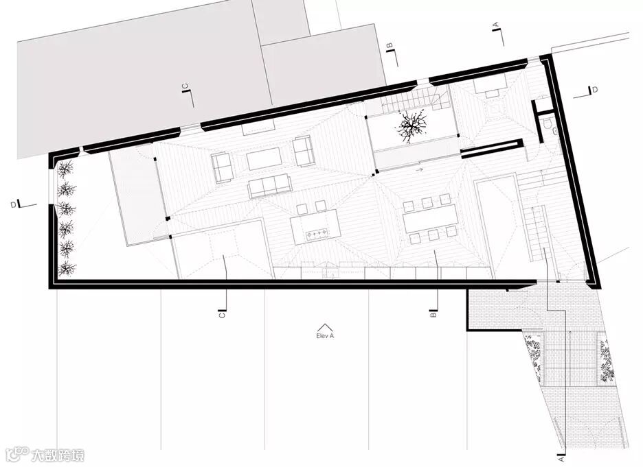
这是伦敦的一个住宅案例,
由一个叫vRRR的建筑工作室设计,
这是一个旧房改造,
最主要的改造手法就是开天窗的屋顶。
天窗的做法是为了解决室内的采光问题,由于其周边建筑比较密集,建筑本身的窗户也很少,采光就成为了一个比较要解决的难题。


天窗充当的是采光井的作用,这栋建筑原本并非住宅,采光度不好会对住户的居住体验产生不良影响。


这样做的好处是,室内在一整天的之间都可以从不同的角度进行采光,甚至可以在卧室真实地体验到早晨的第一缕阳光,也可以在下午就在室内享受日光浴。





此外建筑还改造出了两个下沉式花园。








图文来源于网络

欢迎关注
欢迎转载
欢迎点赞

