

温
情
的
“大
鱼”
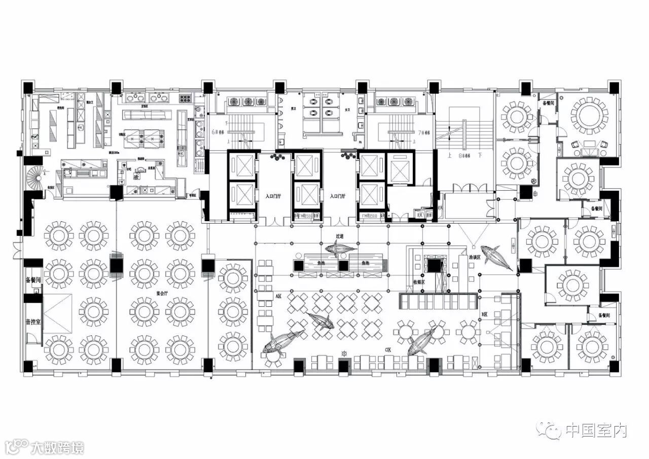
作为湖南的鱼类餐饮品牌,“饭怕鱼”一直注重湘菜的传承和创新,立足于本土品牌以传承地域文化。
设计以湖南永州古建大宅木构传统元素为依托,空间中植入木制仿古片段作为“传统的线”,成为理念上传承写实的部分;将螺纹钢用当代的装置手法重新解构传统大宅构架,作为“当下的线”,成为空间中写意的部分。

入口

收银台
通过两种手法构成传承与创新所需的线索和根基,进而以同一片屋檐下开放式就餐的场景唤起民居故里温情回归的生活体验。
传统手工竹编制作的“大鱼”游弋空中,意为鱼米之乡,通过民间艺术元素的装置手法回应空间主题,倡导恢复传统手工艺的美感意愿,切合品牌定位。

大厅A区

大厅B区

大厅C区
以低成本常见材料打造,大面积白色墙体采用硅钙板喷白漆处理,转角处做铁板包边,协调中式空间所需的留白和商业空间的经济耐用方便维护问题。
完成空调消防设备安装后大厅的层高只有 4 米,采用错落的高低屋顶,满足尺度和面积过大需要的层高,同时兼备民居屋顶自然错落有致的层次感。

大厅C区

大鱼
樟子松原木构架的疤结处颜色过深,与木色对比强烈且易开裂,以深色油漆遮罩达到大宅所需的适度精致感。
低成本的商业空间要克服材质选择面过窄、工艺成本过低和配套设备渠道不专业等一系列问题,同时还要保持空间应有的文化氛围,这是一次很有意义的挑战。

电梯厅

过道

过厅

项目名称:长沙饭怕鱼餐厅
项目地址:湖南长沙市玉兰路长房时代广场
设计单位:水木言(香港)室内设计机构
主创设计:梁宁健
参与设计:金雪鹏 孙琳 李新丽 谢俊 孙飘
设计时间:2016 年 2 月
开放时间:2016 年 8 月
项目面积:1200 平方米
摄 影:廖鲁
主要材料:樟子松 螺纹钢 硅钙板 木纹砖 橡木 仿大理石地砖
关于中国室内设计大奖赛
1998年,中国建筑学会室内设计分会创办了“中国室内设计大奖赛”,这项赛事自创办以来,便以参赛范围广、评选严格、获奖作品水准高而受到业界的高度认可。
《中国室内设计大奖赛优秀作品集》为中国建筑学会室内分会将每年的中国室内设计大奖赛各类获奖作品结集成书。全书内容包括工程类作品(酒店会所类、餐饮类、休闲娱乐类、零售商业类、办公类、文化展览类、市政交通类、教育医疗类、住宅类),方案类作品、新秀奖作品及入选奖作品。内容精彩丰富,给读者设计灵感及启发。

《第十七届中国室内设计大奖赛优秀作品集》
免费获取,自付邮费(快递到付)

《第十八届中国室内设计大奖赛优秀作品集》
现价:65元/本 (包邮)

《第十九届中国室内设计大奖赛优秀作品集》
近期出版,联系预定
购买联系人:祖全兰
联系电话:010-88355882
来源:中国建筑学会室内设计分会(CIID)

欢迎关注
欢迎转载
欢迎点赞

