
主创设计:李保华
项目名称:杭州POPO幼儿园
项目地点:杭州市下城区珠埠里
设计单位:杭州大尺建筑设计有限公司
参与设计:李春亮
设计时间:2016年6月-2017年3月
项目面积:4600平方米
主要材料:地胶板 木饰面板 乳胶漆
popo幼儿园由四幢独立的3层员工宿舍改建而成。原建筑已经荒废多年,柱距、单层建筑面积都不符合幼儿园设计要求,因此整个设计从建筑改造开始。

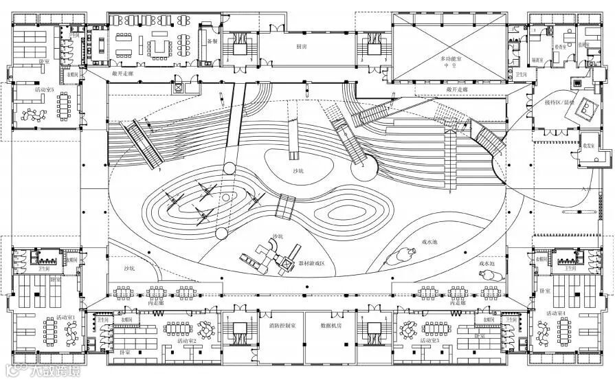
幼儿园共设12班,需要各类专业活动室、图书馆、多功能室等功能空间。原建筑存在问题较多:四幢建筑面积不大,且相距较远,相互没有联系;只有一层和三层能满足活动室层高要求;北面两幢建筑日照不足;楼梯较大,不适合日常使用。
为了解决这些问题,在四幢建筑内侧加建了一个从一层旋绕至三层的环形天桥连廊,起点为园区入口,从北侧一层至二层再绕到南侧三层,并与原建筑内每个楼层形成闭合走廊。天桥连廊构成孩子的奔跑空间,上下楼层任意互动,学生课间在三层活动室活动,不再需要走到一层地面。同时天桥连廊面向中心庭院自然打开,成为庭院的观赏平台。


北侧原地下室设置成为图书馆和多功能活动室,与下沉式庭院相连,延伸了室内空间,解决了采光问题。多功能活动室的庭院设置了较宽的台阶,又可以作为露天小剧场的看台,庭院部分是小舞台。图书馆的庭院设置了较窄的台阶,庭院成为室外阶梯教室。
中心庭院设计成一个巨大的教室,除了可以游戏,还有更多与教学结合的设施。山丘中设置红色管道,除了可以快速横穿整个庭院由活动室到达餐厅,管道内的墙壁上还设计了多个媒体显示屏,展示蚯蚓如何帮助植物生长,雨水如何被土壤和植物吸收等有趣的课题,成为一个自然科学教室。山丘上的风力发电机,除了可以用于环保课程教学,还可以为景观照明供电。山丘下利用坡度设计了水力发电小实验,下沉庭院的高差被设计成斜坡,用于攀岩攀爬的游戏区。二层的天桥连廊设计了一组巨大的滑梯,使庭院成为孩子的游乐场;天桥下的木板浮桥穿过戏水池,成为教室的延伸部分,老师可以带领小朋友在室外上课。


室内空间依据孩子的行为进行设计,延续建筑设计元素,将家具及墙面装饰设计成斜顶小房子等造型,装有这些造型的各个房间运用不同色彩通过走廊连成小街道,形成小城镇的感觉,不同的空间又赋予不同的场景,比如门厅设计成社区中心,体检室设计成医院,门卫室设计成警察局,食堂设计成菜市场等,为小朋友构建一个独立的小人国。
专业活动室与走廊之间的墙被折叠玻璃门所代替,既开阔了视觉空间,同时又有更好的采光。上课的时候将玻璃门打开,走廊就成为教室的一部分,比如美术教室,小朋友在走廊上就可以对着庭院写生。
图书馆室内延续下沉庭院的斜坡台阶,书架设计成台阶状的小山坡,小山坡上设置了几个房子,分别是阶梯教室、录音室、阅览室等,中心的柱子设计成巨大的树,树下有熊窝,小朋友可以坐在熊窝里看书。
本案例获得2017年中国室内设计大奖赛J类(方案之概念创新类)金奖


来源:《中国室内:江西年会实录》

《中国室内》
订阅电话:010-88355882
联系人:祖女士
投稿邮箱:zhongguoshinei@163.com

欢迎关注
欢迎转载
欢迎点赞

