
杭
州
就
试
-
试
衣
间

服饰作为人类特有的劳动成果,它既是物质文明的表征和成果,也具有精神文化的深刻意义。服饰的演化史,从某种意义上说,也是一部感性化了的人类文化发展史。
从服饰起源的那天起,人们就已将其生活习俗、审美情趣、色彩爱好,以及种种文化心态、religion believes,都沉淀于服饰之中,构筑成了服饰文化的精神内涵。
人类社会经过天生地养,以兽皮、棉麻裹衣的蒙昧时期;发展到空前鼎盛的手工针织业时代,现代快节奏的文明时代,以及更强调个体魅力的未来世界。我们希望每个进入到这些空间的人,都能从中有所“收获”,甚至参与到其中。设计师从时代的变迁中提取出灵感要素来塑造了一个个令女孩憧憬的购装体验。
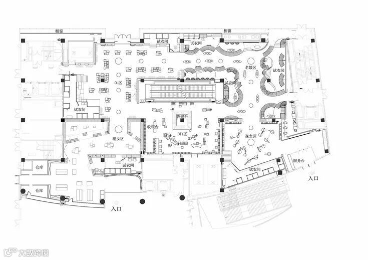
杭州就试-试衣间,位于杭州星光大道商业街二期一楼的大门口位置。在主入口放置了一块醒目的大屏,每一位顾客都可以通过互联网与之互动,这也是就试-试衣间最具特色的地方,通过无处不在的屏幕,打造互联网时代的线下试衣体验。


通过主入口区大大的门拱,进入到森女区。乳白色肌理墙面,白色地面,一个洁白干净的空间,支立着一根根竹竿并以麻绳做连接,而衣架也就此成型。穿衣镜则隐藏在两根竹竿的夹角立面上。空间明亮简洁并用古朴的材料来呼应该空间衣服类型的气质。



名媛区,一个个精致的金丝笼,衣架被放在金丝笼内外两侧,远看仿若被精心呵护的公主蓬蓬裙。高低起伏的弧形平台,增加趣味性的同时又不失活泼可爱。试衣间被巧妙的隐藏在弧形镜面的“蓬蓬裙”内侧。同时每个试衣间区域也提供梳妆、休憩、自拍区,等待着每一位公主。





OL区深灰色地板,混凝土艺术漆墙面,框架轨道灯让整个空间简练、稳重,点缀的壁炉、木饰面柔和了空间质感。每个衣架即是装饰线条有时多功能的衣架,形式美与功能完美结合。




潮女区大色块的撞色,由一根根铁艺曲折而成的彩色货架,在这个强调个性的空间,利用衣架的前后折度来分割成双面挂衣的结构,彩色与折线的拼织来打造幻彩个性的空间以呼应该空间里服装展现的个性。
设计师整合了女装品牌四大类型服装背后的社会与文化含义通过四个空间的不同的设计手法来演绎了女装背后的穿衣哲学并且通过多种陈列的可能性创造了全新的购买体验感。
主创设计:李想
项目名称:杭州就试-试衣间
项目地址:杭州市星光大道
设计单位:唯想国际
参与设计:刘欢 任丽娇 贾媛媛
项目面积:1850平方米
摄影:邵峰
来源:中国建筑学会室内设计分会

欢迎关注
欢迎转载
欢迎点赞

