

流水潺湲,峰林秀美,花海绵延无尽的阳朔就如同一幅虚实难分的写意山水,给人以无限的遐想与眷恋。陈砖瓦砾、石板长街,是岁月对夏棠的馈赠,千年古桥之下遇龙河湍流而过。花梦间携手共向设计,将品牌的第一家精品酒店选址在这清波雾霭之间,以繁花为梦,契合心灵的悠然。酒店的整体设计结合了历史与文化元素,寄情于景,返璞归真。
设计开始于一个四面通透的毛坯框架,设计师从建筑开始着手,从景观到室内,软装,进行了全面的设计规划与改造。建筑外立面采用白色的肌理涂料搭配韵律的木纹格栅,形成协调的序列性,不但具有传统的审美,还极具度假感。



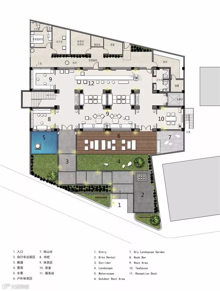
庭院借鉴中式园林的理念,院落用三米高的竹林进行围合,塑造出礼仪层次,确保了庭院的独立性与私密性。酒店南侧有一栋原始建筑,为了避免其影响庭院的景致,设计师将这一范围内竹林高度提升至六米,达到完美的障景效果。移步庭院,空间回合婉转,景观层层递进,水榭、花木相映成趣,一步一景,步行景深。



大堂采用对称的设计手法,传达出新中式的秩序美学。简洁的线条则充满现代时尚感,在演绎传统的同时,也更加符合现代人的审美方式。清雅低调的木质材料,打造的书吧,茶室,呈现出沉静的气韵,镂空屏风与光影相映成趣,散发着素雅的东方气质。


留白是中国传统艺术的精髓,虚实相生,皆成妙境。将其融入室内设计当中,不仅拓宽了空间的层次布局,更强调艺术氛围的营造。在营造情景的同时巧妙地融合地域特性,强调文化在空间中的力量。







酒店共有26间客房,根据不同的朝向景观和面积进行合理的划分。设计师提取出具有代表性的地域色彩应用在客房区域,创造不同的情境体验,使空间更具自然的灵动与生机。大面积的落地窗将自然景观引入室内,临窗而立,将景致尽收眼底。客房沿用简洁、雅致的设计笔触,让当代的设计理念,结合有拙性的物件,形成视觉上的碰撞与冲突,以情寄物,以物传情,赋予空间灵魂。客房采用了智能化系统,配合温馨的氛围照明,意境之余,更多的是舒适。

酒店顶层设置了一处观景庭院,放眼远眺,是一望无际的山景,缭绕在云雾间。淡然的幽蕴气息带来宁静的空间意境,那是人与自然的和谐境界。有景如此,足以让身心融合于自然中,游走于文化间,远离喧嚣,享受心灵的自由。繁花若梦,悠然其间。

主创设计:姜晓琳 闵耀 王东磊 曲云龙
项目地址:桂林阳朔县
设计单位:共向设计
参与设计:陈马贵 宋森
项目面积:2800平方米
摄影:井旭峰
主要材料:木饰面 玉芙蓉大理石 黑色拉丝不锈钢 木模混凝土 毛石 肌理涂料
来源:中国建筑学会室内设计分会

欢迎关注
欢迎转载
欢迎点赞

