





链家网是集房源信息搜索、产品研发、大数据处理、服务标准建立为一体的国内领先且重度垂直的全产业链房产服务平台。目前,链家网线上房源已覆盖北京、上海、广州、深圳、天津、成都、青岛、重庆、大连等22个城市。在房产O2O服务领域,链家网旨在通过不断提高服务效率、提升服务体验,为用户提供更安全、更便捷、更舒心的综合房产服务。
链家网新办公楼位于北京市海淀区的上地五街,设计师在原来较为破旧的外立面上尽可能的扩大窗洞口,增加室内采光量,同时在外立面重新设计整体的玻璃幕墙和醒目的门头入口。






室内空间在视觉上主要采用了链家网的企业LOGO绿色和令人具有亲切感的木饰面搭配。一层为主要接待面试以及餐饮娱乐空间。前厅入口的两个原结构柱一度成为设计中的视觉困扰,而后设计师运用结构构成手法将两个柱子赋予不同饰面材料后成功将其融入成空间装饰的一部分。
面试空间为几个高低错落的玻璃盒子,既相互独立又通过共同穿插在一整面灰砖墙上形成一体。面试间内透过大小不一的洞口眺望便是自然景观的绿植与流水。对面则是长达6.5米的电子触摸屏,时刻记录着链家房产的实时交易情况。




餐饮娱乐空间运用了较为轻快的装饰手法,色彩绚丽的墙面手绘搭配清新的木饰面以及绿色家具的点缀,时刻围绕链家网轻松愉悦的主题。
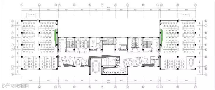
二层到五层为开敞办公空间,由于建筑形式的限制,空间上形成两侧大中间长走廊的形态,于是设计师将工位集中放置在东西两侧大开敞空间,在中间的走廊空间上将封闭会议室与开敞站立会议区交错结合。同时为了避免员工从东走到西的枯燥无味,一方面在地铺上做足了动感文章,一方面将汇集人群的休闲茶水区域设置在走廊中部。
每层的茶水区域都各具特色,有开敞的休闲吧台也有可以自由穿梭的“水上空间”。四层电梯出口处长达12米的电子屏幕更是成为空间的一道风景。




主创设计:张晓亮 王媛媛
项目名称:北京链家网新办公楼改造
项目地址:北京市海淀区上地五街
设计单位:北京艾迪尔建筑装饰工程股份有限公司
参与设计:莱依 唐哲 曹天宇 吴子荣
项目面积:约10000平方米
主要材料:木饰面玻璃
来源:中国建筑学会室内设计分会

欢迎关注
欢迎转载
欢迎点赞

