
▲ 外观
中国的水墨画历史悠久,传承深远,体现在“计白当黑”的艺术形象中,简约朴素的画面下寓意丰富,以极少的要素传达最多的信息,颇具“无画处皆成妙境”之意。
项目名称:厦门中海 •上湾销售中心
项目业主:漳州中海房地产有限公司
主创设计:罗海峰 黄嘉健
参与设计:王双双
设计面积:694平方米
中海•上湾销售中心落址于雅韵浓郁的“闽南水乡”——厦门漳州,人杰地灵,拥有一线优质的自然资源。
设计师深谙闽南文化的本质,以“不破坏环境,不辜负山水”为前提,在设计过程中用简洁的构图和笔墨提炼出山、水、石等元素,并通过现代手法描绘水墨意象来演绎空间的韵味,熟练地将留白,山水,光暗,移步换景等手法,以虚写实,形似自然,又超越自然,使人在静观自得的心灵状态下,感受新中式儒雅东方意境之美,不着一笔,尽得风流。



▲ 门厅
闲闲着笔,缓缓为之。一进门厅,由当代水墨名家创作气质磅礴的水墨画占据大面积墙身,浩瀚中不乏有中式文人水墨画的传统底蕴,在表现手法上又带有西洋的韵味,犹如“景中有画,画由心生”之境,突出独特气韵和生命灵性。


▲ 接待大厅
步入接待大厅,设计师对原建筑通透高挑的空间加以利用,在现代感强烈基调的基础上,一抹素雅的色彩,几笔简练的线条,搭配复杂而工整的天花纹样与简洁当代的艺术吊灯,水墨灰与秋香色,相互交会,尽显雅致贵气。

▲ 过厅


▲ 模型区
深入空间,豁然开朗。天然肌理的大理石与金属框线形成鲜明的虚实对比,打破空间局促感,契合了东方文化崇尚的中和雅正之美。正中天花的吊灯是致敬中国工匠技艺——榫卯的情怀之作,结合一页页看似风轻云淡般水墨写意的卷帘,被星星点点般的柔和灯光环绕、渲染、交叠,营造出如山水画的灵动气息,令人耳目一新。

▲ 楼梯
形在外而意在内,整体采用浅色调与极具雕塑感的深木色楼梯造型形成强烈的视觉冲击,在动静之间,表现出层山叠澜的浩瀚气魄和温儒尓雅的气质。




▲ 洽谈区
洽谈区整体呈开放式的空间布局,却又具有各自独立区域,保留现代设计感,将浓郁的东方风韵潜移默化地融入设计之中,加以落地玻璃的借景手法,开阔平坦的绝佳视野,一石,一树,一纱,虚实写意,可谓:“不知城市有山林,谢公丘壑应无负”。







▲ 水吧区
漫步至水吧区,结合“看山不是山,看山仍是山”的佛学理念,融入宋代毓秀之美,采用木饰面栅格的温润清雅与吧椅圆滑的弧线转角,与天顶的灯光形成自然的对望呼应,用简单自然的写实手法渲染自然东方的意境。


▲ 贵宾区VIP
移步贵宾室,一幅写意水墨从远处慢慢渗入,通过光影的渲染给空间注入力量与灵魂,用自然的空间语言阐述出水墨的灵动韵致。

▲ 洗手间
尊重自然,注重空间是设计师一贯遵循的核心设计理念。在本案中,通过现代中式的设计手法,熟练地将水墨画的美学、东方古韵的气氛、静观自得的心境融合,平衡表达艺术与商业的交汇。让你身临其中,仿佛超越自然,超越时空,与天、地、人、物开启一场对话,感受出儒雅东方的闽南水乡之美。

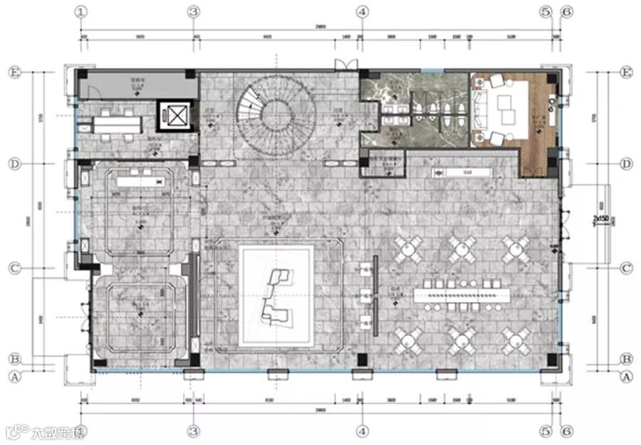
▲ 首层平面布置图

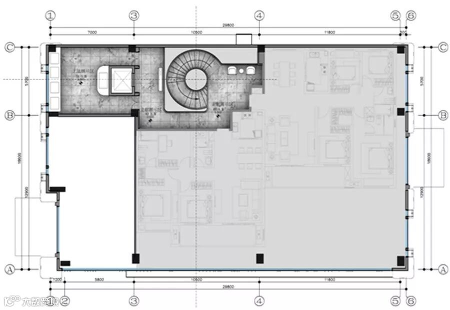
▲ 二层平面布置图

Ocean Design 创始人 罗海峰
罗海峰(Ocean), 从事室内设计工作近20年,于2013年创立个人品牌奥迅设计Ocean Design,专注提供高端地产和商业公共空间的设计解决方案。罗海峰先生擅长把生活的趣味元素与想象结合,以现代主义的简约风格为基调,在设计上实现空间体验最大化,打造能传递艺术和文化美感相结合的精品空间。

奥迅设计机构成立于2013年,旗下拥有奥迅设计、奥妙陈设,是一家拥有近200人的专业室内设计顾问公司。
奥迅设计凭着高效成熟的管理制度,丰富的设计经验,国际化的先进设计理念,和众多大型知名发展商建立长期友好合作关系,也赢得设计界同行的广泛认可。公司以卓越的专业技能和成熟的管理制度,致力打造一家针对服务于国内外高端地产市场的专业设计公司,以最高的质量标准为客户提供优质高效的专业设计服务。


▲ 上海中海戈雅园售楼部
▲ 汕头龙光V2样板间

▲ 宁波市九唐凤栖院

▲ 南昌新力公园一号售楼部

▲ 华发首府售楼部

▲ 广州金茂府精装交标D1单位
欢迎订购
《中国室内》
历届《中国室内设计大奖赛优秀作品集》
联系人:祖全兰
电话:010- 88355882
电话:010- 88355807
投稿邮箱:zhongguoshinei@163.com
微信号:CIIDzhongguoshinei
长按二维码关注我
室内 | 设计 | 学术