
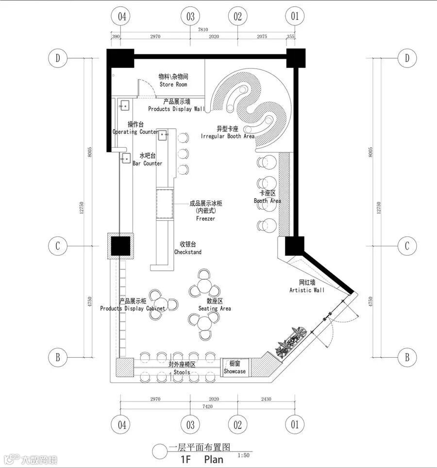
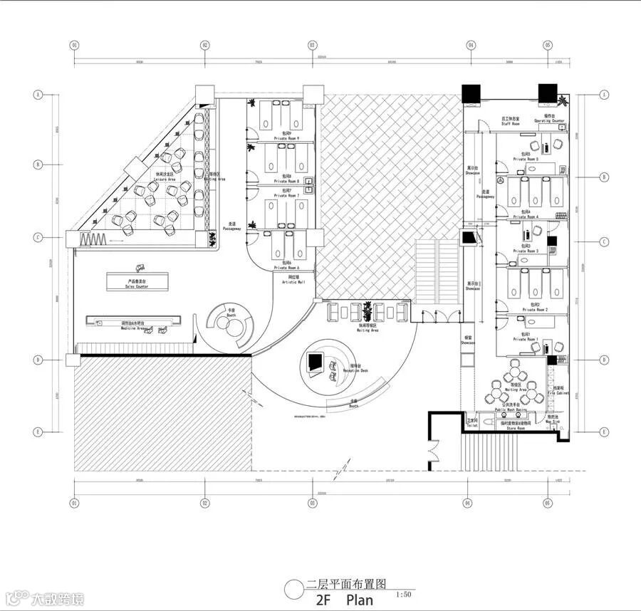
容德医馆位于成都时尚地标春熙路的辐射周边,映照着这个城市丰富而鲜活的生活艺术。从现代人的生活角度出发,通过商业策略与艺术创作的平衡探求,对传统中医药国粹进行了一次别有新意的空间叙事。
项目名称:容德医馆
项目面积:800平方米
设计主创:刘靓
项目摄影:蔡掌柜
项目完工:2018年8月
设计团队:刘洋 庞丽媛 宋乐思 王修权
项目地点:四川省成都市锦江区小科甲巷一号
主要材料:水磨石 不锈钢 超白钢化玻璃 乳胶漆 白色大理石 亚克力 布艺 皮革 干花 透明树脂 实木漆面
设计机构:深圳范创意环境艺术有限公司(IAID北京无限建筑设计旗下关联品牌)



中医药的背景文化经提炼后成为设计主线,古法自然的精神也贯穿在“人与本草”为主角的空间情境中。店铺立面以柔和的粉色和大面积的玻璃幕墙,颠覆传统医疗空间的冷峻印象,在品牌与消费者之间搭建起舒适的信赖关系。以契合年轻人群的健康茶饮作为中医文化体验的开场导视,吸引急于打拼未来的都市人放慢脚步而关照自己,给予他们生命里一个温柔的提醒——“你比理想更重要”。




粉色与清新感的绿构成温婉的马卡龙色系,和谐穿插在室内动线的视觉呈现中。遵循“天人合一”的理念,空间的实虚界面、功能陈设、装饰艺术等凝结成有机的整体。座椅和背景墙描摹出山水意象,与几何感的灯饰构成天圆地方的对景。植物标本装置的引入,更增强自然元素的生命气息。
软装择取轻奢手法,皮革、玫瑰金与拉丝镜面营造新古典的精致质感,素雅的水磨石地面铺垫简约留白的基调。植物标本的水晶装置潆洄于明暗光影中,插花窗帘彰显手作情怀。
药材橱柜作为中医药房的标志性配件得到保留,但以时尚轻盈的线条进行全新演绎,并与文艺吊灯和几何柜台相得益彰,将新鲜活力的品牌魅力尽致诠释。







我们将静态的草本活化为时代趋势下的要素,以亲和可触的空间叙事,传递人本主义的生活态度,让每个人透过本草认识到更好的自己。







◁ 设计师简介 ▷

刘 靓
刘靓设计工作室/创始人
深圳范创意环境艺术有限公司/设计总监
“诚心才有诚品,感动自己才能感动他人”。美的空间生活,师法自然!站在室内设计空间的角度呈现出新的对话,对新的材料、布艺图案等进行研发设计,巧妙地运用各种手作形式,让整个空间营造一种直达内心的感受。多年来从事酒店、高端咖啡\餐饮、跨界商业空间的陈设艺术事务,曾服务过胡桃里音乐酒馆、繁花酒吧、杂咖餐厅和花十七格调餐吧等知名品牌。