
精品案例
项目名称:汲光
项目地点:广西南宁
项目面积:12000平方米(六层楼)
完工时间:2018年12月
主创设计:黄士华
设计单位:隐上设计
摄影单位:林绿
主要材料:磁砖 花岗岩 橡木 夹砂玻璃 肌理涂料 黑铁等
▼入口

处在城市的日常生活中,在熙熙攘攘的人群寻找自己,疲惫了一天,华灯初上,心中浮现的是一处温暖的地方,入口的木格栅与灰色洞石,在都市丛林中创造的一方天地。
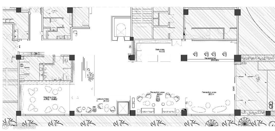
▼平面图
设计概念源自于中国道的哲学,透过理解道的本质,寻得心灵上的自由,将理解自我、存在、与宇宙三者关系体现于此空间里,建筑空间里的格局、动线、场景,不强调造型风格,而是以空间层次去呈现道的本质,创造自然的场景呈现静谧与朴实无华的存在。


留白的设计,褪去繁华热闹的外衣,茶香、木香缓慢了步调,彷佛广西山水的花岗岩,是要每个人都在宇宙维度中寻找自己,在过程中领略了生命之美。

自然的二元素光与木交织构筑出自身所理解的宇宙观。宇宙存在中的微光概念,从中庭室内景观区为核心扩散,白天日光缓缓流泻,内中庭场域让此区客房得到室外光景,改善了采光不足的问题;夜晚则转化为繁星折折的夜空场景,三五好友聚集在此聊天舒心。


客房回归到休憩的本质,低密度的装修呈现原木更原始朴质的面貌,期望客人能在此找回最放松的时刻。另外考虑到年轻族群非常喜爱在家中装设大投影幕欣赏电影,因此客房也融入家庭小剧院的概念,同时打造如同在家一般的舒适,以及在酒店空间的精致享受。
▼房间


▼餐厅

▼走廊
设计难点

End
CIID【遇•建】
竞赛培训




