(建议在wifi环境下观看)
项目名称:偶寄-杭州精品民宿酒店
项目地点:杭州市临安区太湖源镇天目山
项目面积:800平方米
项目时间:2020年
设计单位:是合设计工作室
主创建筑师: 龚剑、刘猛
设计团队: 张杰(建筑设计),凌惠鸿(室内设计),吴凯伦(室内设计),宋永健(软装设计),徐贞(平面设计)
结构设计: 张海航 / 浙江广厦建筑设计研究有限公司
景观设计: 是合设计工作室
合作方: 集致灯光
摄影: 是合文化、叁三影像
场地图

项目生成过程

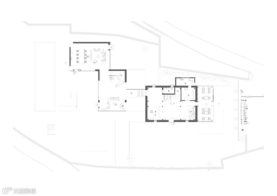
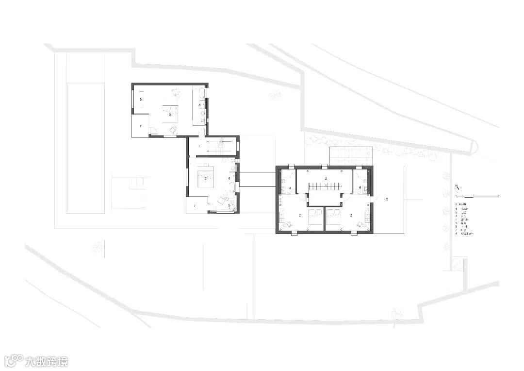
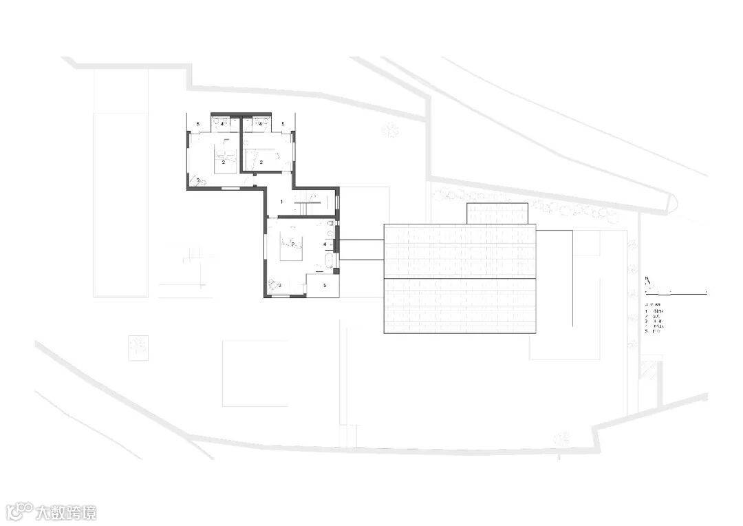
平面图




立面图

剖面图

老建筑结构细部

新建筑外观效果图

偶寄精品酒店(MYMORY hotel)位于杭州临安太湖源天目山景区山麓处,场地内景致如画,眺望远处村落,勾勒出一幅“山麓炊香有人家”的淡墨山水。场地内有一栋建于上世纪70年代的老宅,很幸运其大部分夯土墙和木构架被相对完整地保留下来。我们将这栋老宅视为一代人的生活记忆和情感载体,并将其定义为酒店整体规划设计的核心。



是合设计工作室(RIGHT HUB)对该项目进行了整体规划,保留一栋老宅,一栋在原址上拆建的新建筑,整个场域由东、西、南、北四个院落构成。对老宅的原始墙体及木结构进行了修复和结构加强,并用钢构结合陶粒混凝土重新浇筑了楼板。针对老宅的改造设计理念,用回收的老砖为原有的夯土墙穿了件“外衣”,将木结构合理地在室内空间裸露呈现,老宅的岁月痕迹和结构美完整地呈现在客人的视线中。我们将老宅原本单一的居住功能置换成酒店的复合功能,兼具了大堂、前台、休闲区、茶室、西厨、中厨、餐厅、客房等功能空间。老宅2层设置了2间客房,每间客房的屋顶都增设了较大幅面的天窗,分别位于客厅、卧室和卫生间的上方,有效改善老宅室内空间的照明质量。在老宅东侧用钢构结合玻璃幕墙的形式新建了一间坐落在水上的YING餐厅,庭院内栽种了日本早樱,春天樱花盛开时,客人可以享受到独一无二的用餐体验。






通过玻璃走廊从老建筑进入新建筑,新老建筑之间有1.5米的高低差,在走廊两侧水面的映衬下彷佛客人是从水下浮出水面一般。新建筑一楼有两个休闲区,南面的休闲区透过玻璃幕墙将户外美景尽收眼底,西北面的休闲区设置了真火壁炉,入冬后在这里围炉取暖,喝杯咖啡,舒适惬意。新建筑2、3层共设置了5间客房,每间客房都配有独立观景阳台,客房内大幅落地窗满足白天自然采光的同时也将户外美景引入室内。客房的卫生间采用“水晶盒”的设计理念,通透明快的设计满足了客人“不同寻常”的体验,当然我们也在“水晶盒”外围设置了暗轨纱帘,保证了客人使用卫生间的私密性。新建筑外观采用水泥肌理的块面化设计语汇来表达,未来还会将实木百叶“表皮”安装完成,从木百叶过滤进来的光线让室内空间随着光线的变化渲染出流动的光阴肌理。



在西院设计了无边际泳池,与泳池相邻的是一个可同时容纳6-8人的下沉式广场,泳池和下沉广场之间间隔90公分的平台具有“吧台”的功能,客人游泳的同时还可以在“吧台”喝一杯与朋友互动聊天。东、南、西三个院落朝南一侧用玻璃护栏进行围合,在视觉上模糊了场地边界,客人在庭院里可以毫无遮挡地眺望远处村落,一览无余。




设计公司

网站:www.righthub.cn
电邮:info@righthub.cn
微信公众号:是RIGHT合HUB(righthub)
龚剑先生和刘猛先生于2017年共同创立的"是合设计工作室(Atelier RIGHT HUB)"是一家立足于中国传统文化的传承和创新,结合西方设计美学,提供更具国际化视野的建筑、室内、整体规划以及平面设计服务。
我们始终认为研究是设计的一种有力工具,因为每个项目都具备其特有的背景。对规划运作、地点、功能和历史等进行细致深入的研究是创造严谨作品不可或缺的要素。在研究的基础上,是合设计工作室致力于建筑与经验、细节、材料、形状及灯光的积极互动,而不是单纯地遵照模式化刻板风格。每个项目背后的最终成功之处都是通过建筑本身外观形象与室内空间品质高度一致,而得到淋漓尽致的体现。
是合设计工作室受到国内外媒体的广泛关注,包括央视CCTV-2《空间榜样》、World Architects、谷德、有方、ArchDaily、World Architecture、安邸AD、新浪家居、网易家居、搜狐网、美国室内设计中文网、设计腕儿、ABBS建筑论坛、台湾Open Design、《中国室内》杂志、《建筑师》杂志、《陈设中国晶麒麟奖获奖作品集》、《艾鼎国际设计大奖获奖作品集》、《金堂奖获奖作品集》等许多知名印刷、网络和媒体广泛报道。
是合设计工作室在国内外权威设计大赛中屡获殊荣,设计作品获得包括WA Awards、新加坡室内设计大奖(SIDA)、台湾金点设计奖(Golden Pin Design Award)、台湾六艺奖(SAA)、中国室内设计大奖、筑巢奖、艾鼎国际设计大奖、金外滩奖、艾特奖、晶麒麟奖、金堂奖、IDS国际设计先锋榜、腾讯家居年度设计时尚盛典“金腾奖”等。
这个改造酒店,立足于中国传统文化的传承和创新,结合了西方设计美学,可以偶寄闲情。对此你怎么看,欢迎留言分享。