改造前后对比

地下室(改造后)
地下室楼梯(改造前)
地下室楼梯(改造后)
一楼门厅和客厅(改造前)
一楼门厅和客厅(改造后)
一楼客厅看向餐厅方向(改造前)
一楼客厅看向餐厅方向(改造后)
天井(改造前)
天井(改造后)
楼梯间(改造前)
楼梯间(改造后)
露台和天井(改造前)
露台和天井(改造后)
采光井示意图
剖面图
轴测拆解图
住宅原有空间紧张局促,内部采光不足,是建筑师面对的主要问题。建筑师反其道而行之,通过从建筑内部挖出一个天井而非加建面积的策略去疏通原本紧张的空间关系。切开一个洞口,从负一层的楼板自下而上贯穿四层到屋顶,洞口1:1的长宽比让人回忆起江南民居中典型的天井。洞口用透明和半透明的玻璃围合,形成井形的具象界面,井深且虚。阳光通过折射进入室内的中心,更加柔和;随着自然光的变化,室内的光盒子明暗不定,原本幽暗的内部区域,也因此有了自然光和呼吸,形成了住宅内部的向心性。正如南方民居中的天井不只是采光的作用,设计团队以天井为空间中枢进行四合环绕的平面布局,并使虚的天井成为具有交通性的室内空间部分。
一楼
前厅
黑色木板门从前厅到客厅
客厅角度一
从门厅到楼梯的视角
客厅角度二
从餐厅到客厅的视角
餐厅角度一
餐厅角度二
餐厅角度三
楼梯角度一
楼梯角度二
黑木板墙
天井的高度将四层楼从垂直的维度上联系起来;天井的深度,分割又激活水平空间,既透进光的呼吸,又消化了错层之间的落差,连接了原本封闭而断裂的空间关系。横向和纵向两套坐标系统交织形成空间的网格,它们穿插叠合、相互关联,把一栋房子的不同空间,串联成一系列的空间交织并形成回响,提供了多重解读和体验的可能,丰富了宅居的空间感受。
二楼
卧室门
楼梯
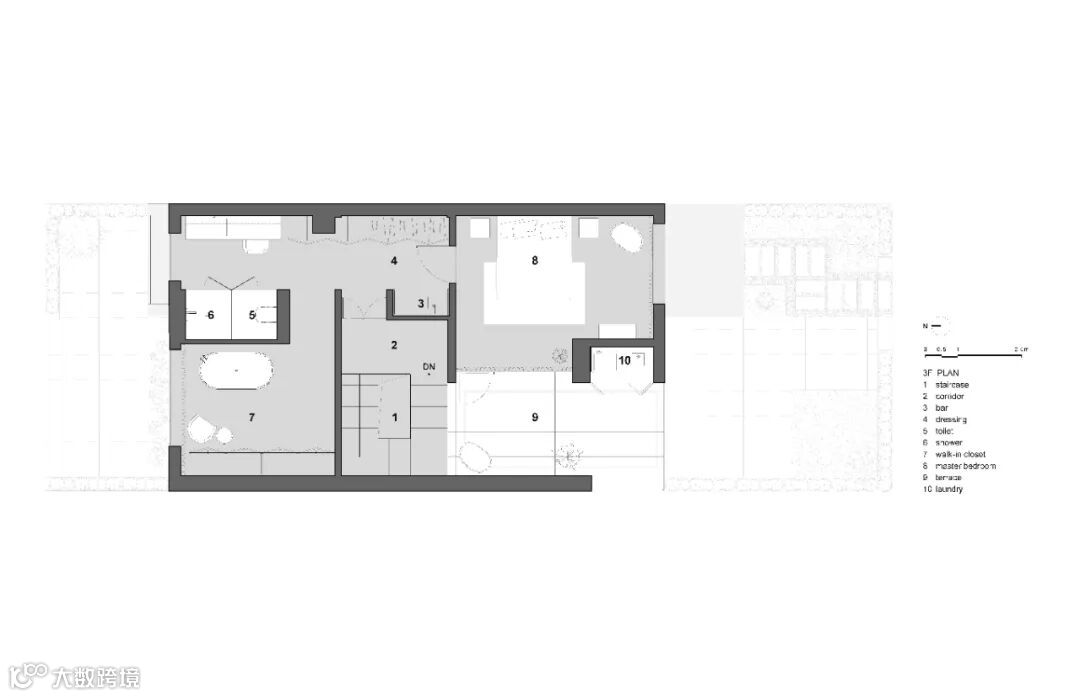
三楼
主卧
从主浴室到卧室的视角
步入式衣柜
楼梯
从天井到露台的视角
露台景色
地下室
地下室的时尚空间
通往地下室的楼梯
庭院
庭院
入口
细节
门框和踢脚线细节
楼梯台阶细节
玻璃扶手
玻璃扶手细节
屋主与设计师交流
屋主日常
屋主日常
屋主日常
屋主日常
屋主工作照
屋主工作照
项目信息
项目名称:天井住宅 - 时尚女装主理人的家
项目地点:浙江宁波
设计范围:室内空间改造、软装设计、庭院设计
设计公司:Atelier Right Hub是合设计工作室
主创设计:龚剑、刘猛
设计团队:张杰(建筑设计)、凌惠鸿(室内设计)、宋永健(室内设计)、 陈倩(软装设计)
基地面积:145平方米
建筑面积:350平方米
设计时间:2018年9月 – 2019年1月
建造时间:2019年1月 – 2020年5月
主要材料:水磨石、白瓷砖、鱼肚白大理石、黑色实木饰面、橡木地板、超白玻璃、肌理漆
拍摄团队:是合文化
项目摄影:吴昂、肥朵
一楼平面图
二楼平面图
三楼平面图
地下室平面图

创始合伙人:龚剑(左)、刘猛(右)
龚剑先生和刘猛先生于2017年共同创立"是合设计工作室(Atelier Right Hub),立足于中国传统文化的传承和创新,结合西方设计美学,提供更具国际化视野的建筑、室内、整体规划设计以及品牌策划服务。
我们始终认为研究是设计的一种有力工具,因为每个项目都具备其特有的背景。对规划运作、地点、功能和历史等进行细致深入的研究是创造严谨作品不可或缺的要素。在研究的基础上,是合设计工作室致力于建筑与经验、细节、材料、形状及灯光的积极互动,而不是单纯地遵照模式化刻板风格。每个项目背后的最终成功之处都是通过建筑本身外观形象与室内空间品质高度一致,而得到淋漓尽致的体现。

