“在居住设计这件事情上,中国的城市呈现出一片欣欣向荣的情景,但无论是价值观还是审美,大多没有摆脱‘风格’。然而,真正的居住,是空间和人的关系,动线、节奏和逻辑,都应从这里出发。我们的设计,以‘人’为线索,呈现生活的丰盛、世界的广阔。”
基于对用户思想观念的洞察,有着20年设计历程的则灵艺术,坚持以用户研究为基础,通过明媚灵动的设计表现,让居住空间真正意义上承载人们的志趣和生活方式,实现人们对品质生活的丰富想象与美好向往。
设计延续“干邑”主题,采用全屋智能系统,高品质的家居选材和丰富的智能化场景,充分装点主人和家人们的日常生活。
玄关
外在越被纷繁所扰,内心就越向往愉悦宁静的格调,走进玄关,脱下外套卸下一天的疲劳,舒适地进入和家人们的小世界。入户玄关以木质和金属元素的结合点亮这方空间,再往里走便是6.6米挑高的客厅,极致的空间感,让身心与视觉得到双重休息。
客厅
依窗伴景,夕阳斜射,微风徐徐,白纱浮动。整体采用现代轻奢风格,带有线条的灰色大理石与暖色调的家具结合,专为成功人士量身打造,既时尚又温馨,彰显主人的风范和气度。孩子们的笑声在整个客厅内萦绕,“居住”不再是简单的“栖息”,而是安放全家人幸福的私密空间。
二层悠闲区
二层除了两个卧室套房外,还打造了专属独享的私密空间。夜幕降临,身心放松还未有睡意的时候,可在此品一杯美酒,阅读一本经典。除此之外还可以观赏一层客厅的美景。
餐厅
独立餐厅,与厨房咫尺相近,圆形餐桌更适合六口之家的用餐需求。开一瓶美酒共享美食,家人相聚或会客宴请,更能体会到亲密自然、舒适惬意。
开放式厨房
开放式厨房,西厨部分增加了收纳空间,补充中厨收纳空间的欠缺,从而大幅度增加厨房的收纳功能,提高了生活的便捷,体现了高质量品质生活的追求。
三层主卧 
超豪华主卧,配置独立衣帽间、卫浴间、露天SPA浴池和独立露台设计,尺度奢华,为男女主人提供私享体验。休憩空间设计基于对使用者的关照,让居住者融入到空间故事与情感线索中,令空间与其产生强烈的情感联结,唤起人们对愉悦生活的热爱与向往。


静坐于此,安稳阅与读,房与卧室相连,通透采光又独立有序,配备了全景落地窗的设计,办公、看书之余仍可以欣赏庭院美景、不远处的溪景,轻松且舒适,为男主人划分出独立、私密的居家办公空间。
主卫
独立洗浴空间,拥有阔绰舒适的尺度,而远离卧室的贴心独卫设计,更让日常起居生活舒适从容,全屋卫浴选用德国进口品牌,以“环保、创新、人导、设计”为产品灵魂,致力于给使用者带来最舒适的沐浴乐趣,享受属于浴室的无限水乐趣,潜心为客户打造更温馨舒适的整体卫浴空间。
观景露台,打造一个私人露天SPA浴池,移步于此,试想一下,泡澡时清风送来花草的芬芳,生活的惬意时光由此缓缓开启。平时也可以在露台上莳花弄草,靠在沙发上看星空、享受着温柔的晚风。
二层儿童房
▽ 女孩房
公主房纯洁清新、优雅大方,细腻的灯光搭配柔软的织物,勾勒出淑女的模样。更衣室可灵活布置,当有需要时可作为步入式更衣室,当有其他需求时,也可作为化妆桌和书桌。
▽ 男孩房
男孩卧室蓝、米色相撞迸发少年活力,功能俱全且阳光、简约、时尚,同时蕴藏着男孩子的正能量。儿童房关乎于色彩,关乎于趣味,关乎于功能,更关乎于一个家庭的未来与成长。
夹层茶室
在负一层夹层这里加设一方品茗室,置上一张古朴而优雅的茶桌,焚香品茗,是极好的放松以及修身养心的场所。平时也可以把地下室作为接待客人、朋友的会客室,把一楼客厅的空间留给家人,彼此之间都有各自的休闲空间,互不干扰。
夹层儿童游乐区
除此之外,同时把孩子的童玩间也设在夹层,这里是孩子的游戏室,能够装下童年的天马星空,给孩子一片自由空间,让孩子在这里发挥奇思妙想,父母不会错过孩子成长的每一个阶段。
负一层家庭娱乐室

负一层设置家庭影院和吧台,影音室以舒适的皮绒座椅、全息投影技术提升整个空间体验感和互动性。在这里,多种沉浸式的娱乐体验,带给居住者精神生活的极致享受。

一旁的酒柜陈列着来自不同年代、不同国家的藏酒,舒缓的音乐流于其间。时光流淌,往事忆起。
车库黑色的哈雷摩托将金属摇滚精神与精致主义的碰撞带入空间中, 给予视觉上的冲击感与享受。
居者个性的真实多元、空间美感的实现与随之而来的生活向往,依托着他们的设计理念和独特的语言,转变成空间深刻持久的愉悦感。

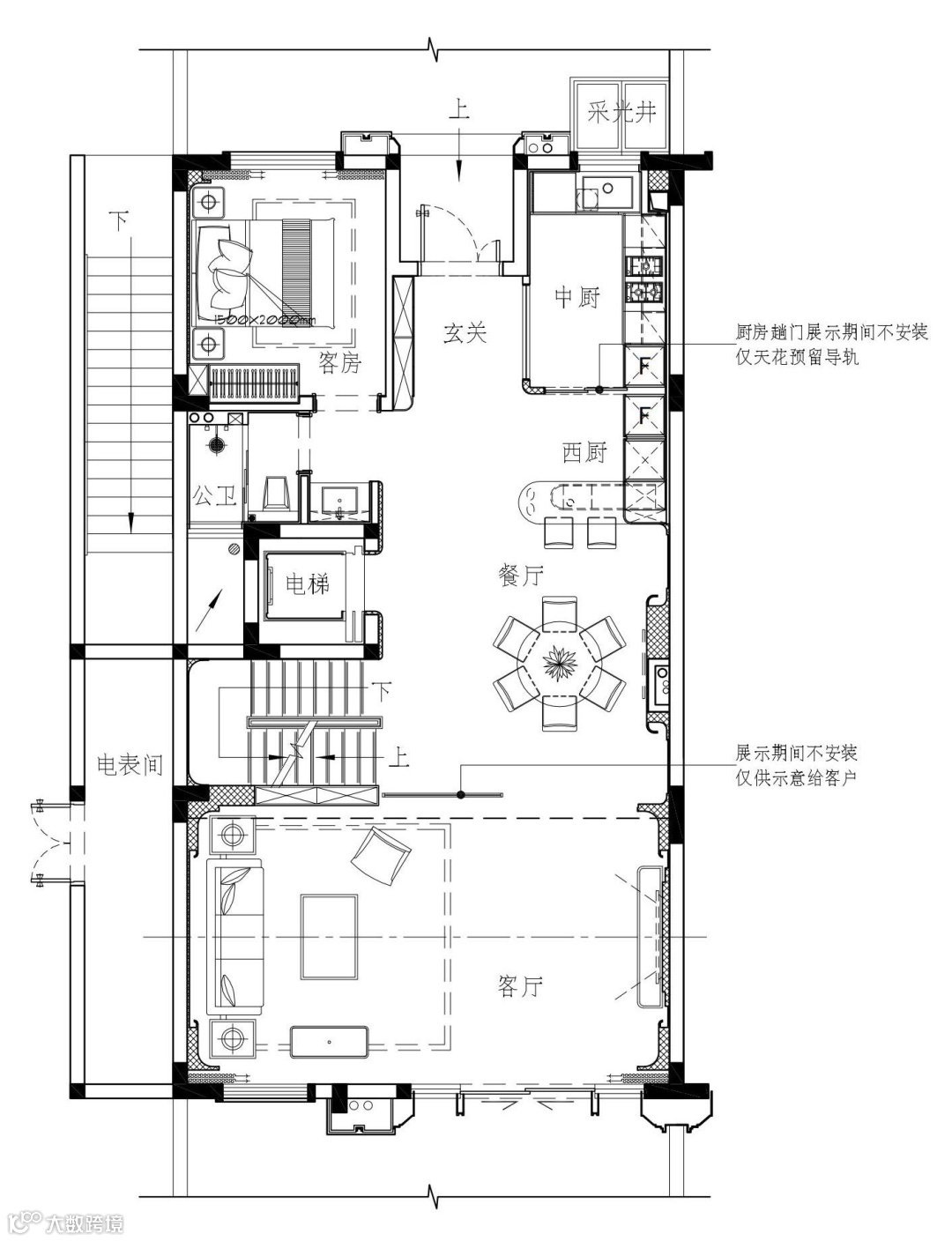
二层平面图
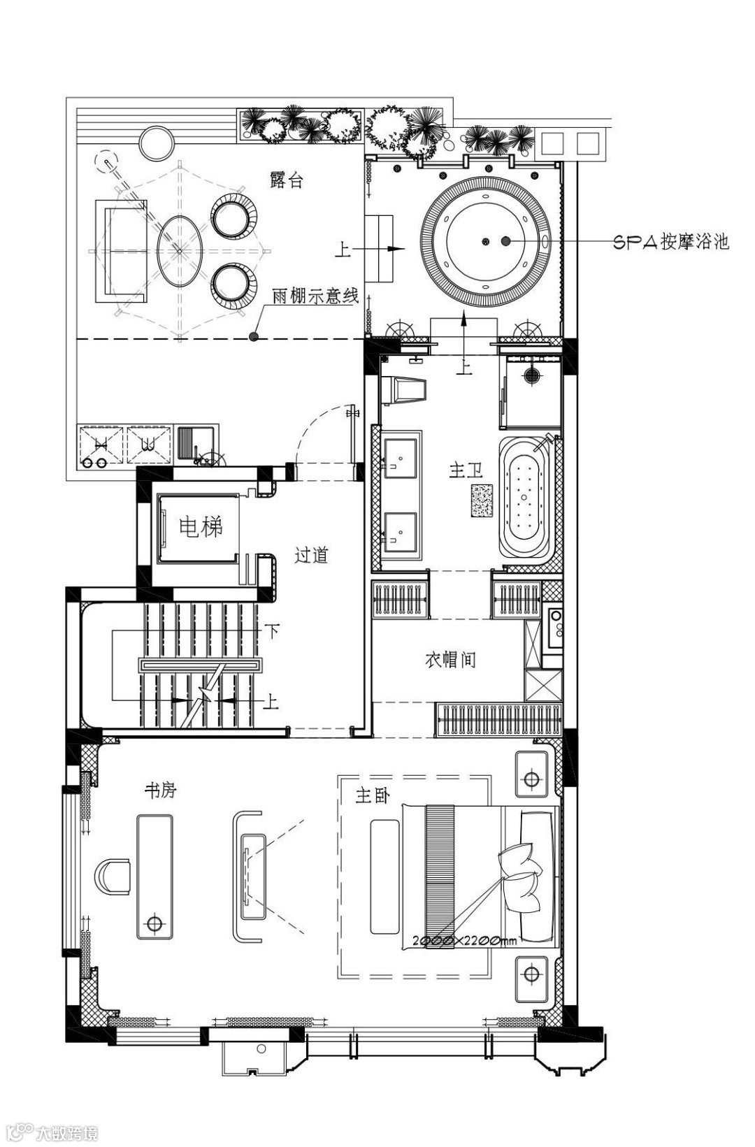
三层平面图
负一层平面图
项目概况
项目地点:泉州市晋江市绿城路与江滨路交叉口(九十九溪旁)
特别鸣谢:中海 泉州公司 梁琼、陈文镖、陈勇明、曾少雄、陈建丰
设计公司简介

置在设计-由两位从业已20年的室内设计师联合创建于广州,是一家涵盖建筑室内空间设计、平面设计及艺术品陈设设计的专业平台;是一个综合性的设计品牌,涉及领域包括房地产、酒店、办公、商业空间等。
他们锐意创新,擅长从客户经营诉求出发,定制具有空间美学价值与现代商业价值的方案,打造空间icon。同时秉承信守契约精神的服务宗旨;他们有完善的专业团队、一体化的服务流程,让每一个作品都能完美呈现。
