本案旨在打造一处简单大气、高端而不庸俗的私人会所,巧妙运用金属、白漆、大理石,突破以往娱乐会所高档繁复的刻板印象。
整体以大方舒适的硬装空间,搭配上自然的木饰面、铜质的不锈钢与优雅的大理石,以金属色为主搭配黑与白,带来了一个轻奢有档次的华丽空间。
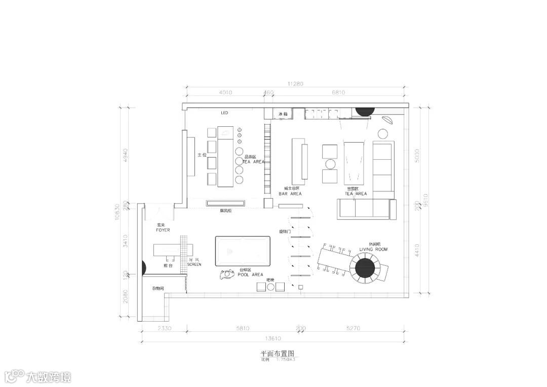
平面图

整个空间划分为台球区、休闲吧、雪茄区、威士忌区及品茶区,空间布局合理,功能划分清晰。

进门处采用金属层架,增强屏风的力量感与大理石结构体块交织在一起,在视觉上形成一种虚实感和建筑结构感。
大理石温润有质感,金属单薄有温度,二者融合,时尚感十足,给整个前台区带来引人入胜的效果。


台球桌选用黑色底座搭配金色装饰条更显沉稳大气,桌面选用鲜艳亮丽的红色燃起对台球的激情,而糖果色在视觉上形成的新鲜感,让这项高雅的运动成为他们日常生活的重要调味品。


天花采用水波纹金属板,展现轻奢大气的独特,搭配低调的格子纹灰色地毯,不同于印象中的黄金土豪。整个空间运用几何线条营造时尚氛围,用高级灰加上金属色,营造出顶级轻奢质感,更为雅致迷人。


雪茄区沙发采用皮革面料,大大提高了整个空间的质感,在金色水波纹天花的衬托下,更显奢华大气。射灯光影也偏向柔和,注重营造一个私密又放松的交流空间。


威士忌区所有的饰品都选用黄铜材质突出时尚和奢华。黑色的大理石,纹理低调浑厚而大气,结合低调的金属饰边闪着迷人的光,矛盾又强烈的对比,演绎都市里奢华的现代风格。

黑色旋转门高级感十足,既起了空间过渡的作用,又保证了空间的通透性。

休闲吧以大理石桌面与金属层架穿插而成,与前台区相呼应,大理石多变的纹理与色彩,金属的坚硬与光泽,两者相遇结合,让空间充满奢华气质的同时,也倍显温暖和煦。白色的简洁搭配橙色的跳跃,轻松打造都市时尚感。


黑灰金三个颜色贯彻整个空间,担心整体会过于沉闷、呆板,所以在休闲吧选用了几个橙色的单椅来增加空间的活跃性。


品茶区的金属门框与珠帘作为屏风,增添高贵典雅的气质,实木茶桌和麻编织的落地灯既体现室内装饰的精致,同时也很环保,带来大自然的清新气息。雅致的盆栽与墙上的挂画,表现一种平淡、纯粹、含蓄的生活境界。





天花运用水波纹金属板的灵感来源于日出的水面,寓意会所就好像初升的太阳,充满朝气活力,其次我们中国人常说:“遇水则发,以水为财”,寓意甲方财源广进。


金属层架的灵感来源于建筑的脚手架,正好该户型有一根圆柱贯穿整个结构,就产生了该设计灵感。金属层架的运用让结构柱与屏风更有力量感,但又不会在视觉上产生阻碍感。
设计团队:本家设计-古月空间设计工作室&如观设计工作室
2021大奖赛参赛报名

-欢迎投稿-
投稿作品仅限首发、新作,接受室内设计、建筑、景观等作品投稿。
邮箱:zhongguoshinei@163.com,投稿请添加“CIID2019”微信~
点“在看”,为好设计点赞