菩提、老木、古瓷,水滴、铁锈,斑驳的栅栏,竹编的茶器,这是禅意空间的经典元素,这让我们不由得联想到茶道始祖千利休的山间茶室。侘寂而又高雅的禅意空间像极了山间仙境。岁寒知松柏,舍于古人家,我们希望借取这一口仙气,移植至凡间,用温度刚刚好的材质来打造一个有温度的禅意。
为冰冷的金属加上肌理和质感,把冰冷的湖面表现在温润的地毯上。通透的空间把阳光请进来,让这个室内的园林随着日照的变化,顺应自然的律动,产生不一样的效果,这是来自大自然的设计,也是我们认为最好的设计。这是我们的创意灵感。

整体建筑外形肖似山峦起伏,从建筑立面提取的青瓦元素与钢化玻璃融合,将日间光阴巧妙地引入室内。波浪蓝的地毯,剔透的面饰,光影流动间似碧波荡漾,清丽自然。
前厅接待区的一株苍苍劲松,木质栅格与平整的砖石……
黑白的简单色彩更能衬托出松柏的绿和山矾的肌理,无论是迎客的姿态或是克己守礼的距离感,皆将禅意传递。

如果光说“禅意”,未免给人过于高冷的感觉。
用通透的栅格划分了区域,温润的淡木色迎接柔和的阳光,透过松针去看冰冷的金属面上一圏一圈律动的涟漪,仿佛猴子捞月后从此不再平静的水面……这个刚柔并济的搭配为原木仙气飘飘的禅意之境带来几分人间的烟火气。

禅意 · 心意

当看到这幅悬挂的透明字饰时,很难去想象它是一首“一览众山小”的壮阔诗篇,繁重被轻盈所取代,苍劲的笔锋因通透的质感不再难以靠近。
晨光沿着利落的边界勾勒出如水般剔透的材质,光在其中折射,洒落在空间内的每一处。微风使其或动或静,动时如缥缈的薄云,静时如袅袅的檀烟。细丝的牵引,晶莹的外壳,几分缥缈几分难以捉摸。

小·大






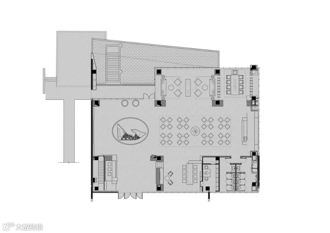
平面图
前台接待区
洽谈区
品茶区
项目概况
项目名称:雅居乐·合景泰富南麓山居销售中心
项目地址:湖南·郴州
委托单位:雅居乐集团控股有限公司
设计面积:490平方米
竣工时间:2020年9月
设计单位:柏舍设计
主创团队:胡桂华、陈琰、徐楚君、章艺、钟婉盈
设计公司简介

-欢迎投稿-

