
将智慧照明与感官情绪在空间体验的基础上完美融合,塑造一个以光为语言,柔美曲线为空间指引,结合艺术构图集高科技、未来感、艺术化的灯光空间相交融的建筑空间。空间因人而生动,当空间被赋予社交属性,沉浸式场景的社交体验空间是WED中熙设计的关注点之一,以光之名感受人的感受,体验人的体验,运用或明或暗的光线让观赏者产生或实或虚,或感性或理性的空间视觉感受,带来一种身临其境又拥抱所有的奇妙体验。
专业、技术、质感,是WED中熙设计对西顿照明灯巢灯光展示厅的理解和领悟,事实上,设计师期望通过光线和空间的关系来演绎和传递“以专业灯光,给建筑生命”的创作理念。正如当代艺术家James Turrell说:“我喜欢把光作为一种物质材料,但是我的媒介是真正的感知。我想让你感觉到你的感觉,看到你自己见到的物件。”
设计概念模型效果
深潜光影形态
多数时候商业空间是品牌方与消费者对话的媒介,对于设计师来说,设计创作理念源于品牌本身的理念和价值。而随着互联网科技的迅猛发展,线上购物与网络直播兴起,消费者对线下实体空间的需求也在不断改变,并且越发追求极致体验感,基于两者之间的考量和平衡,设计师找到了打开本案的钥匙。


本案中,WED中熙设计对展厅建筑空间整体形象进行升级改造设计,为了更贴合主题,以现代风格为基底,融入了更贴近年轻消费者近年来推崇的赛博朋克美学风格——城市机能风,通过材料运用融合光影艺术呈现空间硬朗、挺括的质感,点缀金属配件等细节营造未来感。在光影交织的世界中解放想象,解放对技术的想象,想象在技术的塑造之下生活,在未来的世界观里生活。
在空间人流动线也进行了重新规划,整体空间以人流动线为参考,针对各个功能区对技术要求的专业特性,设计师也会有针对性的展现有不同的光影空间。比展厅呈现的光影之美更重要的是其虚实间交织呈现的空间体验。当人走进展厅,视线便追随空间动线而走,变换与融合随着身体的每一次变换和视角的改变,都在刷新人与空间的关系。
酒店空间展示区

智能住宅展示区
服装零售展示区



商店/超市展示区
在疫情期间一枝独秀的云技术,让越来越多企业开始重视办公室升级为技术赋能的空间,如针对虚拟情景中的沟通来调节会议室的灯光、色彩和噪音控制,或是设置带屏幕、适合远程头脑风暴的电子白板。比如果说面对面交流已经不再是促进沟通的唯一手段,那么提升虚拟联结的空间与硬件产品设计,未来将成为办公空间中不可或缺的元素。



办公空间展示区
感性与理性的空间构筑
场景体验是感性,产品技术是理性。在这里,色彩被光赋予了生命与情感,空间因光而被延展成平面,探索光与空间的关系、视觉认知机理以及人对光的感知。
通过灯具外形对光影构造释放出的形态关系中,设计师认为灯光投射,最终形成的“状态”是理性思维制造出的一种感性艺术,也是品牌传达的状态。力求把灯光产品与空间相融合,以光源作为中心点,以线条做空间延展,让光影在空间中带有韵律感的舞动,让每一位走进的客人随着空间的变换感受不同场景下的光影之美。



同时,WED中熙设计热衷于探索不同材料在室内空间中的表现,在这里,灯光是主角,金属、大理石材、混凝土这些常见的不同质感材料的衔接、使得空间具有一种简洁而富于美感的视觉体验,感性与理性的融合就如冰与火的碰撞。不同材质中被释放的光和影,让空间的冲突感与层次感极为丰富,带来不一样的视觉体验感。

空间结构的最外层通过全金属外壳包裹,利用灯光指引的叠进关系,在空间结构编排上重组了景观、外立面和室内的边界关系,模糊分界线,构造一个以圆点向周围扩散、连接的层次关系,延伸到以柔性材料为中心点的环形灯光演示区域,从而引导体验者从了解产品的过程中最终沉浸在一个由外到内递进的感官体验中。


逐光而行,对话环境。灯光展示区是灯具装置最直接的表达,给人以最直观的感受,创建相应环境下的光线场景。无论是灯光秀还是沉浸式场景社交体验空间,灯光都是最重要的媒介。灯光是诉说者,诉说着环境的情绪,与环境互动,它的可能性是无限的。灯光既是光源,又是建筑作品不可或缺的一部分。
光是塑造建筑立体感的关键条件,亦是营造空间氛围感的必要条件。

灯具装置展示区
运用光线创建的空间体验,智能化、专业化和真实体验是市场选择的趋势,以沉浸式场景空间体验为代表的思索正拓展到多个行业。我们的视觉在面对这样的空间时视域被延伸至无限远,我们看到的不再是一束光、一片色彩,我们身处的也不再是一个具象的空间,而是一种将理性体验行为转换到感性情绪的演变过程。
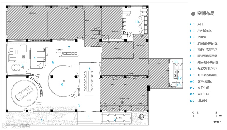
平面图
WE Design中熙设计事务所于2010年创立,WE意为“东与西”,以现代设计的思想,融合亚洲文明的精美;WE亦意为“我们”,展现年轻一代设计人改变社会与环境的决心与抱负。以“WE Design Future(我们设计未来)”为宗旨,与不同行业进行广泛合作,创作出品质卓越、概念新颖的项目,包括房地产、住宅、办公楼、商业及医疗等类别。通过近十年的不断成长,已发展成为提供室内设计、软装设计与工程、艺术顾问与工程、品牌设计等服务的全案设计事务所,透过跨领域、跨板块的合作,配以崭新的室内设计和建造科技,为客户设计及实现最佳方案。
-欢迎投稿-

