
北京大兴国际氢能示范区孵化器
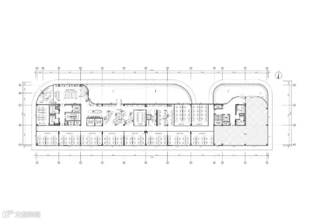
我们将多功能空间赋予了共享、自由的力量,将暖色定为空间的基调,让入口处各功能空间处于环形动线上,让人们享受共享活动空间的同时,保有自由的舒畅感。
室外露台区域
入口设置多功能复合空间,兼容各场景功能需求,预留弹性变化。既是办公空间的一部分,提供多元化的办公选择、为商务接待和小型会议提供灵活空间,同时也作为办公区的“共享会客厅”,兼做开放的会议空间,或作为企业内部的宣讲、宣传等活动场地。
共享厨房/共享会客厅区域
工作咖啡区是一个具有整合功能性的开放互动空间。充满情怀的咖啡区、精巧别致的私人交谈区,在整个办公环境中,你会感受到一股“笃悠悠”的慢调,将传统、固定、单一的功能转化为人们相互联系、同时助于协同工作和激发创意的新型空间。
工作咖啡区域
设计师以家具的形式取代传统的墙体思维来构建这片区域,低矮的隔断配以通透的金属架构,让这里形成一片开阔的视野。这样一个具有开放性和扩展性的空间,既是温馨舒适的休憩场所,又是活力多元的互动空间。
温馨休憩场所
唯美的莫兰迪配色,为办公区增添一抹艺术的色彩,在统一的灰白色裸顶和中性地面的背景映衬下,裸露的设备管道、低饱和度的金属网格隔断、多彩的家具配饰,让整体空间清新、明亮、开敞、流动,传递出令人愉悦的工作氛围。

开放办公区域
封闭办公区域
活用巧妙设计去构筑亲切氛围,小型会议和讨论空间穿插在开放办公空间中间,功能互相渗透,让办公空间不再孤立,为整个空间提供源源不断的活力。
会议室

整个空间设计通过灵动、趣味的弧形廊架、金属网,模糊室内和室外的界限,让自然环境与高效工作和谐相融,打开了一种新的工作和生活方式的视角。

入口处连廊

办公区连廊
人性化的功能配置,比如睡眠舱、电话间、迷你会议吧,满足办公人群的各种需求。让工作、生活、企业、同事之间进一步建立密切关系,多样的配置让办公空间拥有更多期待。

室内睡眠舱
关于设计师
-欢迎投稿-

