
在你拥有的一切之下·发现你想要的生活
改造前
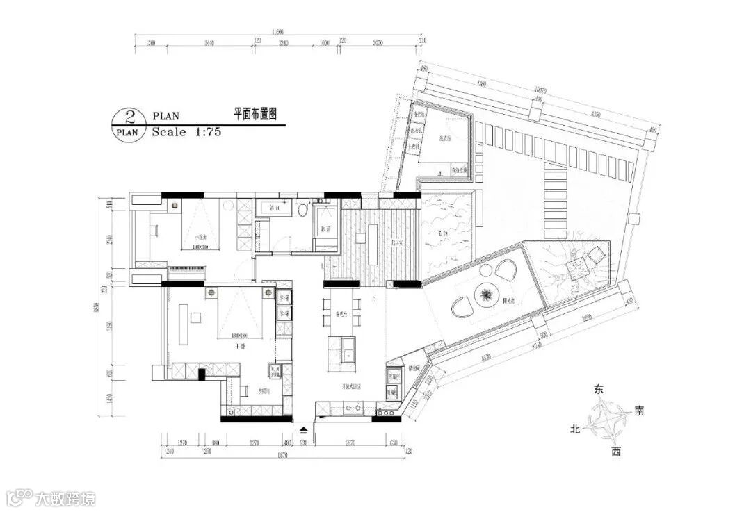
本案为一楼带院子的三口之家,业主比较喜欢简单自由的舒适生活,不喜欢家里呈现得过于繁杂,希望将大量的储物进行遮蔽,让空间呈现得更为简洁。所以此案我们将零碎的空间处理归整,把功能和空间融合一起,使业主能够享受空间带来的尺度感。


形色极简,因光生韵
本案整个空间的调性充满现代设计的简约之美,摒弃了冗杂的修饰成分,强调美学与实用价值,用心去感受空间里的光影、韵律,一切从功能出发,为空间做减法,让生活回归本质。
以暖色调为主,大量留白,在总体布局上满足业主生活的需求,在设计中采用了简洁、简约的语言,以木元素营造温馨感,更为空间增添了静谧与优雅的气息,远离浮世,乐享清闲。
进门厅的玄关设计,嵌入式的木框架在自然光影下显得尤为治愈,功能与美学共生,简约不失格调。
设计师将餐厅与厨房做成一个整体的开放式餐厨区,无形中放大空间。
传统的客厅功能被重新定义,沙发不一定就是客厅的标配,远离慵懒的沙发,取而代之的是长条桌,既可以当做餐台又可以做为书桌办公,满足你一切的需求,简约而不简单。
在对房子进行打拆过后,除了在已知的餐厅与玄关上方的梁外,原厨房的墙体上方还额外的多出了两条梁,在整个餐厨区上方有多条梁的情况下,我们不希望牺牲层高又想保证餐厨区的整体性,所以把原有的梁加以处理。
针对餐厨区上方的主梁、横梁,我们运用东方“榫卯”理念,把主梁包圆与横梁形成穿插关系,相互承托使整个餐厨区上方有了稳定的力学支撑,又具备了外观上的和谐统一。
餐厅区域左边餐椅上方有一根横梁,横梁的出现会让餐厅的天花形成两个长方形,空间被分割显得琐碎。主梁包圆的处理加以梁的两端利用游离的手法,弱化了天花的分割感,视觉上整个餐厨区还是一个整体的方块感。
处理过后的圆梁并不在餐桌上方,与餐桌缺乏联系感,所以我们利用“鱼竿”的灵感,黑色方通从圆柱中间伸出,到达我们想要的“窝点”。吊灯垂下打亮餐桌,加强了餐桌与梁的联系感,弱化了梁的存在。

圆梁的处理,弱化两个框的视觉效果的同时,圆柱体不到顶,离顶做了一边各一条反灯槽,满足灯光的需求之下又让圆柱游离于原顶,让整个空间更立体更富有层次感。
承重墙两边墙体打掉挖空,形成一根立柱,餐桌从墙体穿过加以受力,从而形成桌脚,弱化承重墙的结构与餐厅形成联系。
烹饪区采用嵌入式的设计,家电以及厨房用具被很好地隐藏在柜体内,显得干净整洁。
引景入室,以光涤尘。
抬步进入起居室,暖调的麻石砖与碎石的铺垫及年轮的木地板尽显大自然气息。
在起居室我们可以弹琴、瑜伽、阅读、品茶及赏外面的景色。
大片落地窗可以一览窗外的景色,原木地板带有树木生长的天然印记,搭配周围的绿植,自然气息扑面而来。
在室内望出去是一个景,在室外往里看就像一个临水的“亭子”,加以区域抬高,放一把古筝就是一个舞台。
如果起居室更多是女屋主的空间,那么阳光房便是男屋主会客、品酒、抽雪茄的空间。
经过精心布置的院子,同时也可以当作一个闻花香、悦鸟鸣、聊趣事、喝闲茶的休闲胜地,仿佛置身于一个幽静惬意的小花园里,呼吸着大自然的新鲜空气,享受与家人陪伴、交流的静好时光。
庭院素心,悠悠我心,院中摆放一个藤椅,午后的阳光下藤椅小坐,惬意生活大致如此。
主卧延续了大空间的色彩基调,整个空间弥漫着静谧安宁的氛围,舒适温馨。
低调柔和色调的床品搭配别致的黑色射灯,诠释着主人对美的品位追求与超凡脱俗的气质。
衣帽间通过镜子的折射,视觉上达到空间的扩大,让空间更有趣。
效果图VS实景图

落地过程

项目概况
项目名称:色空
项目地点:广东 · 广州
项目面积:167平方米(含花园)
项目类型:住宅空间
设计时间:2020年6月-2021年12月
设计单位:古月空间设计工作室
主创设计:胡哲
项目摄影:RICCI.倪腾辉
主要材料:UMO有末家居、华睿家居、奇丽砂磁砖、景格照明、正已兴门业、派雅门窗、博泰卫浴
古月空间设计工作室
部分获奖作品
第24届大奖赛经济型住宅类金奖:《我》
第23届大奖赛休闲娱乐类优秀奖:《2205》
-欢迎投稿-

