你还记得是从什么时候开始,我们仿佛对“完美”这件事情着了迷,不断地跟自己、跟外在较劲,奋力追求心目中的极致境界?只是经历长时间的高压状态,人就像弹簧般偶尔也会疲乏无力,方才意识到所谓的完美,并没有终止的时刻。
因此,本案我们以不完美的自然美学去设计,接纳自己的不足,接受不可避免的事,去欣赏宇宙的秩序,在不完美中去发现美。

原建平面图

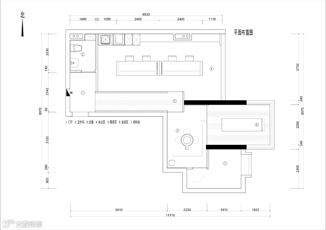
平面布置图
作为一个室内设计工作室,设计师去除了空间中不必要的元素,致力于在简单而有思想的建筑中打造有意义的空间,在与建筑的对话中,通过立足空间本身约束来激发对空间的再创造力,去激活材料本身的特质和它所传达的情感,打造一个轻松无束缚的办公环境。
整个房子共有三个内部空间与一个狭小的入户过道,在狭小的空间里,通过极简的构筑与通透的移动间隔,将室内分割成三个连续又各自独立的自由空间,干净、利落、轻盈、通透。将“以小见大”演绎得淋漓尽致。
入户右手边是一个仅能容下一人的抬高木盒子,连通门厅内外,雅静且充满仪式感地迎来客人,亦是精神坐标,指引都市人得归一段远离尘世的惬意自然时光。
设计构想源于东晋陶渊明的《桃花源记》:“林尽水源,便得一山。山有小口,仿佛若有光。便舍船,从口入。初极狭,才通人。复行数十步,豁然开朗。”

进门后的空间不大,却极尽曲折之意。短短几步路,要转一下,要折一番,于是“豁然开朗”,是一个不大的休闲区,自然静谧的原始质感,与生俱来的艺术气息,营造舒适悠闲的空间氛围。
传统老石磨赋予新生命,做为空间的茶台,年代久远的煤油灯以及墙角处的疏影斑驳,几分诗意,几分温情。
茶室通过地台抬高的方式形成了空间的分隔,以一种半开放的形式呈现,减少了空间的约束感。主体空间简淡而留有余韵,正如茶一样,淡中滋味,闲中滋味,给心灵一点空间,给生活一点余地。
深藤浅麻,交织成趣;灰石青砖,古而不拙。是以观者漫步其中,步步皆景,禅意自如。
未经装潢的水泥质感,沉稳自然的特性,让空间有着让人格外放松的氛围。这里是工作室最受欢迎的区域,可以一览广州的网红打卡点,工作累的时候,一边眺望美景,一边沐浴阳光。
在打拆过程中,设计师觉得铲灰后斑驳的墙面与装修基材夹板的搭配非常有意思,就把它保留了下来。
一种充满了岁月感的美与外面现代的建筑形成强烈的对比,有种“身在城市、意在山林”的抽离感,亦是“多方胜景、咫尺山林”的诗意感,亦是”境在此中、缘于山林“的温度感。
把卫生间独立外置,所有的功能区设计在木盒子过道的两侧,在整体功能布局上,采用了错层的方式设计,同时满足了休闲、展示、办公等需求,还避免了空间的逼仄感。
形的极简,色的朴素,在材质中循迹自然与时间印记,是对事物本质洞察的智慧,亦是生活本真的回归。
木盒子左边是办公展示区。屋内陈设不多,不粉刷墙壁,不张贴壁纸,整个空间只有裸露的水泥和木夹板,简单朴素之下却折射出自由随性的感觉,看似简单,却有着一种自然的朴素之感。
斑驳墙面,横梁裸露,水泥贯穿全屋,青砖背景墙,无一不在诠释着复古艺术气息,细细品味,给人一种简单随性、粗犷不加修饰的视觉效果。

参差不齐的承重梁,还有裸露冰冷的的水泥墙,在满足日常生活需求的同时,最大限度的保留房屋原本的样子。

有句话说得好:“less is more。”简单即是美。正是没有繁杂的装饰,也没有复杂的结构的风格,反而承托出屋主的随性与淡然。

繁华落尽,最打动人心的还是大自然纯粹朴实的色彩与质感。最终我们还是要讨好自己,回归初心,静享自然。
庄子说朴素而天下莫之与能争美,朴素是事物本真之美。

也许每个人心里都有一片宁静自然的桃花源,我们从自然的深处,汲取宁静的泉水,滋养着心的深处......
项目概况
项目名称:桃花源
项目地点:广东 · 广州
项目面积:65平方米
项目类型:办公空间
设计时间:2022年3月-2022年4月
设计单位:古月空间设计工作室&如观设计工作室
主创设计:胡哲、全志鑫
设计团队:胡哲、全志鑫、练铟涛、陈雪茵
项目摄影:林灿宇
主要材料:水泥、夹板、白墙
-
曾获荣誉
2022第三十届APIDA亚太区室内设计大奖 居住空间金奖
2021营造家奖年度最佳中户型设计奖
2021第二十四届CIID中国室内设计大奖赛 最佳设计企业
2021第二十四届CIID中国室内设计大奖赛 经济型住宅工程类金奖
2020第二十三届CIID中国室内设计大奖赛 最佳设计企业
2020第二十三届CIID中国室内设计大奖赛 经济型住宅工程类银奖
2020第二十三届CIID中国室内设计大奖赛 休闲娱乐工程类优秀奖
2019第二十二届CIID中国室内设计大奖赛 住宅工程类优秀奖
-欢迎投稿-
投稿作品仅限首发、新作,接受室内设计、建筑、景观等作品投稿。
邮箱:zhongguoshinei@163.com,投稿请添加“CIID2019”微信~
点“在看”,为好设计点赞