
来野民宿 · 十二兽
山野始于斯
延续来野一期“自然、野趣”的品牌文化,二期来到了湖州霞幕山的一片山林间,周边皆是崇山野岭,阔大的空间让这间民宿得以尽情释放野性,犹如沉睡在林中的一头野兽。

野兽派建筑

经过一片树林与草地,来野十二兽建筑赫然立于眼前。设计师将此建筑比拟成动物粗犷自然的居住空间,抽象出几何形不规则体块,不同于平直的线条,三角形的棱角构造赋予建筑极强的视觉张力。






入口处设置了一条长长的汀步道,增加了整个入户的仪式感,镜像的水面将建筑的倒影拉长,仿佛与天地融为一体。


经过入口的三角形体块,光线延伸在墙面上,这是来自大自然的洗礼,客人由此进入另一个奇妙的空间。
万物有灵


通过不同体块的构造,将光线自然地引入室内,达成室内与室外的和谐对话,走过这里犹如悠然自得地在山林间遨游。












十二生肖
01
RAT
鼠


根据鼠生活的环境,设计师选用黑色为主视觉元素,搭配线性灯带,让房间呈现出神秘又温暖的质感。墙面上开出的洞口模拟老鼠出入的轨迹,宠物与小孩也可以在这里自由进出。
02
OX
牛
从黄牛健壮的体态解构出夸张的造型体块,房间内包裹着木饰面,质朴纯净,犹如黄牛的性格般沉稳安静,结构与颜色的搭配让一切显得恰到好处。
03
TIGER
虎

04
RABBIT
兔

兔子的纯洁让空间以一片白色呈现,硕大的兔耳朵体块与落地玻璃相互构成,映出远处苍翠的群山风景,客人在此枕山入梦,有一种身临其境之感。
05
DRAGON
龙


通过波光粼粼的材质呈现出龙鳞片的质感,材质的碰撞加深空间的氛围感。圆弧形体块构造相互连接,展现出龙盘旋的身形姿态,客人在泡池中沐浴,享受尊贵的体验。
06
SNAKE
蛇
07
HORES
马

08
SHEEP
羊
山羊角弯曲的造型置于顶部,黑白的配色展示出山羊敢于冒险、勇往直前的个性,让空间显得酷劲十足。
09
MONKEY
猴
猴是loft亲子房,拥有纵向的活动空间以及独立的院落,呈现出猴子在高松的树丛中跳跃的习性。从室内到室外,尽情释放天性。
10
COCK
鸡
11
DOG
狗
12
PIG
猪

通往顶层空间是一片露天的无边泳池,泳池中嵌入一条长T台,客人可以在这里尽情开展走秀与派对,找寻人与自然结合的内在意义。



#
Plan & concept
图纸呈现
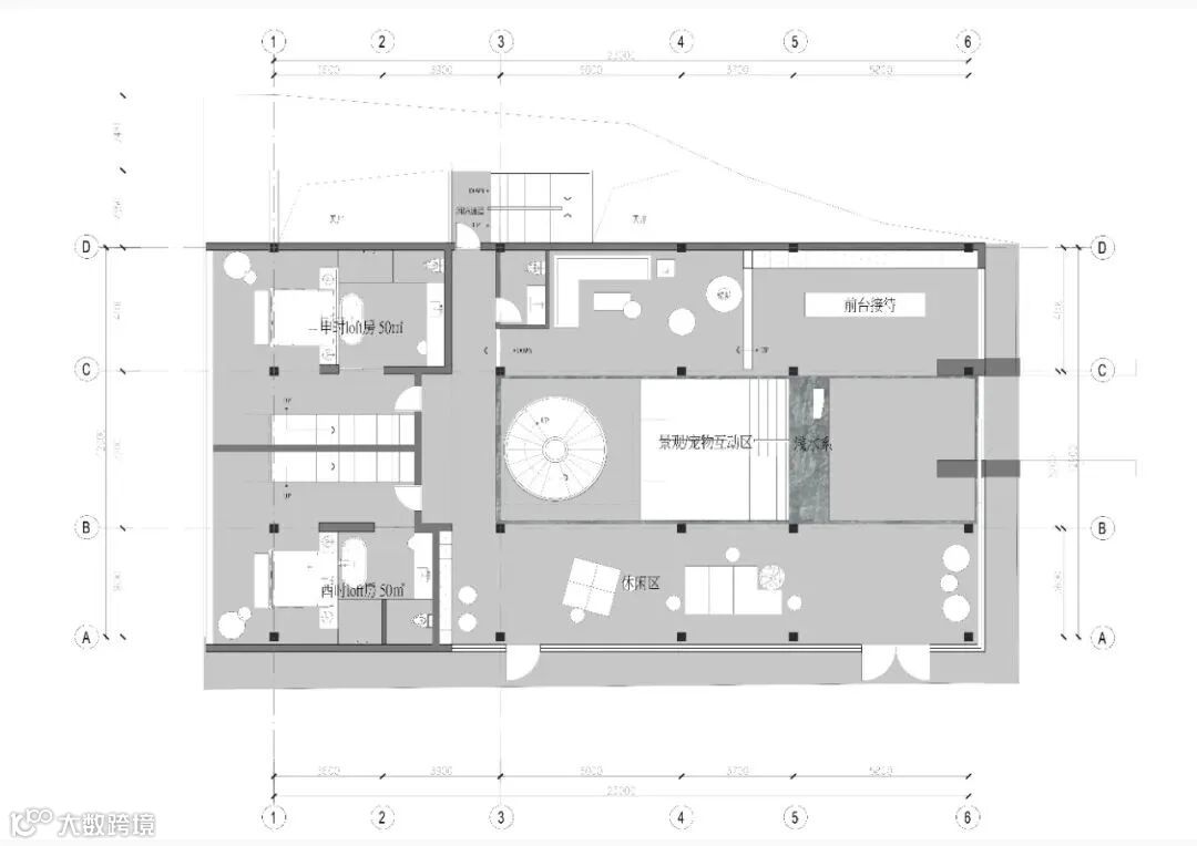
地下一层平面图
一层平面图
二层平面图
项目概况
项目名称:来野民宿 · 十二兽
项目地址:浙江,湖州,霞幕山
建筑面积:1700平方米
完工时间:2022年8月
设计单位:杭州时上建筑空间设计事务所
设计内容:建筑设计、花园设计、室内设计
设计团队:沈墨、叶成杰
灯光团队:杭州乐翰照明设计工程有限公司
施工单位:浙江佳诚邦闳建设有限公司
*本文来源于网络,如有侵权,请联系删除。
-欢迎投稿-

