BUUMI提出一个全新游乐理念,它区别于常见的乐园形式,那种通过大型“玩具”的游乐设施让孩子玩耍是一种被动的方式。本项目更加关注儿童的主观感受和针对纯真的玩(Pure Play)。这是定位淡化乐园概念和过于娱乐性,以设计语言构建玩的自然场景,让孩子以互动的方式感受游戏的快乐,认知自然的魅力,调动起孩子的主动性和释放本能。


山之势
Mountains and valleys




风之形







05
外之域
Outer Space



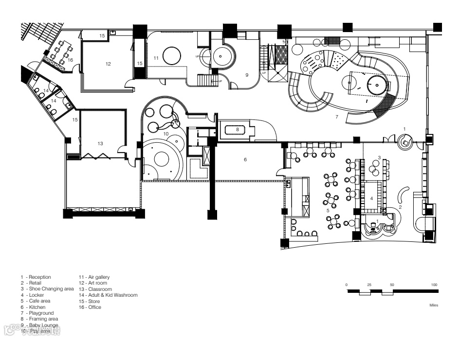
项目概况
项目名称:Indonesia_Buumi Playscape Children Center
项目地点:印度尼西亚 雅加达
发展商:PT Sentra Bermain Pacific
项目面积:824平方米
项目年份:2021年完工
室内设计:P A L DESIGN GROUP
主创设计:何宗宪
项目设计:林锦玲
项目摄影:Mario Wibowo Photography
-欢迎投稿-

