Y Hotel & Kitchen, 位于三亚市的阿那亚「三亚的山」社区内。米白色的建筑,由一个安静且私密的酒店及一家对外开放的社区餐厅构成。项目位置并不临海,四周被起伏的山形围合,紧邻周围的别墅住宅。以伴山而居取代傍海而宿,以向外的欢乐转为向内的探索。
非同于「在山里盖一栋房子」的通常做法,我们将Y Hotel & Kitchen 大部分建筑空间隐藏于地下,酒店的屋顶与周边的住区地面齐平,做成一个邻里愉悦的「野生花园」,这使得它非但不阻碍周边住区景观视线,反而成为社区独特的花园风景。酒店呈现出静谧的氛围,开放的餐厅充满愉悦,它是一个友好的建筑,希望来此的人们能更多地去亲近自然,回到内心的平静,本真的日常生活里去。
▋
—
2019.07
阿那亚 . 三亚的山
Y Hotel & Kitchen
Y hotel & Kitchen 的入口是一片靠近社区环道的空地,酒店与餐厅各自独立,由一个灰空间相连接。山成为模糊的远景,建筑则好似山的一隅,静谧地隐藏在社区中。
酒店接待厅更像一个「家的客厅」,空间沉静,早晨的光与影穿过白千层树叶蔓延进室内,带来清凉与安宁。在这里能望见屋顶的花园,也可俯瞰下沉的庭院。
酒店入口 | ©尚壹扬设计
—
谢柯



酒店接待厅 | ©尚壹扬设计


酒店大堂 | ©尚壹扬设计


y 餐厅入口 | ©尚壹扬设计

咖啡餐厅 | ©尚壹扬设计




1F咖啡厅望向屋顶花园 | ©尚壹扬设计

在负一楼,我们释放出更多供人沉思的空间,将喧闹隔离在这个小世界之外。留白,亦是能容纳万物:光线、秩序、情绪,自在的呼吸。将建筑沉下去,在后花园与旁边的住宅之间做了约有6米高落差的垒墙,如此一来住宅与建筑相互之间是完全没有对视的,同时与阳光保持着恰当的距离。







通透明亮的餐厅区域 | ©尚壹扬设计
采光庭院 | ©尚壹扬设计


鉴于当地气候与光照,宽敞的挑沿既能遮挡阳光,又避免了与高地产生对视,满足建筑的功能性。同时予人庇护感。走廊灰空间,处在自身的沉静中,十分开阔自在,呈现出一种「空」的状态。
庭院天井将视野向外向上延伸,抬眼是纯净的蓝天,生长的植物,流动的光与风。我们选取真实的天然材料给予空间适当的包裹,米色的涂料及水洗石地面相融为一体,带来不易察觉却富有质感的手工细节。

屋顶花园 | ©尚壹扬设计





顺着小楼梯,可以走上屋顶近距离亲近「野生花园」,一片疏朗的芒草将在三亚的阳光与雨水下疯长,爬藤类植物会随着时间慢慢垂吊下来,蔚蓝的天空下,人如在海边,如在旷野之中。当矮墙逐渐消隐,内外的边界变得更模糊,建筑的几何元素也会跟着柔软起来。
在屋顶覆土栽种不仅美观,同时也起着隔热效果,让空间始终有着舒适宜人的温度。调试建筑内外的温度是此次设计的重点,不仅是物理上的,还有心理上的温度。在这里,人的感官将优先于理念。



酒店共有8间客房,面积从80到100多平方米不等,每间布局及陈设有所不同,室内都带有独立庭院及采光天井。通过开敞通透的玻璃界面照亮与温暖各个空间,水平落地长窗将风光景色送入室内。
温度适宜时,居住者可移动打开玻璃门进行通风,随时步入种满植物的私密庭院。院外,只放置一张拙朴条凳或者一把温润单椅,好似简单轻声地提示:「慢下来,放松下来」。
客房花园 | ©尚壹扬设计
客房独立花园 | ©尚壹扬设计
客房采光天井 | 尚壹扬设计

客房花园 | 尚壹扬设计
更多客房空间 | ©尚壹扬设计





双面采光天井 | ©尚壹扬设计









Y Hotel & Kitchen 隐在地下,藏身在大自然中,它既是酒店餐厅,也是整个社区的花园。我们尽可能地去除多余的装饰,留下生活中更本质的东西:空气、阳光、蓝天、植物、远山......少且精的物质, 简约,且丰盛。
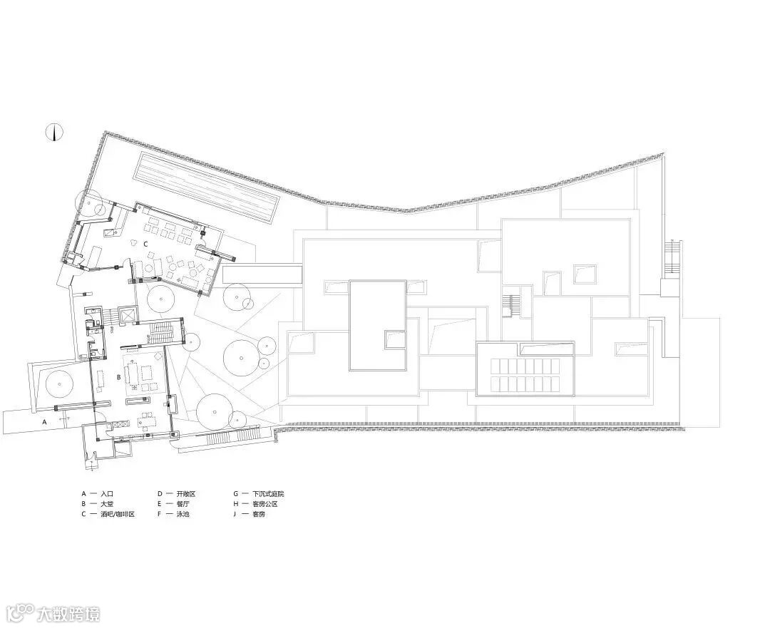
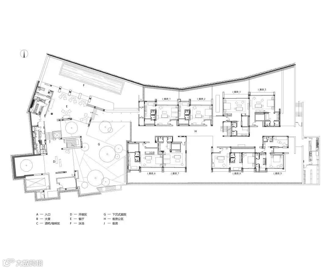
设计图纸

Plans, © Syy Design
Section, © Syy Design
Section, © Syy Design
Section, © Syy Design
Section, © Syy Design

项目概况

-欢迎投稿-

