自由流动的曲面玻璃砖墙将室内外串联,这种连贯的建筑语言将客人由入口拱门引入,或走入室内,或盘桓于庭院,享受一片宁静。
造园
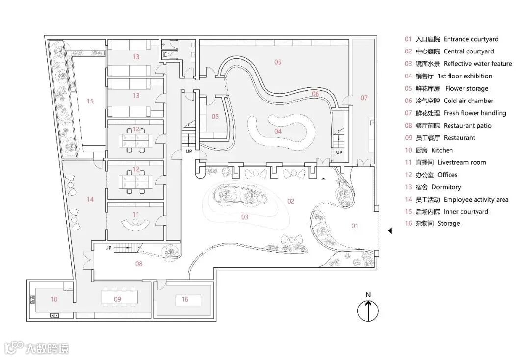
庭院中心保留原有的两棵圆柏,围绕圆柏,在人体视线高度范围内种以观赏性较高的蓝雪,形成一个茂盛蓬勃的景观中心。一面7米高玻璃与红砖组合的墙面作为庭院端景,将展示区与后勤区进行划分。景观水面将这一切融化在朦胧倒影中,洗涤外界烦嚣,灵动了整个庭院。景观选用蒙古栎、白桦等北方特色乔木映衬砖墙,则传达一股清冽而又饱满的,专属于北方大地的生命力。

一面7米高玻璃与红砖组合的墙面作为庭院端景,建筑与景观一起形成一个静谧而又生机盎然的梦幻“花”园。


隐藏于主厅后侧的员工日常办公通道

景观水面将周围的繁茂融化在朦胧倒影中,灵动了整个庭院
外观夜景
室内
主厅承担对外销售及花艺制作的功能。设计将原有窗洞扩大,形成三个大落地窗,不仅使室内花材获得充足的阳光,提供明媚的展示空间,还把室内多彩绚丽的鲜花映射到室外,与室外生机勃勃的庭院景观相互映衬、相得益彰。两层通高的玻璃花墙使顾客可以任意游走于各式鲜花前采购和拍照,诠释只和花“鲜花超市“的品牌定位。二层为绿植展和顾客休息区,客人可在绿意中俯瞰鲜花制作的过程。

两层通高的玻璃花墙
功能
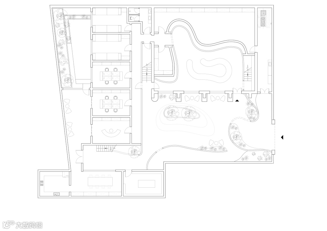
项目功能分为内外两区:外区由280平方米的工作间和180平方米的景观庭院组成,满足对外展示、销售、客人休憩的营业功能,以及花艺制作和储存的生产功能;内区总面积370平方米,分上下两层,用于后勤办公和员工住宿。项目在满足自身对外销售和展示的前提下,也为品牌旗下其他店铺提供后勤支持。
功能分区示意
材料和技术
晶莹的水波纹玻璃砖与坚实的红砖组合,利用梯形截面砖结合错峰砌筑法实现砖墙的曲面化,实现室内外空间的连贯与流动。为保障展示花材的日常保鲜,设计利用双层墙体制造空腔冷却系统。对空腔输入冷气后,经由腔体导入各个花筒,通过花筒背后的冷气孔,精准冷却桶内鲜花。花墙后侧则为低温冷藏库房,以供更长期存放。
空腔冷却系统分析图
改造前(左)改造后(右)
总平面图
一层平面图
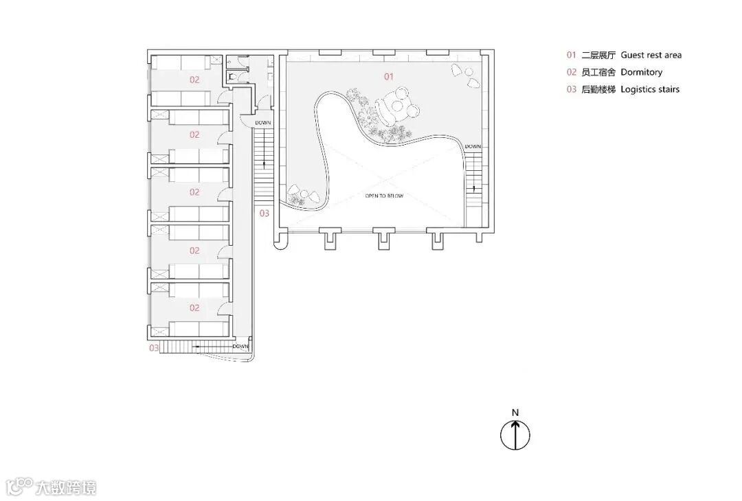
二层平面图
*本文来源于网络,如有侵权,请联系删除。
-欢迎投稿-

