
北京西山杨公馆视频
业主明确了解,未来十年的居住体验,家庭成员的多样需求,甚至办公与招待属性的满足程度等,皆是影响幸福感的重要因素。在先后与六位设计师进行方案沟通、设计中断后,最终与上海艾未设计不谋而合,共同构筑纯粹惬意的安憩之地。
礼遇 · 思绪蔓延

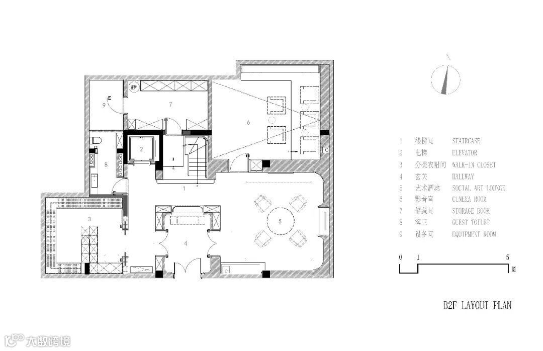
设计师世亮通过对功能梳理、动线规划,以及整个逻辑的串联,为地下二层配备了社交艺术酒廊、专业影音室、分类衣帽间、储物间及客卫,在满足男主人工作与社交需求的同时,也为家庭成员提供了休闲娱乐场所。
玄关似一座水晶宫殿,以四面通高的玻璃门,将内、外朦胧划分,渲染秘境之感。每组门的开合转换,可实现不同功能区的划分。围绕此而设的隐藏式储物柜,旨在满足居者不断增长的收纳需求。金属网勾勒出旋转而上的楼梯轮廓,令人心向往之。
影音室以简洁纯粹淡化空间属性,材质、灯光与艺术的融合,阔奢气氛弥漫其中,带来更优观感。
水吧台在金属与石材碰撞,线条和饰面交错间,打造出时尚、丰富的一隅。
社交 · 诗意流转
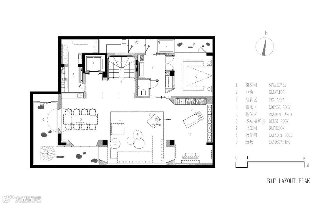
负一层别出心裁,以天井造一方生态小景,并灵活运用材质、线条、色彩与光影的变化,于此谱写出和谐的韵律之美。
在深入沟通了解下,设计师世亮匹配居者兴趣爱好,规划出饮茶、阅读、天光钢琴房等休闲区,及多功能组合套房,强调互动联通,提升居家品质。


休闲区以淡雅的黑白色,搭配清新自然、柔软舒适的陈设,在开敞交互与框景设计中,淡化界限,以容纳生活百味。
光,从天窗洒落,钢琴仿佛披上星光点点,弹奏出绝妙的乐音。悬挂的画作《等光洒进来》,则呼应场域气氛,让这一隅更加耀眼夺目。阅读区作为陶冶情操的延续,以借景手法与温润质地,造一方优雅恬静。


饮茶区采用建筑的开口设计,让方与圆相结合,呼应东方文化中的天圆地方。天窗的设置,便于将阳光引入室内,而洞口金属编织的屏风则起到些许遮挡作用,随着时间流逝,照射角度亦随之变化,光影似乎成了大自然的调色板,描绘出一幅幅趣味、温馨的画卷。

尊贵礼遇在客房展现得淋漓尽致,以此为中心,可灵活组合周围的空间,形成一个带有自然植物景观,具备泡池、桑拿于一体的度假式套房。
楼梯采用黑白色系的线条上下延伸,仿佛水墨流转,诠释出场域的关联与层次变化。
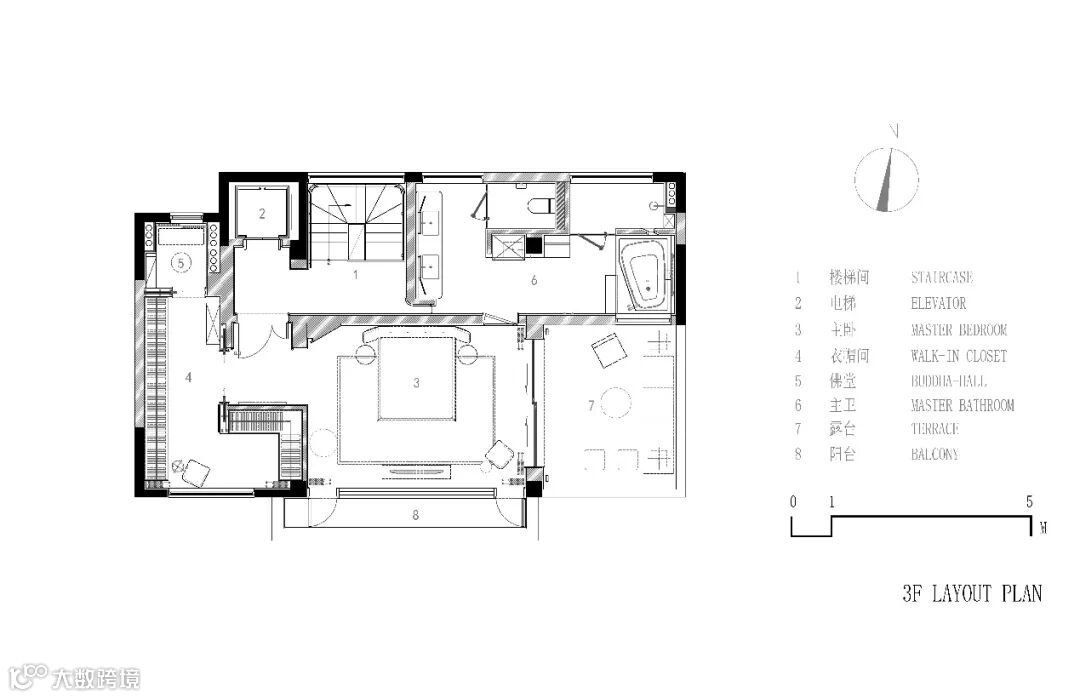
日常 · 简雅随心
一层置入多元化的生活场景,规划出客厅、餐厅、中西厨及阳光健身房,室外增设绿植区和BBQ露台,行动坐卧、饮食起居,不放过每一个细节,以期还原最契合人居的休憩场所。







私境 · 心之所向

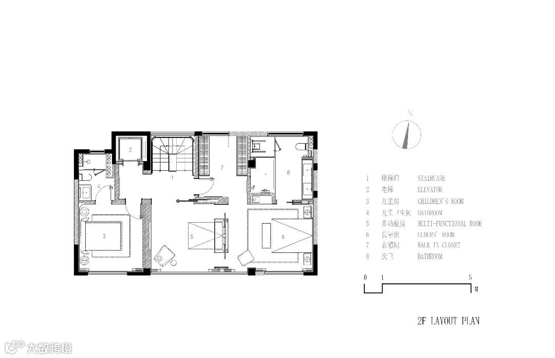
对品质居所的诠释,融入到每一方寸间。卧室作为身心的避风港被置于上层,设计师世亮以内敛的手法,在格调中寻求宁静,以实现私密领地不受打扰。并精心调和居者、场域与自然的关系,在有限的空间里演绎无限巧思,拓展更多可能性。






室内设计或许有千万种表达,但落到实处,终归是打造最契合居者个性与气质的家。这座五层别墅承载着家庭成员对未来生活的期许,世亮与艾未设计团队,以灵活多变的布局,完备的功能分区,自然与艺术的点缀,描绘出居者向往的栖心之境。任时光荏苒,人事纷繁,灵魂与爱皆有所依。
项目概况
项目名称 : 北京 西山 杨公馆
项目业主 : 私人住宅
建筑面积 : 720平方米
项目地址 : 北京
硬装设计单位 : 上海艾未设计
软装设计单位 : 上海艾未设计
设计主创 : 世亮
设计团队 : ARVI DESIGN STUDIO艾未设计
施工团队 : 毅力恒兴精装
灯光执行单位 : 洸泉科技
软装执行单位 : 上海睐芙贸易有限公司
设计时间 : 2020年4月
完成时间 : 2022年10月
项目摄影 : 郑焰
设计师和设计公司简介
相比于设计师,他更希望将自己看作一位生活文化创作者,这让他时刻保持敏感,不断重新审视、挖掘生活中的“习以为常”,通过生活体验去创造新环境。

ARVI DESIGN STUDIO艾未设计, 由世亮于2014年创立,核心团队由一群年轻有活力的新锐设计师们构成,艾未以东方传统文化为土壤,立足当下,致力于生活观念的启迪,不断洞察与尝试,不断创新与探索,开创出独特且符合当代审美的设计语言,引领当代生活方式。专注于精品私宅、地产公司、品牌酒店和商业空间的设计顾问服务,形成建筑、室内、景观、软装设计于一体的完善服务体系,专注于每一空间设计,为其赋予独一价值。
-欢迎投稿-

