

荷御 • 私宴 • 茶道





“疏影照人爱非愁,小河流水璨似柔。”我们尝试将光影结合,运用光与流水声的渗透去塑造大自然,让人与自然共生。荷花造景,寓意和顺。以流水为引,菜香为媒,汲取宁静营造自由的净土。











构造 · 隔而不透。尺度内,用细节包裹极简。内部是质朴的无雕琢天然感。访客走过挑高的廊道,像是走入光影如画的艺术之境,开启一场美学偶遇。






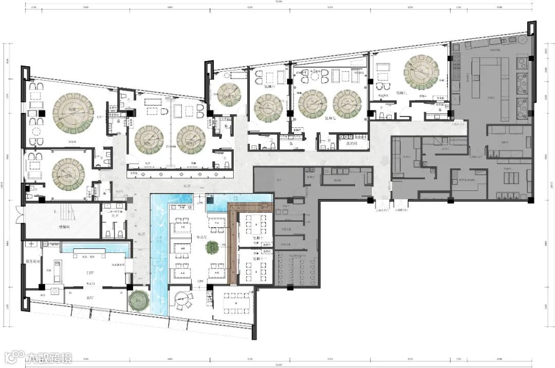
平面图
施工方:赵海余
设计师简介
-欢迎投稿-
中国室内

荷御 • 私宴 • 茶道





“疏影照人爱非愁,小河流水璨似柔。”我们尝试将光影结合,运用光与流水声的渗透去塑造大自然,让人与自然共生。荷花造景,寓意和顺。以流水为引,菜香为媒,汲取宁静营造自由的净土。











构造 · 隔而不透。尺度内,用细节包裹极简。内部是质朴的无雕琢天然感。访客走过挑高的廊道,像是走入光影如画的艺术之境,开启一场美学偶遇。






施工方:赵海余
设计师简介
-欢迎投稿-