西班牙品牌德赛斯岩板江苏旗舰店位于南京梦都大街旁的街心公园内侧,透过小树林,路过的行人可以隐约看到独特而充满力量的建筑轮廓。Techsize德赛斯是由全球著名的岩板企业NEOLITH在引入中国市场后成立的品牌,其中Tech代表Technology科技与创新精神,Size代表不断突破边界的追求。

德赛斯希望这一设计能够通过建筑立面和室内空间的设计,展示品牌对生活美学的终极追求,突出“创造梦想生活空间”的品牌理念,进一步向人们展示品牌如何通过将不可再生的自然元素石头与人、自然和美学完美结合,实现可持续发展。
项目视频
积石成岩
岩板的多维度运用
研磨和提取天然原石、压制、高温等特殊工艺,最终将岩石涅磐成岩,这就是岩石板块形成的过程。设计师从中获得设计灵感,并通过抽象技术将经历了时间洗礼的原始岩层转化为空间的特殊表现。

这座建筑的正面主要由石板构成。在一楼入口处,宽阔的悬檐由细长的柱廊支撑,南立面和东立面的大面积玻璃幕墙大大减轻了深灰色石板带来的厚重感。
二楼立面主要以深灰色石板装饰,其间散布着一些水平堆叠的石板。这些石板以一种充满秩序和节奏的方式镶嵌在二楼的立面上,仿佛在讲述原始岩层的形成过程。“线与面”“轻与重”“透明与密”的碰撞为整个立面带来了一种隐藏在冲突中的平衡美,这是非常戏剧化的。
分层的石板从建筑立面延伸到内部,成为整个商店展厅的主要元素之一。它可以是大型电子屏幕的背景墙、屏幕、隔板、装饰和产品本身。在光线的投射下,它们形成了长或短的影子,就像一首悠扬的歌。
爬上厚厚的黑色螺旋楼梯,进入一个似乎没有屋顶的圆顶。只有走出半圆形的洞,人们才能看到这个“圆顶”的全貌:按照一定的颜色规则,圆顶表面堆叠着厚度约为6毫米的圆角方形岩石板。这些深灰色和浅灰色的碎片就像鸟的羽毛,也被称为“翼墙”。
羽翼墙不仅承担着空间分区的作用,同时还是一个产品展示墙,顾客可以近距离的接触、感受不同色彩,不同纹理的岩板产品。
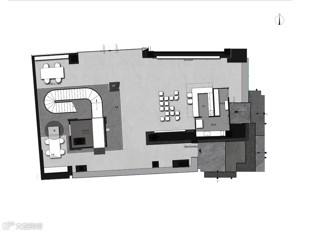
在功能分区方面,设计师采用多组空间布局,将展示、体验、沟通和工作完美结合。展厅一层主要分为西侧展区和开放工作区以及东侧共享区。
离沿街入口最近的是分享区,这里设置有一个酒吧和一个视频分享区,主要用于展厅平时不定期举办的一些客户活动及设计分享会。
沿着玻璃幕墙向内走,由不同颜色的石板引导的低台阶将人们带进一个“方形盒子”。这是螺旋楼梯的开始,也是一个“月光宝箱”,它从原来的石头升华成了一块石板:地面上的黑色小石头,挖空的墙壁后面的树木和流水的阴影,以及悬挂在上面的巨大石板,将天和地整合成一个方形的盒子。
设计师还在方盒的北面和西面各设置了一个开敞的工作区域,当然,也可用于接待。
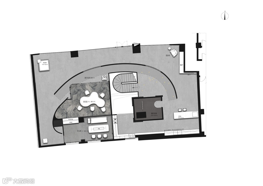
二层主要依靠圆顶形的“翼墙”作为空间划分。翼墙内部主要包括一个会议室和一个相对隐蔽的办公室。
而外部则主要为产品展示区,展示了岩板在家庭空间中不同的使用场景,如客厅、厨房等。
诞生
自然的给予
风蚀沉淀,水光潋滟,大自然造就了原石最初的形态,这里也是岩板诞生的地方。
设计师在这里创造了一个“自然的一面”,将水、植物、黑石和其他自然元素带入展厅空间,平衡了岩石板本身的厚度和柔韧性,为展厅营造了柔和的诗意氛围。同时,自然和石板的故事也在慢慢地讲述。
轴侧图
一层平面图
工作范围 : 建筑改造、室内空间设计、家具设计、顾问统筹
设计结构顾问 : Shanghai Sunyao Structural Consulting & Design Co.Ltd.
灯光顾问 : Dark Light Lighting Design
潘冉先生从传统筑造功法到艺术领域与建筑的内在联系出发,完整清晰的认知设计学脉络与设计践行的统一,代表作:【来院】、【望樾】、【紫金山院】、【⻓物之宅】 等作品中透出的人文气息,暗藏人与自然的内在关系,并喜从江南文人的精致生活态度中,解读空间美学与哲思。
名谷设计机构创立于2007年,十四年沉潜与磨砺,历经西方现代主义建造法则,与中国传统人文精神的回望,追寻经典美学观念,解读空间哲思,重塑城市生活希望。名谷人从传统筑造功法到艺术领域与建筑的内在联系出发,完整清晰的认知设计学脉络与设计践行的高度统一。团队严实的训练与精英客群执业经验;造就其事务所成为亚洲最具设计统合能力的设计团队之一。
-欢迎投稿-
投稿作品仅限首发、新作,接受室内设计、建筑、景观等作品投稿。
邮箱:zhongguoshinei@163.com,投稿请添加“CIID2019”微信~
点“在看”,为好设计点赞