
当空间的场域被打开,视觉的感官体验无疑是最直接的,居室的独特气质,在进门的一刻就拉开了序幕,一个开合的空间形态,动线被重新规划,居室的舒适体验被毫无保留地释放出来。发散,蔓延,起伏,平面布局自由不克制,才能发挥本该有的清丽模样。
LIVING ROOM
自由空间/无垠想象
01


客厅是家的中心,灵魂与身体的交汇之处。素白的墙面凸显出软装色彩的鲜明和个性的特点。如云朵般蓬松外形的泡泡沙发中和茶几的金属质感带来的冰冷,每一不同材质都恰到好处的点缀其中,构成一个细腻而富有层次感的设计。




用线条的弧度造出生活的温度,从现代的稳定中跳脱出来,流线型的动感和立体在灯光和金属层板的映衬下更显现代浪漫的情调,叠加的曲面将空间柔化并贯穿每一处纵向空间,打破直线的拘谨严肃,赋予空间灵动的多变性。


在空白的空间里,个性潜入生活缝隙,肆意地野蛮生长。“摆脱一切不重要的事情,越纯粹越艺术,当生活与空间摆脱没有意义的多数,才能有空间面对最本真的少数。”






空间与其机能之间保留着视觉与空间的连续性,柱体从墙体内剥离开来形成骨架体系,柱子之间充满无限视觉张力,一层透明的空气感扑面迎来,自由的平面构成了流动的空间秩序感,完美的表达空间尺度韵律和比例。



室内空间自由,没有完全割断式分隔,几何弧形与方形排成序列。流动,轻盈,飘逸,厚积薄发的低奢感受更具内涵,顶面结构梁体交错复杂,圆弧的正反两极,起伏中似乎让居者走进轻盈的飘逸空间。




DINING ROOM
流韵建构/几何律动
02


南北和东西轴线展开,纵向为厨房西厨岛台客厅,横向为餐厅以及书房功能客厅,运用向心力的方式向轴心融合,厨房全部敞开,让整个空间实现最大化。


几何形体的设计风格成为一种符号,餐桌与岛台之间利用钢板衔接,与竖向结构柱网交错,一直延续的轴线,绿色石材岛台架空脱离地面,轻盈之感油然而生。通过它来表达居者诉求,也在展现理性建构之美。

不仅要从视觉上赋予空间艺术感,更要兼具实用功能。桌腿金属支撑与透明亚克力交错成为艺术装置。


随处可见的收纳系统随着空间的架构延伸,通过比例分割金属与白色的组合,收纳与展示之间相互切换。空间的家具自由组合流动,无不体现舒适和随意,秩序感的空间变得可感知。


STUDY
高情逸态/趣意盎然
03

KITCHEN
转折联结/剖析解构
04


纵横线条,材质碰撞,削切,咬合,并置与拼接,硬朗中不乏轻盈,每一精细之处都具非凡的韵味。



抽象空间在一平一竖之间具象化,削弱一切无关于表达空间意识的附加品,回归到它的本质属性,提取空间纯粹的生命力。


BEDROOM
通透光影/起承转合
05
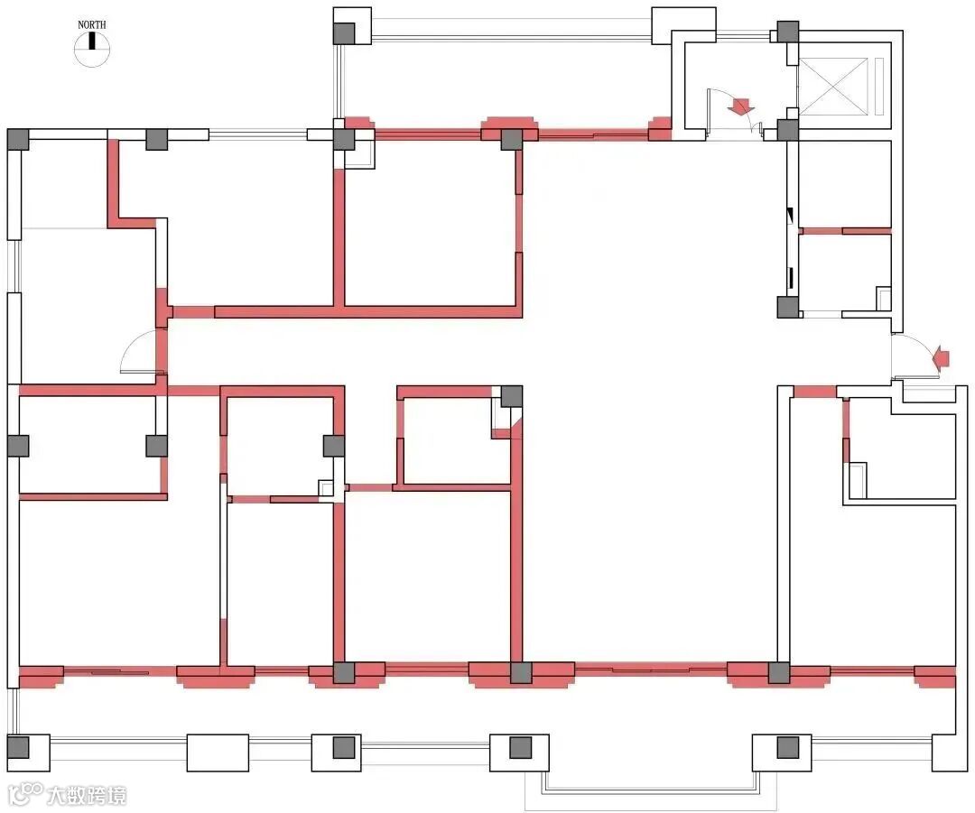
主卧环形动线
环形动线使空间与空间之间相互连结,平面的右半部分是功能附属空间以及次卧,左半部分是主卧及儿童房。


进入主卧分别有两条行为动线,卫生间与卧室之间结合衣帽的功能形成了内在的环形动线,动线相互依存,平面灵活自由。

衣帽间动态效果
利用光线影响视觉效果,空间大面积留白,通透白色形成不一样的情感专属地带。去除繁复的装饰与造型,日光透圆洞照射在卧室当中,在光影的轨迹追溯美好的时光。

在有限的空间发挥最大的使用效能,儿童房主要娱乐区与睡眠区相结合,顶面开启天窗自然光线引入室内,一个纯净的活力空间,一段安暖温润的时光之旅。
BATHROOM
虚实结合/别样质感
06



线条简单流畅,前卫时尚不羁。卧室与浴室之间墙面虚实结合,既保持独立又通透。


户型图

-欢迎投稿-

