其实
空间没有定式
生活也没有

在你拥有的一切之下·发现你想要的生活

3.卫生间偏小,没有干湿分区

5.起居室做了抬高处理,满足多场景使用需要
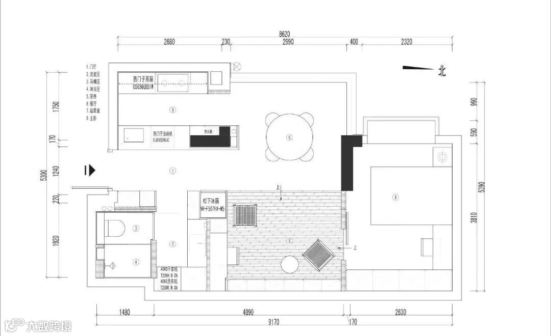
开放性LDK空间

屋主是一对很爱宠物的年轻夫妻,养了两只猫和一只狗,从事艺术手作行业的他们对空间、对生活的理解与要求是与众不同的,希望家是一个私人的、多元化的、自由开放的空间,在配色上全屋延续黑白木永恒的搭配,作为居住空间而言不过时也是最佳的搭配方式。

在注重体验感的当下,空间与空间的边界已变得逐渐模糊,因此我们打破原本零散的空间布局,“化零为整”,将起居室、餐厅、厨房甚至卫生间连通,形成一个既开放又相对独立的空间,释放空间活力,承载生活的各种可能。

我们采用弱化边界的设计,但又通过地面、柜体等形成软分隔,用开放又独立的呈现手法,使空间视觉上有一种开放的自由又不会让各个小空间失去该有的功能与作用。打破了传统边界带来的束缚,追求视觉效果上的通透感。

开放的公共空间犹如⼀个巨⼤的容器,将起居室、洗漱区、餐厅、厨房串联起来,赋予整个居所灵动的活力,自然气韵通透流畅,自由流淌,开放式厨房、餐厅、起居室、卫生间形成空间互动。

在这个项目设计中,我们保留了建筑过去的水泥横梁,搭配当下的白墙、饰面板,斑驳横梁为空间增加了岁月感,白墙与饰面板又给空间带来细腻现代感,空间形成了粗与细、从前与现在的视觉反差。
梁与夹板细部图片

材料的选择上都是一些原生自然的材质,如水泥、夹板、白墙、黑地板等。空间更沉稳自然简单,让人与空间产生共鸣,让家回归情感场所。

简单即是美。正是没有繁杂的装饰,也没有复杂的结构,反而承托出屋主的随性与淡然。

以生活为中心,构筑多元场景,丰富居者生活体验。

起居室不仅满足居家、办公、学习的需求,书桌柜子做了猫爬架,也让屋主与宠物之间有一个玩耍与交流的场所。

摒弃过多的装饰,在有限的空间中进行极致精准的表达,以克制主义美学,让空间的对外呈现更纯粹。

低调的木色,细腻的白砖、天然的水泥梁,简单的色彩与不同的肌理质感相得益彰,营造出沉静平和的氛围,带来超越舒适的空间体验。

看似简单的空间布局与动线规划,实则极富内涵。

不同空间自由联动,满足多样化生活需求。

不被既定格局限制,也不受单一风格约束,回归房屋的居住属性,定制化解构开放式自由空间。
卧室

卧室简约至极才是放松身心的最好选择,纯白的墙面与柜子,搭配黑色质感木门,床头简约编织坐垫的搭配下营造着原生态的质朴美学。

黑白产生的空间落差感,在木色的调和下,更多了自然和生活的温度。

时光流转万千,空间却可以慢下来。宽敞的卧室空间配上私人休闲区域,让居家生活变得随性自由,放逐屋主的自我思考与生活热爱。
卫生间

用一个不到顶的木盒子隔开洗漱区与起居室,满足空间中的多个功能需求。
洗漱操作台、起居室书桌、猫咪的玩耍区域

不到顶的木盒子,既能保证半封闭洗漱区的私密性,又能让整个空间视觉上放大,还能成为猫咪玩耍的空间。

洗衣机、冰箱、电器全部嵌入式设计,保证空间整洁、统一。

卫生间里的一面墙粘贴屋主喜欢的绿色手工砖,为整体比较严谨的空间增添一点调皮的气息。

洗漱区设计了一个偏复古的球形灯,打亮空间之余又打造出空间的氛围感。

古月空间设计工作室创始人、设计总监
设计理念:设计是一种创造行为,是创造一种更为合理的生活方式,在肯定实用功能的基础上,赋予空间人性化、情感化的过程。好的设计要以人为出发点,在解决功能需求的基础上,汲取生活及美的体验,人文的关怀
古月空间设计工作室
由设计师胡哲于2019年在广州成立,是一家以室内设计为主、根据设计意图全案落地的设计工作室,工作室专注于研究空间与人的关系,以使用者的喜好、需求、生活方式去定义空间。擅长现代风格、旧房改造、空间布局调整,不断学习整合传统东方文化在现代空间中的运用,传承与创新。
相关作品
古月设计作品:《桃花源》
-欢迎投稿-


