
设计力图通过有限的空间关系去影响家庭活动以及情感交流的机会,让生活的点滴呈现空间的本真情绪。

生活方式
围绕业主一家的生活方式,通过调整布局拓展了公区的尺度,并赋予不同的机能。







书房与其它区域存在互动的关系,不同的隔断隐藏着相应的收纳机能。客厅旁边的区域被赋予多变的可能性,它可以是女主人瑜伽健身的地方,也可以是小孩子们欢跑嘻闹的场所,通过折叠隔断还可以变化成临时的客房。






合适的度
把握住各自功能场域之间连结方式的度,通过业主的生活习惯有意识地营造场域之间沟通的趣味性,比如视线可及的角度。





生活的日常在空间里演绎,在书房区域可以透过多功能区平移柜门的镜子,看到多功能区的另一端,也许是小孩子在玩耍,也许是爱人在看书,又像小孩子踮起脚尖趴在书柜上探头看见正在书房工作的大人。





空间关系
设计力图通过有限的空间关系,影响家庭活动以及情感交流的机会,让生活的点滴呈现空间的本真情绪。






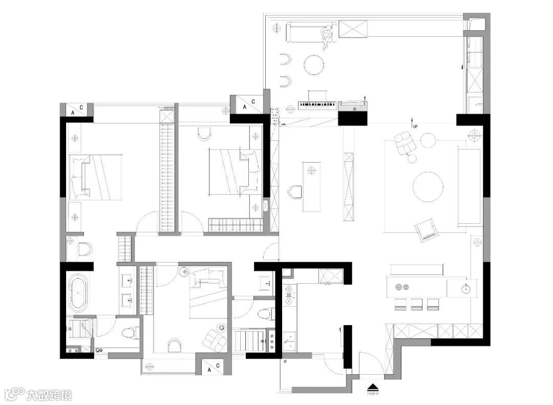
分析图

原始建筑
项目过程
项目概况
项目名称:园园的家
项目地址:广州
设计机构:臻筑设计工作室/JAME DESIGN
设计主创:詹益臻 / JAME
竣工时间:2021年12月
项目面积:196平方米
主要材料:白榆木山纹木饰面、芬琳墙漆
获奖人和设计公司

臻筑设计工作室创办人/设计总监
臻筑设计工作室位于广州,专注于高端住宅空间设计,为追求居住品质的私宅业主提供全案设计及全托落地解决方案,帮助业主实现对居住空间的期许与愿景!
-欢迎投稿-

