
每年一届的“新人杯”全国大学生室内设计竞赛,是我国院(系)间有重要影响的室内设计教学交流活动之一。为鼓励在校学生对室内设计学科的兴趣,培养学生的设计创新能力,发现和表彰优秀学生,加强院(系)间的教学交流,促进我国室内设计人才的培养和教学水平的提高,2023年将继续举办第22届“新人杯”全国大学生室内设计竞赛。
从创意和适用两方面来综合考评。创新新颖突出,富有想法创意,体现出独立思考,创新的设计理念;满足功能需要,符合相关规范要求。
由知名设计师及知名高校老师组成
本届竞赛主题是“酒店空间设计”,参赛人可自行拟定题目。
| 一等奖:3-5名 |
有奖杯和获奖证书 |
| 二等奖:5-8名 |
有奖杯和获奖证书 |
| 三等奖:8-12名 |
有奖杯和获奖证书 |
| 优秀奖:40名左右 |
有获奖证书 |
| 鼓励奖:60名左右 |
有获奖证书 |
| 导师奖:3-5名 |
有获奖证书 |
| 优秀导师奖:3-5名 |
有获奖证书 |
| 最佳导师奖:3-5名 |
有获奖证书 |
| 组织奖(面向院校):8-10名 |
有获奖证书 |
(注:最终获奖数量以本届评审组评选结果为准) |
(一)设计条件:
1、参赛人根据给定图纸和设计要求打造一款合适的酒店空间项目(平立面图等见文末附图,SU模型图和CAD图在文末或在网站www.ciid.com.cn下载)。该项目为小型精品酒店,参赛人可自行设定酒店主题,如城市商务酒店、度假酒店、生活方式酒店或某种特定主题酒店或某种特定风格酒店等等。项目所在地区背景参赛人可自行设定。
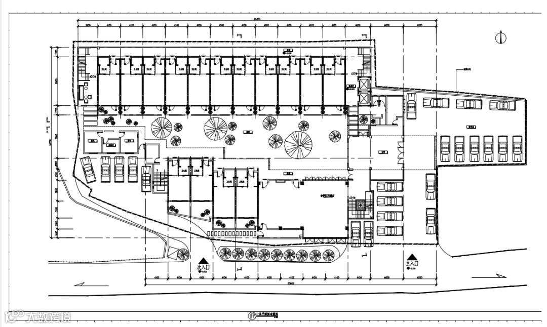
2、建筑条件详见相关图纸,酒店基本指标有:用地面积2411平方米,占地面积1098平方米,建筑面积4867平方米;原建筑标准客房数69间,原建筑复式客房数6间,总客房数75间。
3、建筑结构为框架及砖混结构,主梁高400mm,次梁高300mm。局部非承重墙体可根据设计需要进行调整,承重墙可根据设计需要局部开不大于1500mm的门洞,且需考虑结构的稳定性。保证结构的前提下,局部楼板可拆除。
4、原有楼梯、电梯位置不变,楼梯形式可以调整,但需满足消防要求。如有必要,可适当增加1-2部电梯。
5、外立面及门窗位置、形式可根据设计定位、设计风格进行调整,但必须考虑原建筑结构的稳定性。
(二)设计要求:
设计内容包含酒店公共空间及客房两部分。
1、公共空间包括接待、早餐厅及其它可体现设计理念(庭院、走廊等)的公共空间,可根据现代酒店的经营理念赋予空间的多功能性。接待空间需考虑两人办公空间及行李房,早餐厅需同时兼顾咖啡厅用途,并设置不小于20平米的厨房(可根据需要封闭或开敞),封闭厨房无需设计。入口广场、中心庭院景观可同时进行考虑,需设置不少于10个停车位。
2、客房数量可以根据设计需要进行适当调整,但客房总数不得低于68间。除客房规划平面外,需设计一套标准客房(标准双床间或大床房),一套套房(复式套房或平层套房)。
(三)设计成果:
1、设计说明:明确表达设计定位、理念及手法。
2、设计图纸:包括平面图、天花图、主要立面图等。图纸表达方式不限(CAD图纸、SU效果、3D效果、手绘等),能表达清楚参赛人的设计方案和想法均可。
3、效果表现:能充分表达设计的空间效果图,表现形式不限。
4、陈设设计:主要家具、灯饰、艺术品等的设计概念。
登录www.ciid.com.cn网站注册账号并报名参赛,网上填写报名表,提交作品电子文档,然后银行转账缴费。
1、参赛资料要求全部是电子版,不要纸质资料,资料用百度网盘提交。
(1)具体步骤:参赛人将展板及其他资料统一上传到个人的百度网盘——用“作品名称+作者姓名”去命名文件夹——将该文件夹分享,分享形式:有提取码,有效期:永久有效——创建分享链接后,将链接和提取码填入报名表相应空格。
(2)报名链接详见CIID室内设计网,网址:www.ciid.com.cn。
参赛者自行将设计内容排版,展板尺寸是590mm×820mm(竖式展板,分辨率300dpi,JPG格式,单张展板大小在5M-50M之间,不要过大及过小);1个作品可以1张展板或多张展板,但最多不超过5张展板。
展板用于评审,所以展板内只允许呈现设计的作品信息,禁止出现参赛人相关信息(包括参赛人姓名、签名、照片、院校名称、老师姓名等等)。参赛者无需在展板上方、下方或版面内某处标注新人杯竞赛名称或logo,组委会有需要时会统一编辑。
a.参赛者个人照/团体照(简单背景,不要大头照,JPG格式),参赛人简介(包括学校、教育经历、指导老师姓名等信息,word格式)。
c.参赛设计资料:包括主要的平面图、立面图、室内效果图等,图片要求JPG或PDF格式,且图纸中线条图案清晰。
网银转账、手机银行转账、银行柜台和邮局汇款均可,不接收支付宝和微信转账。非参赛人本人的账号转账时,必须在转账时的备注栏填写参赛人姓名。
开户行:兴业银行北京首体支行
户名:北京中室万方文化传媒有限公司
帐号:321280100100135344
汇款地址:北京市海淀区首体南路20号国兴家园4号楼2404室
邮编:100044
收款人名称:北京中室万方文化传媒有限公司
【重要提醒】
(1)报名表中“是否开具发票”项和“发票抬头”项及“社会信用代码”共三项中任一项空白不填或填写错误均无法开发票。发票统一是电子发票,开完后发送到参赛人填写的邮箱,需开发票必须在报名时完整填写开票名称和社会信用代码,只填开票名称不填信用代码则信息不完整,信息不完整不能开发票。如在8月15日前邮箱未收到发票,请联系组委会开票电话010-88355882查询,过期不再办理。
(2)凡是朋友、家人及任何非参赛者本人的银行账号转账缴费时,请必须在转账说明或转账备注中注明参赛人的姓名和电话,不然无法核对你的参赛费用。
(3)汇款时请准确且完整填写收款账户信息,任何信息填写错误时均会导致汇款失败,汇款失败的,款项当天就会退回汇款人的账户,退回后请重新转账汇款。
报名/投稿/参赛/缴费截止
2023年6月30日24时
1.参赛者仅限各院(系)全日制在读的专科、本科、研究生,2023年应届毕业生可以参赛,已经毕业的学生不能参赛。
2.参赛者可以个人参赛,可以团队参赛,一个作品的参赛团队只允许来自同一所院校,且团队参赛的人数不得超过4人。
3.参赛者应真实准确地填写《参赛报名表》,参赛者在报名表内所填写的所有内容默认是本人已确认无误,请认真填写。组委会在公布获奖名单,制作获奖证书,颁奖和对外宣传时将一律依据报名表所填信息,获奖名单公布后任何参赛人相关信息(包括指导老师信息)均不接受修改。
4.参赛作品展板中不能出现任何与参赛者、指导者以及院(系)等有关的信息和标记等内容,否则将视其为无效作品。
5.组委会有对参赛作品进行展览、刊登、出版的权利。组委会在使用参赛作品时,对其作者、指导老师以及院(系)的署名,均依据《参赛报名表》,获奖名单公布后任何信息均不接受修改和调整。
7.参赛作品必须是参赛者本人原创设计,可有老师指导,如发现抄袭现象,立即取消参赛/获奖资格。
8.每个获奖作品只颁发一份获奖证书和奖杯,获奖证书上日期一律写评审结果出炉日期,预计是2023年9月左右,该时间仅供参考,实际以当年真实情况为准。
联系电话:010-88355881/88355882
微信咨询:CIID竞赛组委会,微信请添加13001236031
(如有任何报名相关疑问,请电话或微信与我们联系)
附件下载:
网盘下载CIID2023年第22届“新人杯”全国大学生室内设计竞赛-酒店设计图纸图纸(内含CAD图纸和SU模型文件)。
百度网盘链接:https://pan.baidu.com/s/1SzkSSXaZvi9LdkwNL6QCcQ
微信扫码去网盘下载CIID2023年第22届“新人杯”全国大学生室内设计竞赛-酒店设计图纸图纸
2023年第22届“新人杯”全国大学生室内设计竞赛酒店设计图纸-SU模型图示1
2023年第22届“新人杯”全国大学生室内设计竞赛酒店设计图纸-SU模型图示2
2023年第22届“新人杯”全国大学生室内设计竞赛酒店设计图纸-SU模型图示3
2023年第22届“新人杯”全国大学生室内设计竞赛酒店设计图纸(一层CAD平面布置图)
2023年第22届“新人杯”全国大学生室内设计竞赛酒店设计图纸(二层CAD平面布置图)
2023年第22届“新人杯”全国大学生室内设计竞赛酒店设计图纸(CAD南立面图)
2023年第22届“新人杯”全国大学生室内设计竞赛酒店设计图纸(CAD北立面图)
