
以赤诚的待客之道,共聚安然时光

本案是位于广州CBD中的会所空间项目,由内而外,空间自由而通畅。汇创设计希望通过空间与人的深度交互,构建社交化和情感化的开放式场所,在城市中开辟出一处沉浸极致的会客之境,展现主人外在谦逊内在热情的待客之道。
光之链接 忘却时间的钟

相谈甚欢 宾至如归

简约线条与诗意画意尽显空间的品位与优雅,将东方礼序生动描摹。温润的自然内蕴深致,岩石与木质的返璞归真,如东方意境的山水之作,知觉之美不断晕染,为从繁闹的都市踏入内室的客人带来一份敦厚有礼的归属感。




应时而作 场域自生


时光里 共饕餮



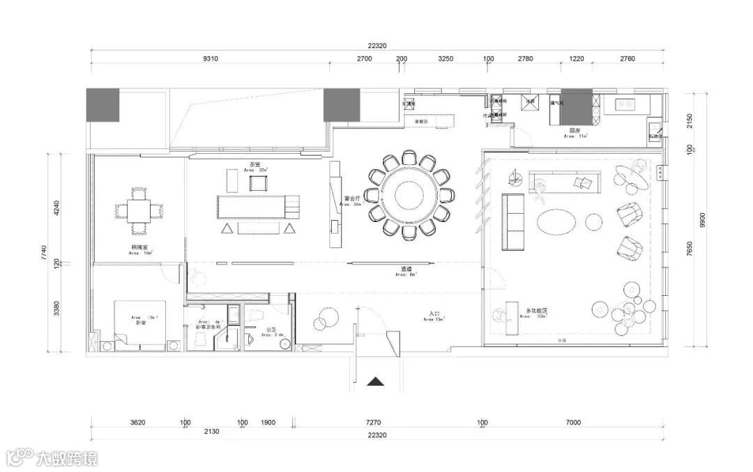
黑牛会所相互通融的开放空间赋予会客场景更多的可能性,或厅堂欢宴、或以茶会友、或举杯高歌,串联主人的生活态度与性格爱好的裂变,从认识、共鸣、融合各阶段层次,迭代渐进,拉近彼此之间的距离,沉浸式与观者的内心世界欣然相逢。
广州汇创装饰工程有限公司创始人 邹璇
-欢迎投稿-

