
五店市传统街区「刺桐别院」
「刺桐别院」原始外立面图


























外开上悬窗




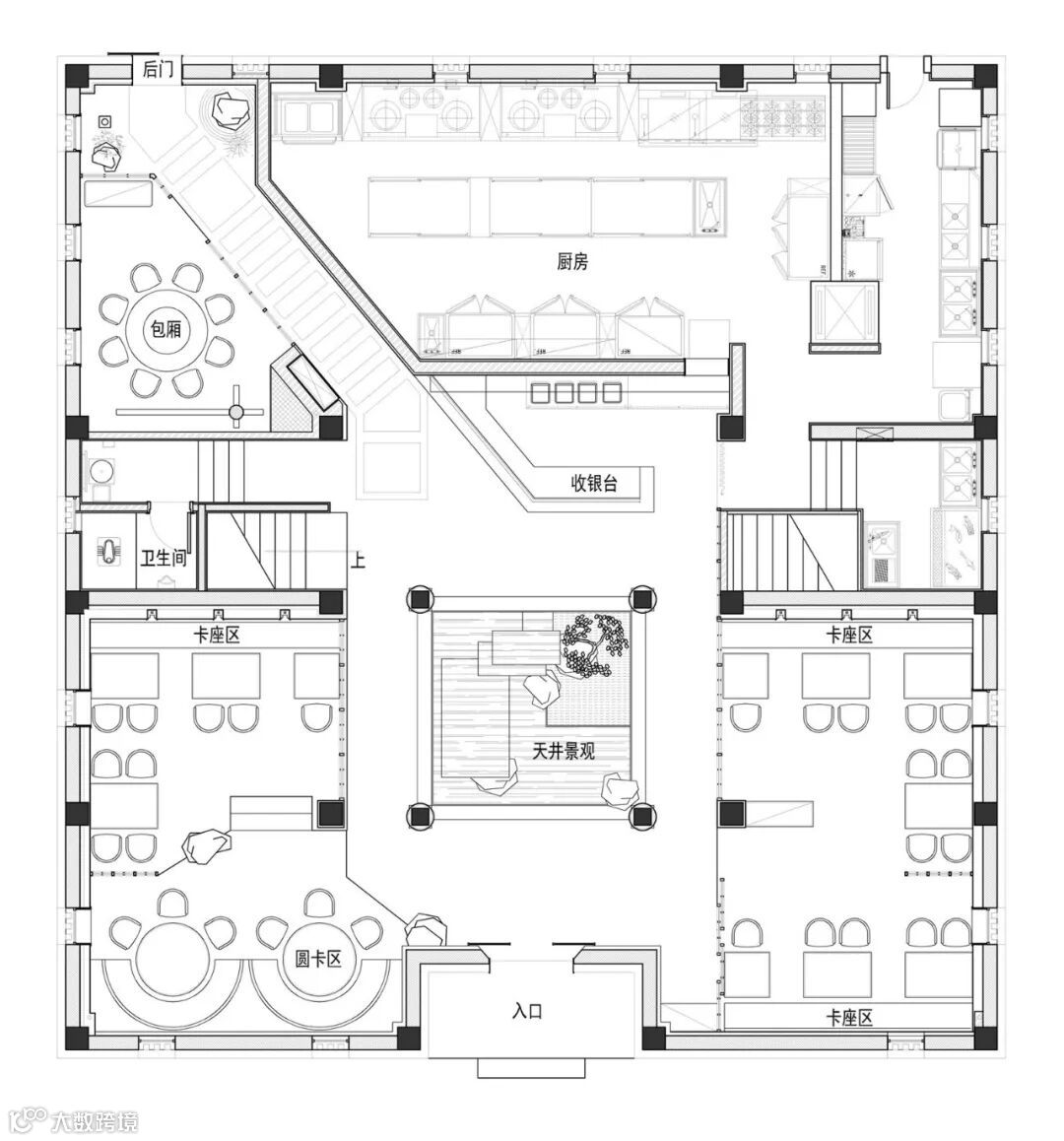
一层平面布置图
二层平面布置图
获奖人和设计公司
焕境室内设计创始人、设计总监
福建农林大学风景园林与艺术学院硕士研究生校外实践导师
-欢迎投稿-
中国室内

五店市传统街区「刺桐别院」
「刺桐别院」原始外立面图



























外开上悬窗




一层平面布置图
二层平面布置图
获奖人和设计公司
焕境室内设计创始人、设计总监
福建农林大学风景园林与艺术学院硕士研究生校外实践导师
-欢迎投稿-