珍妮之家 Jenny's House
时间赋予设计意义,一套从两人世界装修到三口之家的房子。
本案业主是一对年轻夫妇,男业主是一位机长,做事严谨,追求极致。女业主是一位温柔贤惠,美丽大方的空姐。在设计委托前时他们的宝宝还没有出生,因为疫情案子落地完成时他们的女儿珍妮已经会走路了。时间赋予设计意义,从两人世界到三口之家,都应该被设计照顾到。
▼鸟瞰模型

▼平面布置图
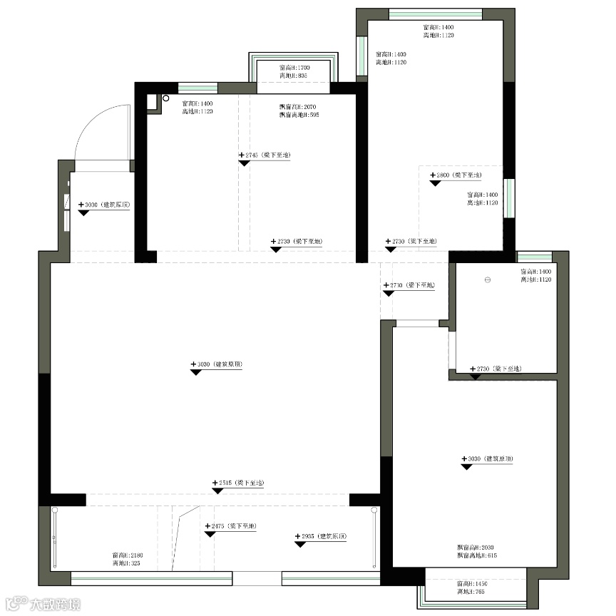
▼原始户型图
当我们拿到一个复式户型时,第一件事就是找到楼梯的最优位置,一旦上下楼层的连接点被锁定,其他的功能排布自然就水到渠成。一层和地下室重叠的部分只有南向的三个开间,北侧的厨房餐厅次卧下面就是车库,也就是说楼梯只能在南侧三个开间里选择一个合适的位置,在保证客餐厅空间的互动性和主卧独立性的前提下,楼梯很自然的被选择放在了入户的正对面。
入户的视线得到了最好的释放,仅仅只有玻璃的护栏出现在视野里。且对客厅区域造成的挤压感可以做到最小,楼梯上面的空间从视觉和感受上也可以作为客厅的一部分的延伸空间。
▼入 口 / Entrance
▼客 厅 / Living room
楼梯一旦定位,客厅的空间也就自然形成了。在这个案子里,我们摒弃了传统的客厅沙发电视面对面的做法,采用模块沙发居中放置。模块化沙发的好处有很多,面对空间的四个面可以独立形成各自的功能用途。
面对落地窗的部分我们在窗帘盒前面暗藏了幕布,沙发跟幕布之间形成了观影区。
面对孩子玩具收纳柜那一侧交给孩子作为玩耍区。
面对餐厅那一侧也可以成为就餐等候区。
顶灯开关对比图


顶灯开关对比图

为了加强沙发在区域里的中心感,我们在顶部做了一大块圆形灯膜作为客厅的主照明,让照明像一片天光一样洒下来,并把灯膜和天花的分界处进行了圆弧处理,让两者之间的边界变得更加模糊,柔和。

顶灯开关对比图


顶灯开关对比图

每个功能被设计好时都会留出使用该功能的尺寸,比如冰箱前面要留好开冰箱门的位置,灶台前面要留好炒菜的操作空间,如果我们设计可以把这些灰色区域进行组合重叠,那么空间的利用率将会被极大的提升。
原始户型厨房是独立的一个区域跟餐厅把北边分割成了两个独立功能区,这样分割会导致厨房闭塞餐厅拥挤,两个空间都无法很好的排布。我们的解决方案是把餐厨之间的隔墙拿掉两侧做上橱柜,将北侧的飘窗台拐弯延伸形成一个吧台,餐桌靠吧台使用。
左侧的橱柜跟吧台的水池形成了传统“中厨”的功能,右侧的橱柜可以在嵌入冰箱的的同时完成一个“西厨”的功能,餐桌靠着吧台放在北侧空间中间,把餐桌两侧的过道和“中西厨“的操作区进行了重叠,让两个功能都借到了彼此的灰色区域,增加空间利用率。
获奖人

构设计事务所设计总监 余礼华
-欢迎投稿-

