

坚果公寓共享中心外部
空间主要位于一个有挑空区域的地下一层,挑空区域外墙局部有玻璃幕墙可以采光。一层有一个独立的房间可供使用。
设计团队首先沿外墙加了一圈内挑的环廊,并在原有玻璃幕墙上开门联通,将共享中心的主入口和接待区从地下转移到地面层,最大化的提升了空间的可达性和整体体验。
空间设计前后对比示意图
坚果城堡示意图


坚果城堡
大小不一的拱门
楼梯


星光书廊



丰富的视觉效果
阳光休息区
接待前台



弧形楼梯





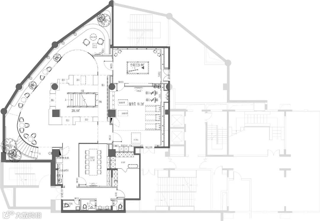
台球室与健身房

多功能室


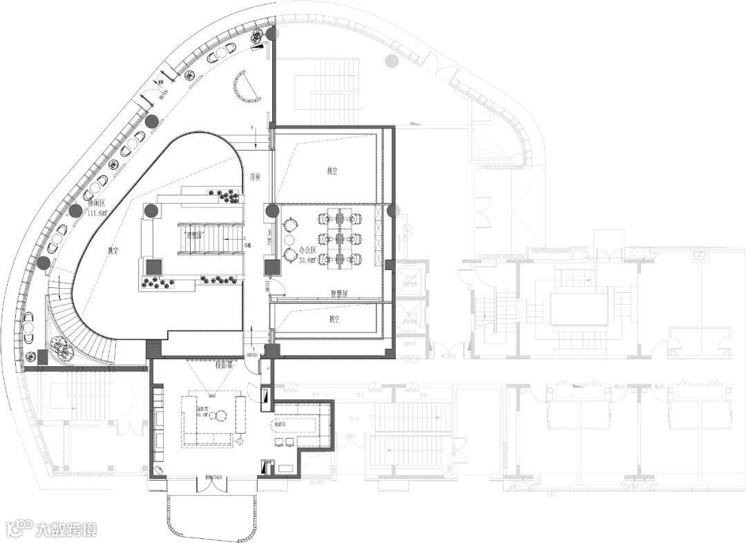
多功能轰趴馆
清石设计团队致力于打造一个自然、舒适、充满活力的共享空间,充分满足年轻用户的审美需求和视觉识别度。如今,这里不仅成为了年轻人喜爱的社交场所,也显著提升了坚果人才公寓的品牌传播力。
1层平面图

B1平面图
项目概况
项目名称:坚果公寓共享中心设计
项目地点:北京市海淀区后屯中街8号院
项目面积:651平方米
项目时间:2023年
设计机构:QUCESS 清石设计
项目负责:钱国兴
主案设计:钱国兴
设计指导:李怡明
设计团队:王海申、韩张生、刘伟、莫宏琳
软装设计:胡琨、平凡
照明设计:高赞
项目摄影:UOHO|建筑空间摄影- 陈军
获奖设计公司

-欢迎投稿-

