莱美医疗美容中心位于广东省揭阳市榕城区黄岐山大道,客户群体主要为女性,设计师锁定“峡谷”与“倒影”两种视觉意象,打造恢宏的幻境空间,带来自在穿行于天然峡谷的新奇体验。梳理场域关系,综合专业性与服务性,拉开沉浸舒享的序幕。
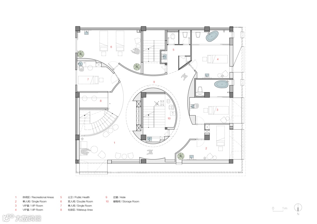
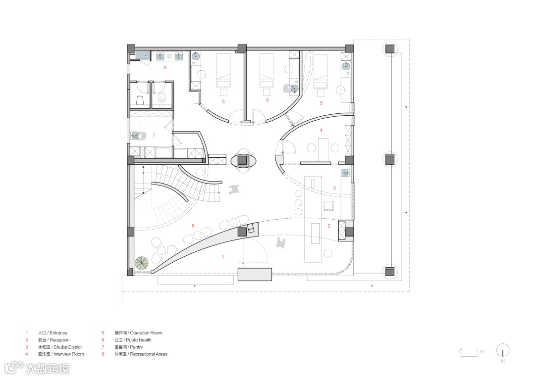
平面图-首层
项目名称:镜之峡谷-莱美医疗美容
设计机构:质感建筑设计
项目负责:马宏锋
主案设计:马学鑫
参与设计:马佳涛、陈文玲
项目地点:广东揭阳
建筑面积:400平方米
主要材料:手工漆、洞石、瓷砖、免漆板、玻璃砖、玻璃
设计时间:2022年8月
竣工时间:2023年2月
文案策划:修合文化
空间摄影:逐一视觉
-欢迎投稿-

