大数跨境
0
0

【获奖作品】中赫设计:空间之上 自然入怀

【获奖作品】中赫设计:空间之上 自然入怀 中国室内
2025-12-03
2
导读:好的设计,创造更好的生活方式

好的设计融于人性,将家居带入悠闲自在的情景,努力创造一种更好的生活方式。
——单钱永


傍江而居,晨起于在江风的问候,日暮于江畔落日美景,入夜揽一江星月与万家灯火入梦。装得下城市的灯光阑珊,亦装得下江居的悠然惬意。

客厅


屋主希望家是一个干净、沉稳、宁静的空间。设计师通过现代简约的设计手法,利用黑白灰棕的低饱和色调,表达生活空间的质感和厚度。通过岁月的慢慢积累,实现生活日常和艺术美学的融合。

客厅


进门那一刻,明亮且沉稳的气息便迎面而来。温润的原木,纯白的窗帘,灰色的沙发,空间干净优美,富有秩序感,在流动的慢时光里带来原始而淳朴的感染力,让家成为惬意所在。

江景


在色彩元素的使用上,设计师以大体块横平竖直的表达手法,这样能够保持视觉的延伸度,还能勾勒出空间的线条和结构,凸显空间的气质与高级感。

江景


江景是空间的亮点,靠窗的玻璃茶几不破坏视野的完整度,薄窗帘让阳光更容易穿透进室内。朗阔格局下光和景明,让人目澈心清。

傍晚的客厅


斑驳的光影,照射在中性色调的空间,泛起温暖的情绪。或慵懒,或柔和,或静谧。任岁月静好,任时间停驻。

客餐厅局部


设计师用柔和且精致的吊灯和一些精美的装饰品,减少素色留白可能带来的些许冰冷之感。沙发背后的书柜,为家增添些许知性,可以让屋主保持对生活的热情与憧憬。

楼梯


本案是复式的错层结构,随着踏步进入二层,就是屋主的主休憩区。白色的踏步搭配黑色的扶手,串联起一二层空间。

主卧


次卧


二层是两个卧室套间,去繁从简,大面积的白色加上无主灯的设计,从视觉上再次增强了空间的宽敞感,并通过立面的深色饰面与地下室的会客厅有所呼应,营造了一种相互渗透的空间感。

灯光效果


灯具微微透出的光。为灰白色的卧室带来暖意,增加高级感和氛围感。

细节


低调的寝居空间,不仅体现屋主生活方式的内涵,更要折射出精神文化的光辉。


生活的灵感是永远不被风格所定义的。简洁得体的设计会让空间在历久弥新之后,不断揉入生活的痕迹,留存家宅生长的可能性,让家成为一个真正的灵魂居所。
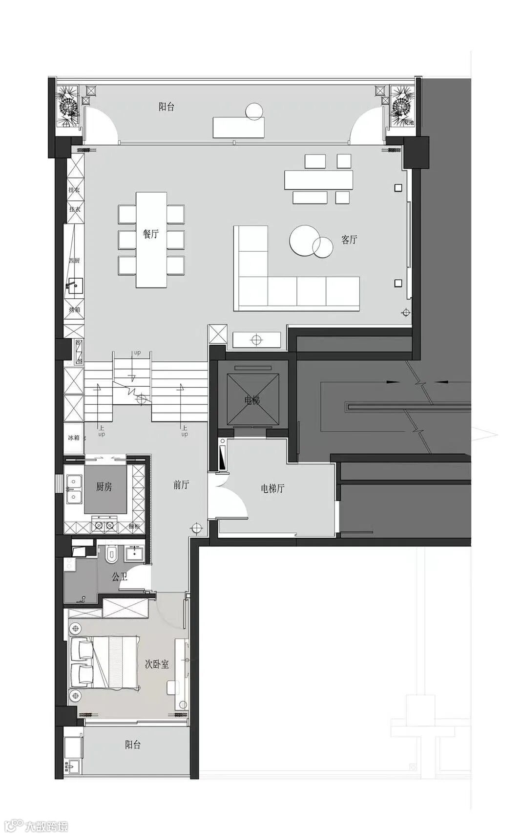
平面图1
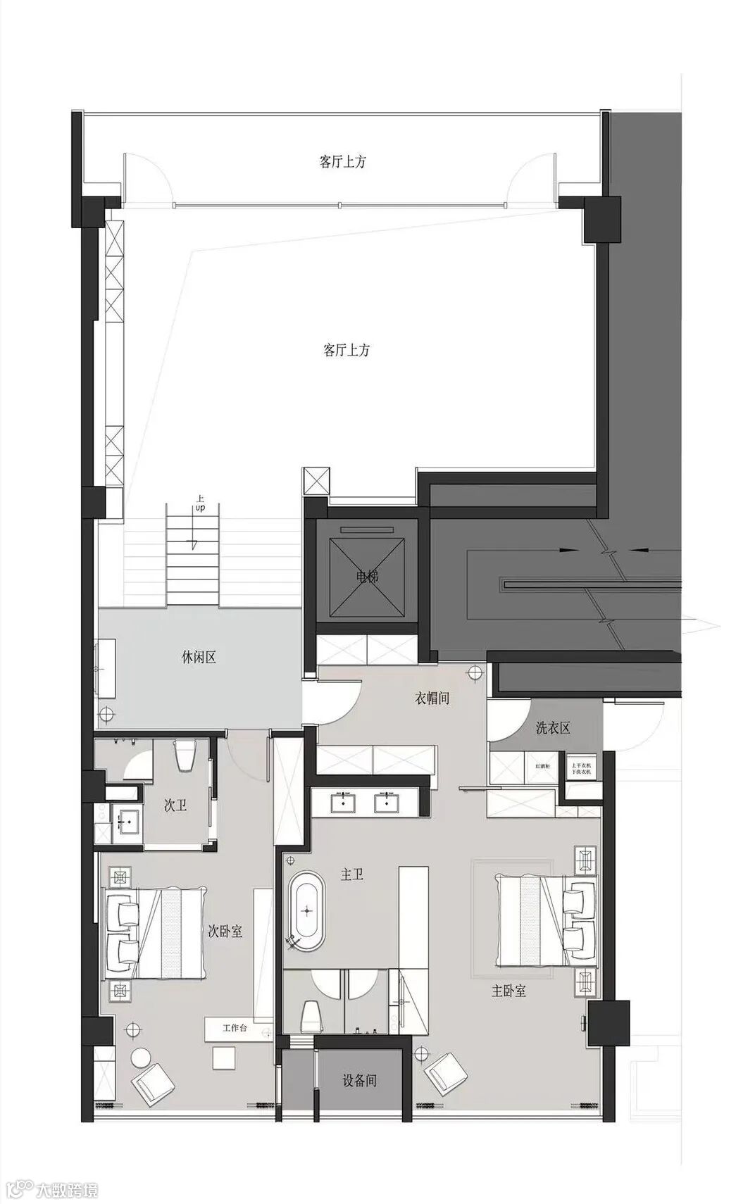
平面图2


项目概况
项目名称:宁波君湾中心
坐落地点:宁波·江北
建筑面积:228平方米
主要建材:摩根全屋智能、木饰面、地板、石材、艺术涂料、墙布
设计单位:中赫空间建筑设计
项目设计:单钱永、施泉春、刘朝科


获奖人简介
中赫设计

施泉春(左)、单钱永(中)、刘朝科(右)


Z.H.SPACE中赫空间建筑设计由单钱永、施泉春、刘朝科三位同窗初创于2001年,并于2011年正式定名。公司拥有一支兼具创新活力和丰富经验的设计团队,致力于为业主提供专业化、系统性、高品质的全程设计服务。中赫设计主要从事总部办公、企业会所和别墅大宅的空间设计,服务企业包括宁波港、柯力、华翔、激智、敏实、长阳、广博、博迁、家联等上市集团和埃美柯集团、杜亚机电、摩根智能、泰来环保、万航实业、宁波牛奶集团、大成律师事务所等知名企业与企业家。多年来,中赫设计凭借卓越的设计品质赢得业界的一致赞誉,获得了包括德国IF设计奖、金堂奖、APDC亚太精英设计奖、 GRP中意国际设计金指奖、金创意奖国际空间设计奖、CIID中国室内设计大奖等国内国际知名奖项。



欢迎投稿

让更多人看到你的优秀作品!
投稿作品仅限首发、新作,接受室内设计、建筑、景观等作品投稿。
邮箱:zhongguoshinei@163.com,投稿请添加“CIID2019”微信~



【声明】内容源于网络
0
0
中国室内
专注室内设计理论与实践 构架室内设计师交流桥梁
内容 1714
粉丝 0
中国室内 专注室内设计理论与实践 构架室内设计师交流桥梁
总阅读896
粉丝0
内容1.7k