
生活是一种律动,须有光有影,有左有右,有晴有雨,趣味就在这变而不猛的曲折里,微微暗些,再明起来,暗得有趣,明乃更明。所有隐匿,只为凸显生活主体,更显高级和艺术味。本案例,设计师借助意式极简风格营造出一个充满内敛和神秘感的空间。优雅、有序,或静或动,温柔、静谧。强大的对比赋予所有颜色更加鲜活的存在。

黑白灰空间|暗调空间的高级感
暗黑的物质概念蕴含在自然之中,与光明同生共长。选择自然石材、金属、木质家具作为空间的基本元素,以黑色、灰色为主导色调,融合自然光和人造光源。穿行其间,赋予无与伦比的美学遐想,生长出支配感官的新生力量。

黑色拥有谦逊和傲慢两种特质,是一种最有态度的颜色。
——山本耀司
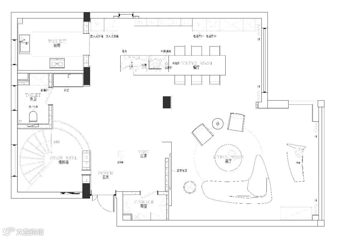
一楼客厅 © UOHO
光影与虚实|简而有光的松弛感
暗调框架的空间里,墙面和家具同样以黑为主,配合木纹等点缀,充分利用自然光源和室内灯光,暗与光完美融合,渲染高级质感,给出了太多惊喜。
餐厨空间 © UOHO
穿行与连接|彼此交融的流动感
犹如深藏冥想的诗篇,时间的流转与目光的凝视交织成温柔内敛的画面,简单而真实的瞬间展现丰富内涵。设计始终持续关注物体与周围空间的关系。极具张力的光通过线的方式贯穿环绕,独特的视觉效果,形成层次之间的延续环绕。随着动线节奏的变化,视线可及的角度也随之变化,空间关系慢慢舒展开来。
共生的形态|光影折叠的温柔感
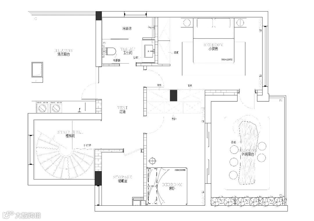
卧室是极为私密的空间,需要的发挥就是极致的放松自我的功能。暗黑色调,为整个卧室注入一股深邃的神秘感,低调又有品味。打破传统稳定的空间轮廓,通过光线勾勒和置入透明盒子的方式,形成各种简洁方块的动态漂浮感,形成更多的视觉穿透视角。
主卫中央部分透明盒子一样的沐浴房冲击力十足。大理石石材的背景,在光与影,虚与实的映射下,充满交织感。
透明盒子 淋浴房 © UOHO
卫生间 © UOHO
项目名称:汇景名苑
项目地址:浙江台州椒江
项目面积:338平方米
设计单位:浙江力唯装饰设计工程有限公司
设计团队:邱晓波、施奔澳
深化设计:陈柳任
项目施工:力唯·家
设计时间:2021年11月
完工时间:2023年10月
主要材料:木饰面、艺术漆、岩板、大理石、地板
获奖人
邱晓波
浙江力唯装饰设计工程有限公司 设计师
-欢迎投稿-

