
江宁区
最新消息!
江宁又要添新学校啦!
麒麟科技创新园4号地块配套学校项目
幼儿园地块、小学地块、初中地块
规划来了!

麒麟科技创新园4号地块配套学校项目
位于麒麟科创园光华路以北
运粮河东路以东
项目含幼儿园地块、小学地块、初中地块

(项目区位图)
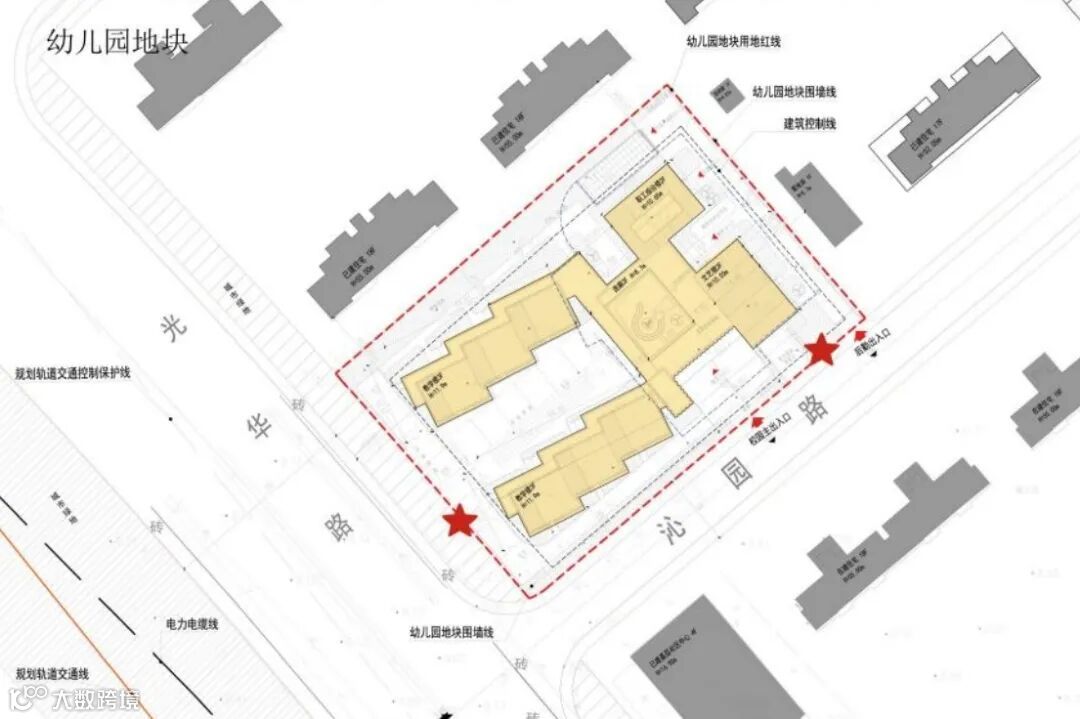
其中幼儿园地块规划用地性质为幼托用地
用地面积为8105.49平方米
规划为18班幼儿园

(总平面示意图)
幼儿园地块效果图


小学地块规划用地性质为小学用地
用地面积为32400.27平方米
规划为36班小学

(总平面示意图)
小学地块效果图


初中地块规划用地性质为初中用地
用地面积为22525.26平方米
规划为18班初中

(总平面示意图)
初中地块效果图


江北新区
宽敞明亮的教室
崭新智能的设施
绿草如茵的操场……
今年9月
江北新区“上新”了6所学校
包括幼儿园、小学、中学
跟小编一起来看看吧~

沿江街道的新幼儿园来啦!
兰新路幼儿园是一所全日制公办幼儿园,占地面积5438平方米,建筑面积6031平方米,园所规模为4轨12班制。幼儿园里有生活室、多功能活动室、科发室、美工室、图书室等多个活动场所,可以让孩子们在这里学习与探索,促进全面均衡发展。

在户外,幼儿园满足孩子们的童真,既有沙池、水池、大型滑梯等,也有丛林探险、骑小车、踢足球、跳房子等游戏设施,更有孩子们喜爱的“宠物乐园”。

南京市江北芳草园小学(详情:9月开学!这所学校终于来啦!)位于新区顶山街道临滁路12号,东至七里河,西至浦滨路,占地面积约55.8亩。

学校由南京市芳草园小学校长高丛林兼任校长,南京市芳草园小学副校长陈浩担任执行校长。在“孩子的笑脸是学校的阳光”教育理念的引领下,江北芳草园小学努力建设成为师生共同成长、自主成长、快乐成长,且具有内涵发展优势的现代化、高质量、高品位的学校。







9月,这6所靓丽的新校园启用,学生们也将享受到更美好的学习环境。
近年来,江北新区不断加大教育投入,加快教育项目建设,截至2022年底,已有53个项目完成竣工投用,总投资约101亿元,新增学位近5.12万个。新区学校数量以“每年新改扩建10余所”的速度增加,现已有中小学、幼儿园190所,确保孩子们学有所教。
2023年,江北新区还将完成6个项目的竣工交付。


