DAIHE DESIGN
Style:新中式
House Type:四室两厅
Service Pattern:全案设计
Project Address:南山· 雍景湾
Area:150m²
Completion:2020
Design Agency:道和全案空间设计
中式风韵,是传统文化和现代理念的碰撞和融合,也是文化自信和精神涵养的一种表达。
既追求东方意境之美,同时不乏现代时尚元素,设计师延展中式风格,打造人文雅致、安然舒适的传统居室空间。
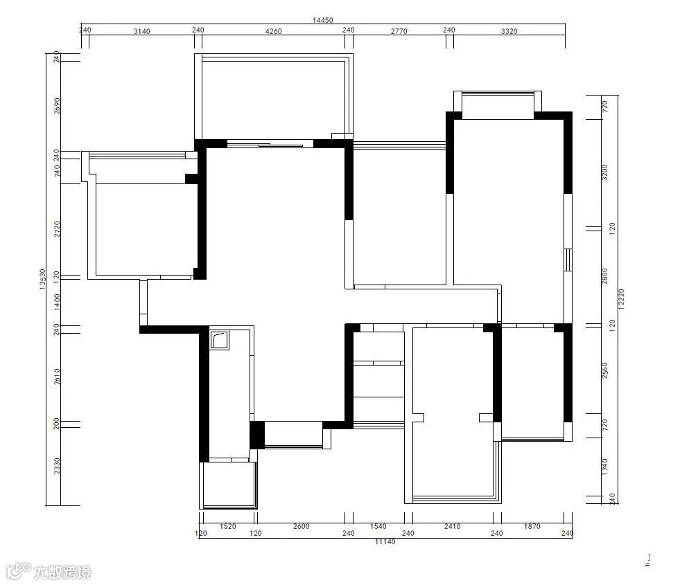
△ 原户型
△ 平面图
设计师说:
1、客户为一家3口,偏向通透又不沉闷的中式风格,喜欢新中式的家具又不希望家里做的中式老气,所以我们在设计中加入了许些时尚元素。
2、结构方面,厨房面积不大,占用了餐厅面积,餐厅相对说比较小,所以我们把生活阳台取消,并入厨房,面积不大相当于是中厨,所以冰箱和高柜也放出来了,和餐厅一个整体,这样餐厅显得大很多。
3、主人房的房门正大门,设计师专门做了一个独立衣帽间,和卫生间连成一体,避免卫生间的门正对着主卧的床
客 厅
中式 · 诗意
DESIGN
温润雅致
全屋木饰面,质感细腻温润,做为起承转合的背景色柔和而不张扬,大地色系作为主调将居室格调渲染得更为温暖雅致。
整体空间布局井然有序,传达着中式对称之美,良好的采光让空间更加通透明亮。
艺术出于自然,而高于自然,带着对人文山水的体悟与沉淀取其意,演其境,用其韵,将诗意驻留在空间,传递着内敛的情怀,涤荡出岁月的光华。
玄关尽可能多的量体储藏,以三分露七分藏的原则、以不对称的手法、以黑白灰木的配色,满足更多生活需求、重塑新的动线关系。
餐 厅
九月 · 启程
DESIGN
随笔小记,温馨永念
移步餐厅,墙面搭配大面积的黑板,随手小记,冰箱贴画,使空间更具温馨感。
半开放式的厨房设计,小型吧台补充更多的使用空间,家人在这里一同料理,加载出更多亲昵的生活场景。餐厅以围合的简式餐桌椅、纯净的水晶灯饰、精致的花艺,打造温馨喜乐的就餐氛围与生活的仪式感。
主 卧
雅致 · 舒适
DESIGN
淡雅,舒适
主卧的床品增添了中式的设计,色调更有质感的突显。松花蓝色的床头背景图,亮蓝色的摇椅,靛蓝色的抱枕,其中又佐以中式工笔画的花卉图案,提升了卧室整体的雅致格。
偶而闲情时可倚窗而坐,吹着微风,听着音乐,喝着咖啡,舒心满满。
男孩房用略微明亮却不失清雅的色彩点缀,含蓄中充满不谙世事的天真,新奇有趣的陈设体现出独特的创造性与想象力
以“自然艺术”为主题构思设计,最大限度地优化建筑平面,拓展空间,让室内空间尺度阔绰从容,并以优雅弧线贯穿室内,构建流畅动线;若有似无的边界围合着进退得宜的空间尺度。
小空间,大利用,设计师将房间改造为榻榻米床,升降桌为一体,既时尚且储物空间也强大。
在喧嚣的现代都市生活里,愿我们的骨子里总有一份永远抹不掉的中式情结,化为唤醒内心世界的声音,为我们的心灵找到栖息之所。



△ 卧室效果+实景,一比一还原
道和全案设计是集室内设计,软装设计,工程施工为一体的专注打造中高端品质住宅的设计服务公司。我们不care项目的大小与风格,追求去风格化设计,追求一切设计都回归实用性,我们愿意为提升空间价值而不断努力创造。
文案 | 馆馆有霖
设计 | 道和全案空间设计
转载请注明出处
【联系我们】
微信:13640960499
Add:深圳市华商国际大厦六楼

