DESIGN OFFICE
DAOHE
项目地址 /仁山智水
项目面积 / 500m²(联排别墅)
项目风格 / 新中式
常住人口 / 六人
设计机构 / 道和全案空间设计
MY DESIGN
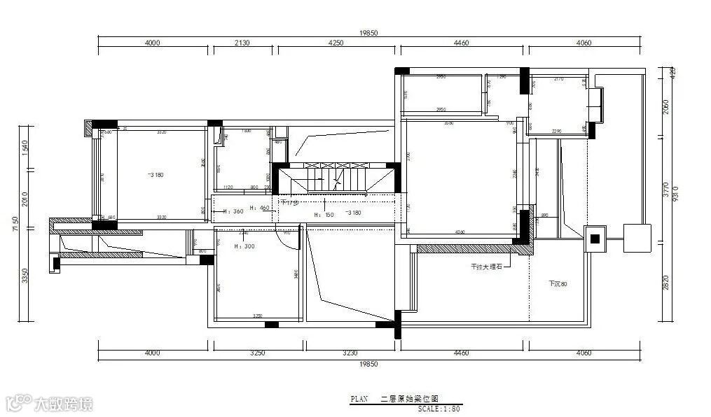
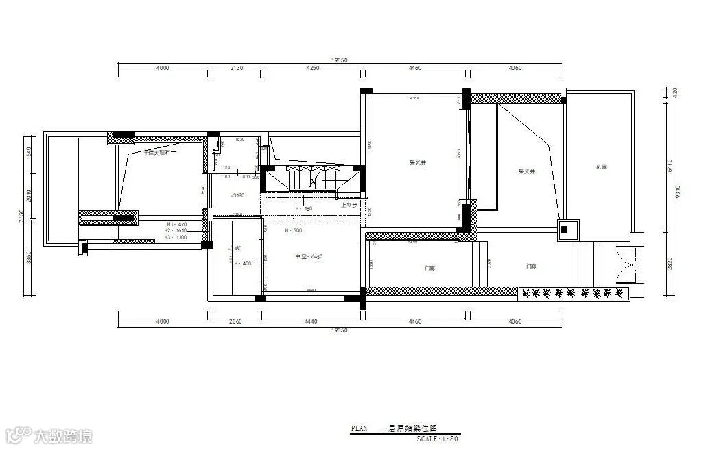
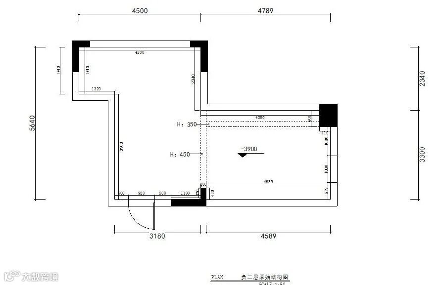
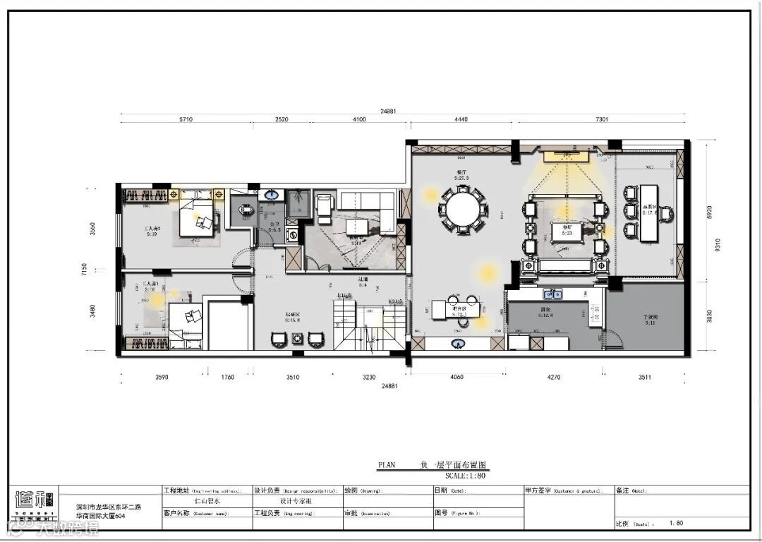
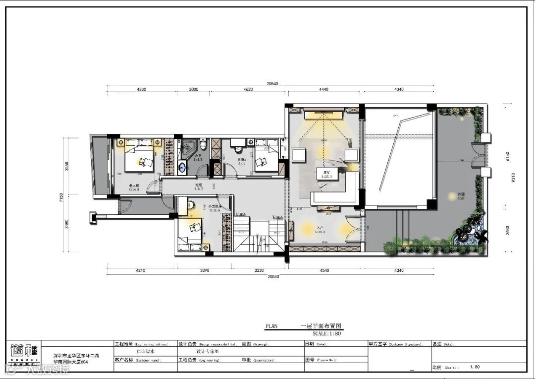
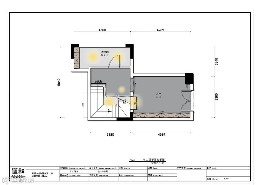
Before 平面结构
左右滑动查看更多
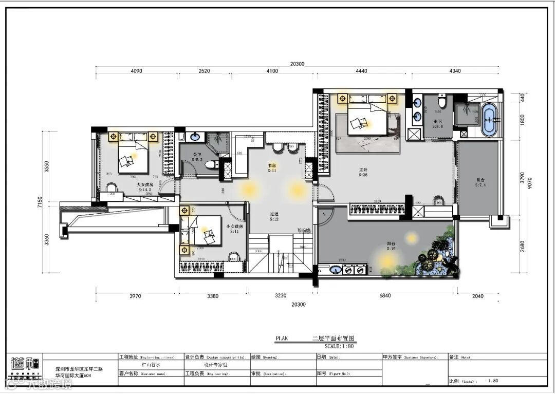
After 方 案 设 计
负二楼
负一楼
一楼
二楼
DESIGN SKETCH
设 计 效 果 图
负二楼入户
从入门口开始,引景入室,用色泽沉稳的木板过渡,一道玄关,将东方的恪守朴心与书香气息灵动地展现在眼前,强烈的仪式感迎接到来的每一位宾客。
在客厅空间塑造中,设计师以现代人的生活方式融入东方气质美学营造意境,并尝试用跳跃的色彩和时尚审美融入具有人文底蕴的简约中式风格之中,生活细节的精到把握,又于共生中见生活美意。
原户型中,客厅、餐厅、厨房都在一楼,家庭核心区域相对局限、拥挤。且屋主是一个大家庭,节日期间亲戚朋友来往较多,扩大公共空间区域的需求亟待解决。于是,设计师做了突破性的改动,将客餐厅以及厨房调整到负一楼,还做成了下沉式的花园,保证负一楼空间的采光。
“各空间可以相互交流,家庭成员之间感情联系更密切,这是我们为这个家打造的一个家庭核心区观念”,设计师说。
品茗区在客厅沙发的后面,浓浓古韵,品一缕茶香,乐享诗情画意。
在这里,沉淀心灵,感受沉静、悠然。
饮食文化作为中国的传统文化,源远流长,而中式餐厅更有着独特的中式韵味。在餐厅装修中融入一些典型的中国元素,圆桌、山水挂画、瓷器摆件,于细微处散发浓郁中国美。
一楼客厅中
一套典雅朴素的中式家具、
一幅意蕴横生的水墨画、
一方古色古香的瓷瓶、
一个满是中国情趣的博古架、
欲遮还休的屏风、飘逸的窗棂……
所有令人心怡的元素,都成就了中式的美。
老人房整体采用米色和咖色作为主色调,加之跳色——绿色点缀其中,与负一楼的宴会厅相呼应。因为老人视力逐渐弱化,故整个空间灯光光线非常柔和、温润。
男孩房,我们利用憧憬梦幻的宇宙蓝,科比“红”,为他小小的心灵种下了一颗勇敢的种子。
童年是拥有无限想象力的时候,所以将她的喜好和个性作为设计前提,加入可爱造型的背景墙以及粉色系床品,让空间氛围变得活泼有趣。
居室之内,岁月静好,
简洁悠闲,素净雅致,
疲惫时卧榻而眠,任它冬去春又来。
主人房以中式设计为主导,原木衣橱,条纹地板,浅淡的床品,安逸而宁静地铺陈,似乎在强调空间的睡眠属性。中式的静谧,于平淡中寻不凡。
卫生间空间以大理石材质上墙,视觉基调更深沉。精致、利落的同时又充满了随性的生活感。
设计师将书房四周用防眩筒灯打光,中间用4个筒灯代替传统大灯,光线柔和、温润。软装上更为简约,黑白配色,极富现代化。
仅留有一间客房用于亲友探访时小憩,尽可能减少家具物件,深木设的静谧氛围,为入住者保持足够平静的舒适性。
CONTACT US
SUMMER
2021
【文案】:馆馆有霖
【设计机构】:道和全案空间设计
【联系方式】:13640960499
【地 址】:深圳市华商国际大厦六楼

