



















































《NO.4北漂白领暖居》
这是一套适合小资女生的单身公寓,有着清新的白和雅致的时尚感。对于女生来说60平米的公寓大小,正好满足自己各式期望。一餐优质的早餐,一个宁静的下午茶或眺望美丽的夕阳……客厅十分素净洁白,在柔和的灯光下有种淡淡的温馨。灰棕色的布艺沙发减少了白色的单调感,柔软的触感能让自己彻底放松。墙上搭出隔板,摆放饰品提升小厅的情调。”































芒!
















































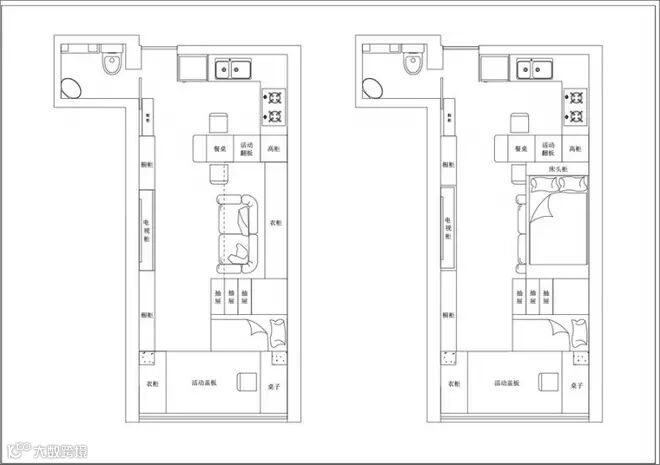
《NO.9绿色公寓》






























































































































整理完13套看完,可以去吐了、头晕...
免费量房 免费验房 网上报名 足不出户 搞定装修
今启网就是这么任性!
申请免费验房、量房请点击左下角"阅读原文"



