久候的终章迎来圆满落笔!
备受瞩目的通京大道东、紫荷路南R24009地块,其项目规划方案已于2025年10月29日正式获得审批。

图源南通数据局官网
这不仅是项目开发进程中的里程碑式节点,更为南通改善型住房市场投下了一枚“重磅炸弹”。
建设项目名称:通京大道东、紫荷路南 R24009地块
建设单位名称:南通天玖置业有限公司
建设工程地点:通京大道东、紫荷路南
总建筑面积:13.7万平方米
规划建设:10-11层洋房,主打“第四代住宅”理念
容积率:1.476(低密度,宜居性强)
绿地率:≥37%(生态绿化丰富,生活环境优越)
图源南通数据局官网
此外,项目还在指标设计中严格遵循了如下要求:
配置不少于2300平方米的公共绿地,且至少三分之二位于日照阴影线之外;
设置3个健身项目,满足居民日常运动需求;
配套建设100平方米以上的议事活动用房、物业管理用房以及非营业性公共设施等;
设置社会公益性配套,如邮政服务用房、老年人服务站、婴幼儿照护站、文化活动站等,提升社区服务功能;
合理配置车位,充分满足现代家庭的出行需求。

图源南通市数据局官网
项目于10月29日完成所有审批手续,这意味着一张属于南通未来的人居新蓝图正式确定。
其合规性、专业性与前瞻性得到了官方的最高认证。
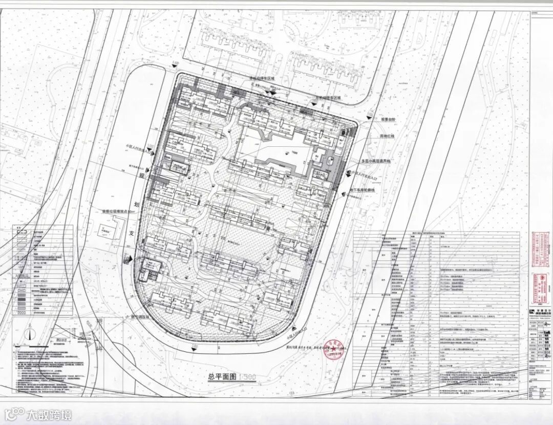
R24009地块批复总平面图 图源南通市数据局官网
在R24009地块的规划中,第四代住宅理念贯穿始终。这种新型住宅产品以“空中庭院”为核心亮点,打破了传统高层住宅缺少庭院空间的限制,使居民在城市中心也能享有自然与私密的居住体验。
效果图
通过创新设计,第四代住宅不仅提升了住宅的使用功能,还强化了生态性、健康性、舒适性,成为城市高端住宅市场的新兴代表。
项目将结合自然景观与现代生活方式,打造“立体园林、空中庭院”的产品特色。
效果图
更值得一提的是,运河院子同为招商建管在南通的第四代住宅标杆项目,成功吸引了大量购房者的关注与追捧,目前销售火热,市场反响强烈。
这一项目的成功,验证了招商建管在第四代住宅产品上的研发、营造与运营经验,也为本次 R24009 地块打造更优质的第四代住宅奠定了成熟的产品基础与市场信任。
最好的产品,离不开最好的地段。R24009地块的价值,更在于其无可复制的地理位置。
丨地块卫星图
生态底色:项目身处主城芯,却被自然温柔环伺。南侧南川河,东侧园林路绿廊安全主题公园,一线河景与城市绿廊成为社区的后花园,推窗见景,归家即是一场穿越繁华的旅途。
交通动脉:通京大道、洪江路,自驾出行高效便捷。更难得的是,地铁1号线(慈善博物馆站/政务中心站)在侧,双轨交汇,让理想的生活成为现实。
商业引擎:项目紧邻大生文化创意产业园,南通主城的新文化地标。周边更辐射印象城、文峰城市广场、圆融广场等南通顶级商业矩阵,吃喝玩乐购一站式满足,执掌城市繁华脉搏。
教育/医疗:通师二附紫东南苑幼儿园、启秀小学、市一初中等全龄段名校环伺,为孩子的成长保驾护航。南通市妇幼保健院等优质医疗资源在侧,为全家健康提供坚实保障。
写在最后:
总而言之,通京大道东、紫荷路南R24009地块,是一个“懂土地、懂产品、更懂南通人”的项目。
它以1.476的极致低密为基底,以创新性的第四代洋房为产品核武器,落位大生商圈这样无可挑剔的黄金板块,并经过专业且严谨的官方审批流程。
这不仅仅是又一个楼盘的诞生,而是南通主城人居的一次价值跃升。一个集稀缺性、创新性、全维配套于一体的改善型作品,已经蓄势待发,未来可期!
请持续关注南通天玖置业有限公司带来的后续动态,这,将是属于南通改善人群的下一个机遇。
免责声明
本项目相关规划指标、配套信息等,均以政府最终审批文件及实际交付为准,前期宣传内容仅供参考。
文中效果图非最终交付标准,实际景观、建筑细节可能存在差异。
周边交通、商业、教育等配套的建设及运营进度,由相关主管部门或第三方负责,开发商不做承诺。
教育资源划片以当地教育部门当年官方政策为准,开发商不保证入学资格。
本宣传资料不作为合同要约或承诺,买卖双方权利义务以《商品房买卖合同》及补充协议为准。
南通天玖置业有限公司保留对本宣传内容的解释权,若有调整不再另行通知。

