【新朋友】点击上方蓝字「探沂信息港」关注我们! 【老朋友】点击右上角,分享或收藏本页! 【广告合作】联系电话:0539-5968123 |

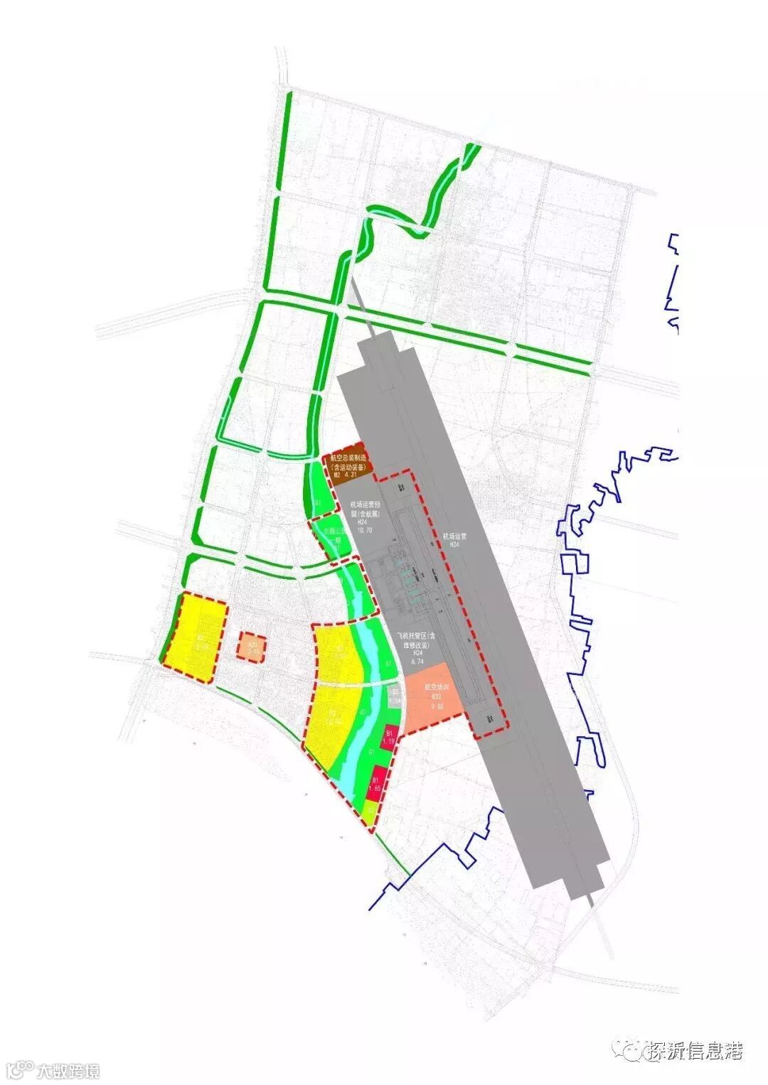
费县通用航空机场即将落地
规划的物流辐射区域
通用航空产业投入产出比为1:10,技术转移比为1:16、就业带动比为1:12。未来10年,中国通用飞机需求总价值达到155亿美元,通用航空产业有望成为我国经济发展新增长点。费县通用机场建成后,将有效带动文化旅游、农林牧业的发展,是实施乡村振兴战略、发展农村经济的助推器,是供给侧改革的新引擎,是加快建设现代产业体系、推进产业转型升级的有力抓手。


来源:费县发布.探沂信息港 编辑:探沂清风

爆料热线☎:0539-5968123
推荐阅读
探沂-费县-临沂退役军人和其他优抚对象信息采集公告!寻找光荣的您!!
探沂-费县-临沂农村户口取消成定局,这3个证件尽早办,能换20万!
探沂-费县家有这种车的赶紧看!国家正式出手了

个人 商家 免费发布
便民 信息
下方⇙⇙阅读原文





