


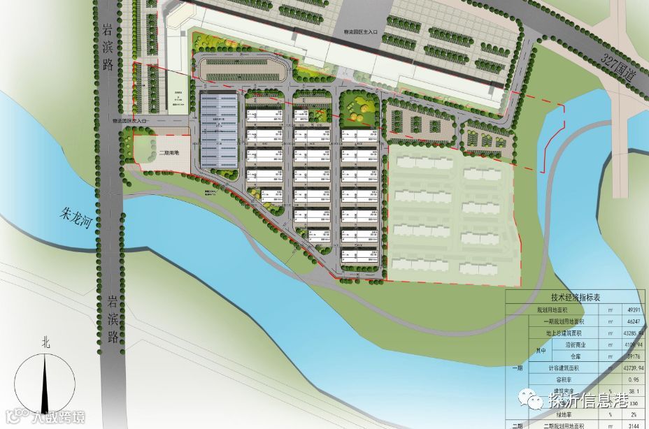
东方智能云仓项目方案公示




费县望沂社区安置区棚户区改造项目方案公示





君诺中央城项目方案公示





您的点赞、分享、收藏、转发
都是对小编的支持
关注最新 热点 资讯 ↓↓↓

获取更多资讯
每日优质商家推荐



↓↓↓免费发布-便民信息·招聘求职·房屋租售
下方⇙⇙阅读原文
探沂信息港


东方智能云仓项目方案公示




费县望沂社区安置区棚户区改造项目方案公示





君诺中央城项目方案公示





您的点赞、分享、收藏、转发
都是对小编的支持
关注最新 热点 资讯 ↓↓↓

获取更多资讯
每日优质商家推荐



↓↓↓免费发布-便民信息·招聘求职·房屋租售
下方⇙⇙阅读原文