◤左下角点击关注不错过,公众号对话框回复楼盘名称,查楼盘◢
五龙云璟 |龙憩苑| 建发观云府| 臻如府|桃李春风苑|紫琅吾岛 |大华铂璟湾| ⭐更多南通在售楼盘
户户有花园、家家有庭院!南通五龙汇板块,惊现“楼市新物种”!
日前,南通五龙汇CR22024地块建设项目施工图设计正式启动招标,南通主城全新第四代住宅项目初步揭开面纱。

根据规划显示,CR22024地块主要为东低西高布局,南侧为4层别墅,北侧为11层洋房,洋房顶部为复式住宅。

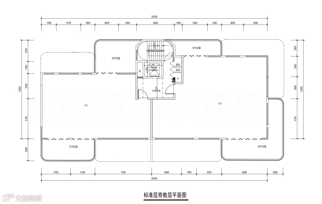
值得一提的是,该项目11层洋房采用错层式布局,奇数层与偶数层相互交错,将院子搬到空中,这样的设计在主城区堪称独树一帜,从而达到空中前庭后院的居住体验感。

CR22024地块奇数层平面图

CR22024地块偶数层平面图
此外,洋房中部分户型还做到了270°转角阳台设计,并且南北均设有空中花园,更近距离地接触运河美景。

意境图,仅供参考
根据设计要求,该项目洋房、小高层层高须3.1米以上,叠墅、别墅层高须3.3米以上,锁定高端序列。
此前消息:招商建管携手招商蛇口江南区域南通事业部中标南通五龙汇CR22024项目代建开发管理服务,将打造全新主城低密度别墅&纯正四代洋房住宅产品。

效果图
2022年12月5日,南通市城市更新建设有限公司底价拿下位于任港湾外环西路东、钟秀西路北侧地块二的CR22024地块。地块占地面积32628.74m²,容积率要求1.08-1.16,成交楼面价10116元/㎡。

CR22024地块紧邻通吕运河,外环西路、江海大道高架、长江路高架均距离不远,同时受南大街商圈和五水商圈辐射,不论是出行还是生活都很方便。
值得一提的是,与地块一路之隔的就是南光澳门中心项目,该地块打造南通首个自带葡式IP风格的滨水风情街。

目前,任港湾五龙汇板块内有五龙云璟、龙憩苑、盛和九里云和、南光澳门中心、建发观云府等多个项目在售,竞争较为激烈。
此次第四代住宅入局,会对五龙汇板块间各个楼盘的竞争带来什么样的变化呢?对于第四代住宅,你怎么看?
欢迎评论区留言讨论。
-END-
点击关注下方公众号
在对话框内回复楼盘名称,
一键查楼盘详情、加买房群

免责申明:1/本文来源南通楼市网,仅供参考和交流,不构成直接投资建议;2/任何投资行为均有不同程度风险性,投资需理性;3/添加微信nt36522,观察君拉你进买房交流群。


