


去年11月24日,苏锡通园区R20033地块历经84轮激烈竞价之后,被大华以10.12亿元的总价顺利收入囊中,楼面价9060元/㎡,溢价率达到101.8%!
随后,项目低调公布案名为大华铂璟湾,并于4月1日正式公开位于开发区永旺梦乐城的城市展厅,现场也是人气满满...
今天上午9:50左右,我积极前往位于槐杨路和枫香路交汇处的大华铂璟湾示范区公开现场,为大家带来相关信息。
刚到的买房人都在置业顾问的带领下进行签到,并领取抽奖券。不少买房人甚至提着头盔就匆忙赶来了。
终于等到10:08分,开放活动正式开始。芭蕾舞惊艳登场,主持人进行简单介绍,领导依次致辞...
开放活动一结束,买房人就如开了闸的水,完全按捺不住激动的心情,相继涌入售楼大厅内。置业顾问也紧跟其上,继续接待客户。

大华铂璟湾共规划24栋11层小高层住宅,共1034户,容积率1.5,绿化率约37%,打造纯花园低密社区。
项目整体楼间距约为45-64m,拥有开阔视野,保障充足采光;楼栋建筑为现代风格,以米黄色搭配咖啡色,格调满满,采用真石漆、涂料材质,历久弥新。
其中,22#为建面约130㎡户型房源;23#为建面约103-117㎡户型房源;24#全为建面约90㎡户型房源。
项目户型图:
▼建面约90㎡3室2厅2卫
独立入户花园设计,后期业主可进行根据自身需求进行改造;据销售介绍这部分面积仅计算一半,这样的设计在整个南通都不多见。
客厅格局方正,与餐厅连为一体,整体动线明朗,空间利用率高,南向双阳台提高了房间采光度和通透性。
厨房呈“U”型,预留冰箱位置,配备方太灶具和油烟机、海尔净水系统、摩恩厨盆和龙头、定制橱柜等。
公共卫生间做到了干湿分离,明卫设计,利于通风和采光。不足的是,淋浴间在洗漱台对面,不仅空间小,而且几乎没有自然采光,这样的设计就较为奇葩。

朝南主卧为套房设计,自带南向尺度飘窗和独立卫浴,空间感十足,拥有一定私密性。
▼建面约117㎡4室2厅2卫
与90㎡户型相同,117㎡进入入户门之后同为一个入户花园,面积更大。

客厅宽阔大气,聚会休闲娱乐皆可,与餐厅相通,每个细节都充分考虑到了一家人的共享空间。
进深约1.5m的南向双阳台,自成一方天地。
厨房同样为“U”型设计,利用空间更大。
朝南主卧为豪华套房设计,拥有尺度南向飘窗、步入式衣帽空间和独立卫浴,主人风范尽显。
朝南两个房间,一个连接南向阳台,另一个为飘窗设计。
朝北房间同样为飘窗设计,样板房将其打造成了儿童房。
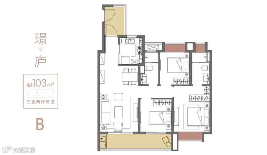
建面约103㎡户型为3室2厅2卫设计,动静分离,独立入户花园,南向双阳台,主卧套房式设计,更大化地扩展业主所需生活空间和景观视野。
建面约130㎡户型总体是115㎡户型放大版,尺度更为阔绰。稍有不同的是,该户型主卧的配套更为丰富:南向独立阳台、浴室内配置有浴缸等。
此外,项目为精装交付,配备博世地暖、大金中央空调、霍尼韦尔新风系统三大件,以及科勒台盆和五金件、摩恩户外挂钩、西蒙开关等国内外一线品牌。
目前,项目已经启动验资,验资金额为50万元。
图源:网络
在生态方面,不仅双水系环绕,而且有双公园绿地(规划),宜居氛围浓厚。

据了解,除了大华铂璟湾之外,今年的锡通板块还将有江海云辰、未来悦、绿城柳岸晓风等纯新盘相继上市,为周边购房人群提供更多选择。
其中,江海云辰已于昨天领取销许,将推出1#、2#、3#、5#、6#5栋楼,共约220套房源,建面约95-112㎡,精装均价19300元/㎡。
眼看锡通板块的新房房价逼近2万/㎡大关,一波正在观望的买房人也已坐不住,不禁惊呼:又一个洼地即将失守。
那么,这几大纯新盘又将取得怎样成绩?我们静待答案揭晓。

免责申明:1/本文来源南通楼市网,仅供参考和交流,不构成直接投资建议;2/任何投资行为均有不同程度风险性,投资需理性;3/添加微信nt36522,观察君拉你进买房交流群。

