近日
据市公共资源交易平台发布
南通市区将新增两所学校
分别是:
南通市通州区古沙小学
南通市海门张謇高级中学
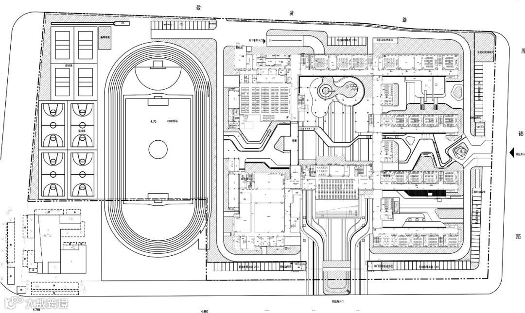
南通市通州区古沙小学

建设地点
碧华路以北、希望路以东,厚德路以西,敬贤路以南地块。
总平面图
建设规模
合同估算价
工期要求
招标范围





南通市海门张謇高级中学
项目设计服务资格后审公告
↓↓↓

项目概况与招标范围
工程设计任务与要求
01
学校概况
1、办学规模:建筑面积共计约10.6万平方米左右。其中教室约9000㎡(62个固定教室,20个选班听课教室,3个合班教室),五大课程基地约19500㎡,教学辅助用房约 9400㎡,办公用房约3700㎡,学生公寓约24000㎡,师生餐厅约5500㎡,生活辅助用房约 1850㎡,学术报告厅约3000㎡(可容纳1500人),体育中心14000㎡以及其他配套用房若 干,地下建筑面积约17000㎡(可停车400辆)。室外活动面积包含1个标准操场、网球 场、篮排球场、乒乓球场、器械活动场地等。张謇高级中学分两次供地(详见用地范围 图),设计时整体考虑,便于分期建设。

2、学校地址:南通市海门区通源河东、珠江路西、北环路北。
3、占地面积:约196亩。
4、建筑面积:约10.6万平方米。
02
总体思路
体现培养学生“德、智、体、美、劳”全面发展教育思想和新教育实验“过一种幸 福完整的教育生活”核心理念。建筑设计与校园文化设计以“服务师生与教育课程”为 宗旨,以中国传统文化和“立德树人”为底蕴,坚持东方美学和现代审美相结合,体现 海门滨江临海的地理特点,以书香、科技、艺术、健体、实践、想象、故事等课程元素 为教育情境,打造布局科学、格调高雅的、立体多维的集高雅艺术、青少年审美、科技 创新、劳动实践、乐学会玩、放飞想象、环境生态、绿色交融等因素于一体的现代化校 园,让每一个空间都拥有自己独特的性格与故事,让学生和老师在校园里拥有更好的生 活交往、学习氛围、工作环境,让学习在校园里像阳光一样自然发生。
03
规划原则
-END-
世茂璀璨未来 中海翠湖溪岸 中铁逸都 美的云筑 祥生云境 滨江道&玺 万科揽境 华宇锦绣澜湾 北纬31度 五龙云璟 长泰滨河国际
开发区/苏锡通
通州区/通州湾

购房咨询添加微信nt36522
观察君拉你进买房交流群

免责申明:1/本文综合南通公共资源交易网、南通日报,仅供参考和交流,不构成直接投资建议;2/任何投资行为均有不同程度风险性,投资需理性;3/添加微信nt36522,观察君拉你进买房交流群。





