今天下午
南通自然资源和规划局发布5宗地块规划调整
其中能达活力岛新增商业规划引人关注
一起来关注下
▽
1
《南通经济技术开发区中心区单元G1-04地块控制性详细规划调整》批前公示

为充分征求公众意见,我局现将《南通经济技术开发区中心区单元G1-04地块控制性详细规划调整》进行公示。公示时间自2022年10月9日起至2022年11月8日止。为便于意见的收集统计,请以书面邮件和电子邮件形式为准。公众如有建议意见,请将书面意见邮寄至南通市自然资源和规划局开发区分局(南通市经济技术开发区宏兴路9号能达大厦16层南通市自然资源和规划局开发区分局,邮政编码226001,信封上请注明“南通经济技术开发区中心区单元G1-04地块控制性详细规划调整书面意见反馈”),或将书面意见发送至邮箱:kfqzgj2021@163.com。
联系电话:0513-89199290
一、调整原因
《南通经济技术开发区控制性详细规划(开发区中心区单元)》(以下简称《控规》)已于2016年8月经南通市人民政府批准。为进一步丰富完善开发区中心区商业服务功能,推进“通城活力新中心”及开发区青年友好型城市建设,南通经济技术开发区管委会提出拟对通盛大道东、创兴路北侧地块控规进行调整。
二、拟调整内容
将地块西侧部分体育用地调整为商业用地,沿湖设置5米宽公园绿地,地块北侧规划新增9米宽通道与景怡路相接。减少的体育用地在滨江湾(暂定名)片区补足。
调整后商业地块指标为:容积率≤0.35,建筑密度≤20%,建筑限高24米,绿地率≥30%。

调整前

调整后
根据此前开发区控股集团发布的消息,能达板块内将规划国际幼儿园、活力岛国际会客厅,构建华邑五星级酒店、凯悦四星级酒店为代表的高端酒店集群,推动能达商务区提档升级。

2
《南通经济技术开发区中心区单元G1-02、G1-07等地块控制性详细规划调整》批前公示

为充分征求公众意见,我局现将《南通经济技术开发区中心区单元G1-02、G1-07等地块控制性详细规划调整》进行公示。公示时间自2022年10月9日起至2022年11月8日止。为便于意见的收集统计,请以书面邮件和电子邮件形式为准。公众如有建议意见,请将书面意见邮寄至南通市自然资源和规划局开发区分局(南通市经济技术开发区宏兴路9号能达大厦16层南通市自然资源和规划局开发区分局,邮政编码226001,信封上请注明“南通经济技术开发区中心区单元G1-02、G1-07等地块控制性详细规划调整书面意见反馈”),或将书面意见发送至邮箱:kfqzgj2021@163.com。
联系电话:0513-89199290
一、调整原因
《南通经济技术开发区控制性详细规划(开发区中心区单元)》(以下简称《控规》)已于2016年8月经南通市人民政府批准。为增强生态绿廊区域活力,完善配套服务功能,南通经济技术开发区管委会提出拟对星湖大道北、龙腾路西侧区域部分地块控规进行调整。
二、拟调整内容
在公园绿地内增加三处配套商业用地,每处占地面积约800平方米。调整后的商业地块指标为:容积率≤0.7,建筑密度≤40%,建筑限高10米,绿地率≥20%。减少的绿地面积在通盛大道东、创兴路北侧地块中补足。

调整前

调整后
3
《南通经济技术开发区中心区单元N2-10地块控制性详细规划调整》批前公示

为充分征求公众意见,我局现将《南通经济技术开发区中心区单元N2-10地块控制性详细规划调整》进行公示。公示时间自2022年10月9日起至2022年11月8日止。为便于意见的收集统计,请以书面邮件和电子邮件形式为准。公众如有建议意见,请将书面意见邮寄至南通市自然资源和规划局开发区分局(南通市经济技术开发区宏兴路9号能达大厦16层南通市自然资源和规划局开发区分局,邮政编码226001,信封上请注明“南通经济技术开发区中心区单元N2-10地块控制性详细规划调整书面意见反馈”),或将书面意见发送至邮箱:kfqzgj2021@163.com。
联系电话:0513-89199290
一、调整原因
《南通经济技术开发区控制性详细规划(开发区中心区单元)》(以下简称《控规》)已于2016年8月经南通市人民政府批准。为落实江苏省、南通市疫情防控相关要求,推进健康驿站等隔离设施加快建设,南通经济技术开发区管委会提出拟对龙腾路西、育贤路南侧地块控规进行调整。
二、拟调整内容
将商业用地调整为卫生防疫用地。调整后的地块指标为:容积率≤1.3,建筑密度≤35%,绿地率≥30%,建筑限高24米。

调整前

调整后
4
《南通经济技术开发区医药健康产业园单元A1-04、A1-05地块控制性详细规划调整》批前公示

为充分征求公众意见,我局现将《南通经济技术开发区医药健康产业园单元A1-04、A1-05地块控制性详细规划调整》进行公示。公示时间自2022年10月9日起至2022年11月8日止。为便于意见的收集统计,请以书面邮件和电子邮件形式为准。公众如有建议意见,请将书面意见邮寄至南通市自然资源和规划局开发区分局(南通市经济技术开发区宏兴路9号能达大厦16层南通市自然资源和规划局开发区分局,邮政编码226001,信封上请注明“南通经济技术开发区医药健康产业园单元A1-04、A1-05地块控制性详细规划调整书面意见反馈”),或将书面意见发送至邮箱:kfqzgj2021@163.com。
联系电话:0513-89199290
一、调整原因
《南通经济技术开发区控制性详细规划(医药健康产业园单元)》(以下简称《控规》)已于2016年8月经南通市人民政府批准。为提高土地节约集约利用水平,保障开发区拆迁安置需求,南通经济技术开发区管委会提出拟对瑞兴路南、新河路西侧地块控规进行调整。
二、拟调整内容
将原居住配套设施用地调整为居住用地。调整后的居住地块指标为:容积率≤1.6,建筑密度≤28%,绿地率≥35%,建筑限高36米。地块内设置居住配套服务设施建筑面积不小于5600平方米。

调整前

调整后
5
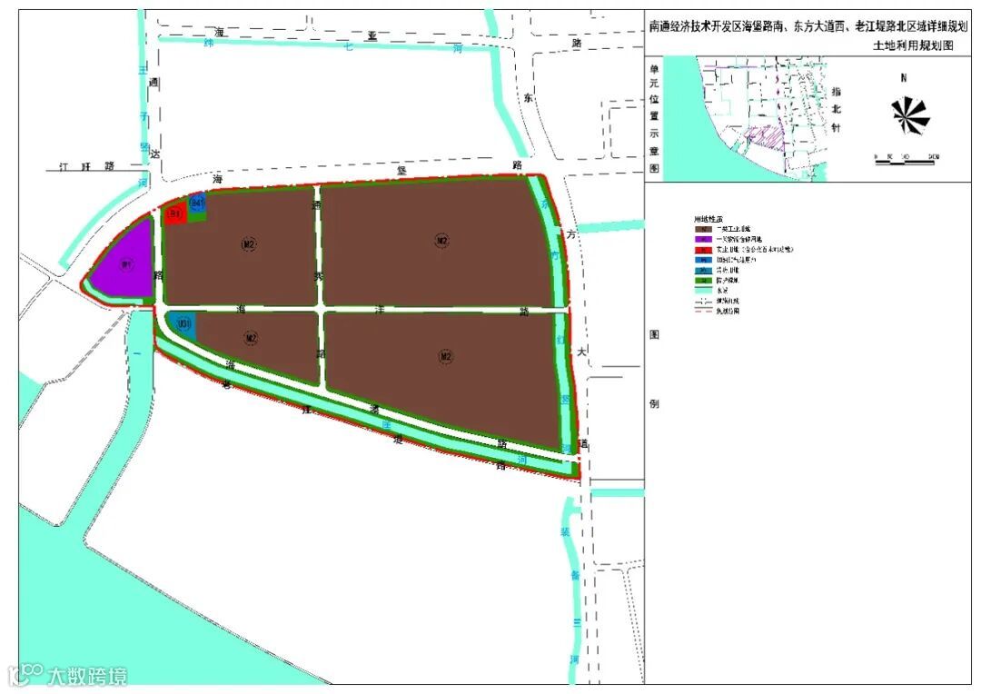
《南通经济技术开发区海堡路南、东方大道西侧街区详细规划》批前公示

为充分征求公众意见,我局现将《南通经济技术开发区海堡路南、东方大道西侧街区详细规划》进行公示。公示时间自2022年10月9日起至2022年11月8日止。为便于意见的收集统计,请以书面邮件和电子邮件形式为准。公众如有建议意见,请将书面意见邮寄至南通市自然资源和规划局开发区分局(南通市经济技术开发区宏兴路9号能达大厦16层南通市自然资源和规划局开发区分局,邮政编码226001,信封上请注明“南通经济技术开发区海堡路南、东方大道西侧街区详细规划书面意见反馈”),或将书面意见发送至邮箱:kfqzgj2021@163.com。
联系电话:0513-89199290
一、规划范围
规划范围东至东方大道,南至老江堤路,西、北至海堡路,规划总面积122.07公顷。
二、规划内容
1、街区主要规划为二类工业用地。通达路西、海堡路南侧规划为物流仓储用地。
2、海堡路南、通达路东规划为商业用地(布置1处工业邻里中心,含公交首末站功能),保留现状加油站。海洋路南、通达路东规划消防站1处。
3、道路两侧绿化带按照“主干道15米、次干道12米、支路5米”标准设置。
4、工业用地控制指标为:容积率≥1.4,40%≤建筑密度≤60%,绿地率≤12%;物流仓储用地控制指标为:容积率≥1.0,建筑密度≥30%,绿地率≤12%;商业用地控制指标为:容积率≥1.2,建筑密度≤45%,绿地率≥15%,建筑限高24米。

调整后


【南通热盘系列】



