
刺激!建面215-249㎡纯粹大户型、全人车分流、铝板+保温一体板立面、3.1米起层高...2023年南通楼市的硬核产品注定是它——
晏园南岸东侧R22002地块!
11月16日下午,由南通市崇川区政府国有资产监督管理办公室主办,南通市崇川国有资产经营控股(集团)有限公司承办的南通市崇川区资源资产推介会在有斐大酒店顺利举办,观察君也在现场见证。

推介会上,崇川区国企国控、建发、园发三大集团从产业环境、营商环境、区位优势、人文环境等角度推介了19个高潜质资产运营项目,其中崇川建发旗下的R22002地块被重点推荐。
R22002地块即为南通人所熟知的通吕运河南侧、晏园南岸东侧地块。今年4月份,南通市城镇房地产开发有限公司底价拿下该地块,房屋最高备案指导均价32000元/㎡。
昨天的推介会上,该项目的具体规划图和户型图也已公布,现在就全部分享给大家。
R22002地块位于崇川主城老城区版块,北侧紧邻通吕运河,南侧也为景观水系,项目周边为已建多层小高层建筑,整体视野开阔,极具景观优势。

该地块周边交通便捷,距离地铁2号线钟秀路站同样较近,周边江海大道高架、濠西路、钟秀西路环伺,无论是驾车还是乘坐公共交通都非常方便。

根据推介会介绍,R22002项目规划设计地上共2栋11F住宅、4栋3F住宅和3栋配套设施,地下为2层地下室。
地块总用地面积9208m²,设计总建筑面积21348.63m²。整个项目容积率仅1.39,建筑密度22%,绿地率37%。

项目设计时全力优化建筑布局,在场地中央形成约800m²的集中景观绿地,同时整个场地绿地率达到37%以上。项目总体布局北高南低,整体项目日照优良。

地下停车小区停车位都位于小区地下,实行"人车分流"。
建筑立面整体采用横向线条,同时横向线条在端部变宽,赋予水纹波动寓意。
建筑主体材料为浅灰色铝板保温一体板,辅以深灰色铝板保温一体板、深灰色金属格栅与玻璃,整体色调清新明快,与现代城市风貌相协调。

作为地产开发者,想要打造这种高舒适度生活体验的奢居,“纯粹”感是必不可少的一环。在户型设计方面,崇川建发也秉持着这一初心。
两栋大平层户型建面为215m²与219m²,两梯两户,每户拥有独立电梯入户。
3F联排别墅,建筑面积约249m²,独门独户独院,每户南北两侧都设有室外院落,提升居住品质。
此外在层高方面,该项目也做到了出类拔萃:11F小高层住宅层高为3.1米,3F住宅层高为3.3米,小高层住宅的得房率都为85%以上,同时阳台都为封阳台,居住体验感极佳。
具体到户型方面:
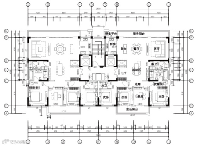
215户型为四房两厅三卫,整体动静分区。北侧动区为客餐厨一体,北阳台位于客餐厅北侧,长达10.5米,充分利用北部通吕运河的景观资源。南侧静区分布四个卧室,充分享受日照,并且卧室南侧配有生活阳台,方便晾晒。

标准层户型
219户型为四房两厅三卫,整体面宽较大,为边厅户型,T字型公区、大面宽客厅和转角阳台的别致设计,给住户带来270度超大观景体验,边侧厨房、餐厅与客厅连成一体,动线清晰。

标准层户型
249户型为独立入户户型,每户共三层,内部预留电梯井,方便用户后期改造安装,首层为厨房、餐厅和起居室,二层为三个卧室和两个卫生间,三层为主卧配有书房和一个独立卫生间。每户一层室外还附赠景观庭院,同时地下配有一层地下室,具有非常高的价值。


根据地块竞买规则,R22002地块限价32000元/㎡,这样的价格在板块内无疑是属于较高位置的,也极大地考验着项目的产品力。
你觉得R22002项目如何?欢迎在评论区留言讨论。
-END-


【南通热盘系列】
@人气热盘
招商公园道 /万科揽境 /长泰滨河国际 / 东升旭辉中心 /滨江道&滨江玺 / 龙湖华德鑫基·天璞 / 尚海湾 / 中海翠湖溪岸 / 绿城柳岸晓风 / 绿城桂语朝阳 / 世茂璀璨未来 / 天皓名邸 / 观江海 / 万科常春藤
免责申明:1/本文来源南通楼市观察,不构成直接投资建议;2/任何投资行为均有不同程度风险性,投资需理性;3/添加微信nt36522,观察君拉你进买房交流群。

