◤公众号对话框回复楼盘名称,查楼盘、加买房群◢
今天(4日)
南通市行政审批局官网发布
《启秀中学滨江校区项目批前公示》
▽全文如下▽
批 前 公 示
南通城市建设集团有限公司委托南京长江都市建筑设计股份有限公司编制完成启秀中学滨江校区项目的规划方案,并将该方案送我局组织审批。为体现规划行政审批的公开、公正和透明性,体现规划管理的公众参与,我局现将建设单位报送的启秀中学滨江校区项目规划方案进行审批前的公示,以听取公众意见。公示时间自2023年8月4日起至2023年8月13日止。相关利害关系人对此方案有合理化意见或建议,请以书面的方式提交南通市行政审批局规划审查处。为便于我局进行答复,书面建议请提供通讯地址、联系人及联系电话。
相关利害关系人对该地块规划方案同时享有要求听证的权利,若要求进行听证,须在公示结束前向南通市行政审批局提出申请,凭本人所持有的拟作出行政许可事项相关利害关系房屋的产权所有证明及本人身份证明文件,将本人姓名或者单位名称、联系方式等予以登记。逾期我局将视为你(或你单位)自动放弃对该行政许可事项进行听证的权利。
申请受理地址:南通市行政审批局规划审查处(工农南路150号南通市政务中心裙楼夹层303办公室);
联系人:曹女士;电话:59000823;邮编:226007
2023年8月3日

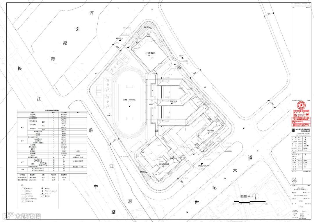
资料显示,启秀中学滨江校区位于长江路高架以东、跃龙路以西、世纪大道以北、海港引河以南,为新建10轨30班初中校区,建设教学楼、实验室、图书信息楼、行政办公楼、体育馆、食堂、门卫室等。
项目用地面积约71亩,地上建筑面积约28500平方米,地下建筑面积约5000平方米;配套建设300米塑胶跑道运动场、室外球场及室外道路、广场、室外管线、围墙、绿化景观等。估算建筑安装工程费为17660.24万元。

-END-
公众号对话框回复楼盘名称,
一键查楼盘详情、加买房群

免责申明:1/本文来源南通楼市网,仅供参考和交流,不构成直接投资建议;2/任何投资行为均有不同程度风险性,投资需理性;3/添加微信nt36522,观察君拉你进买房交流群。


