◤公众号对话框回复楼盘名称,查楼盘、加买房群◢

7月8日
南通市行政审批局网站发布
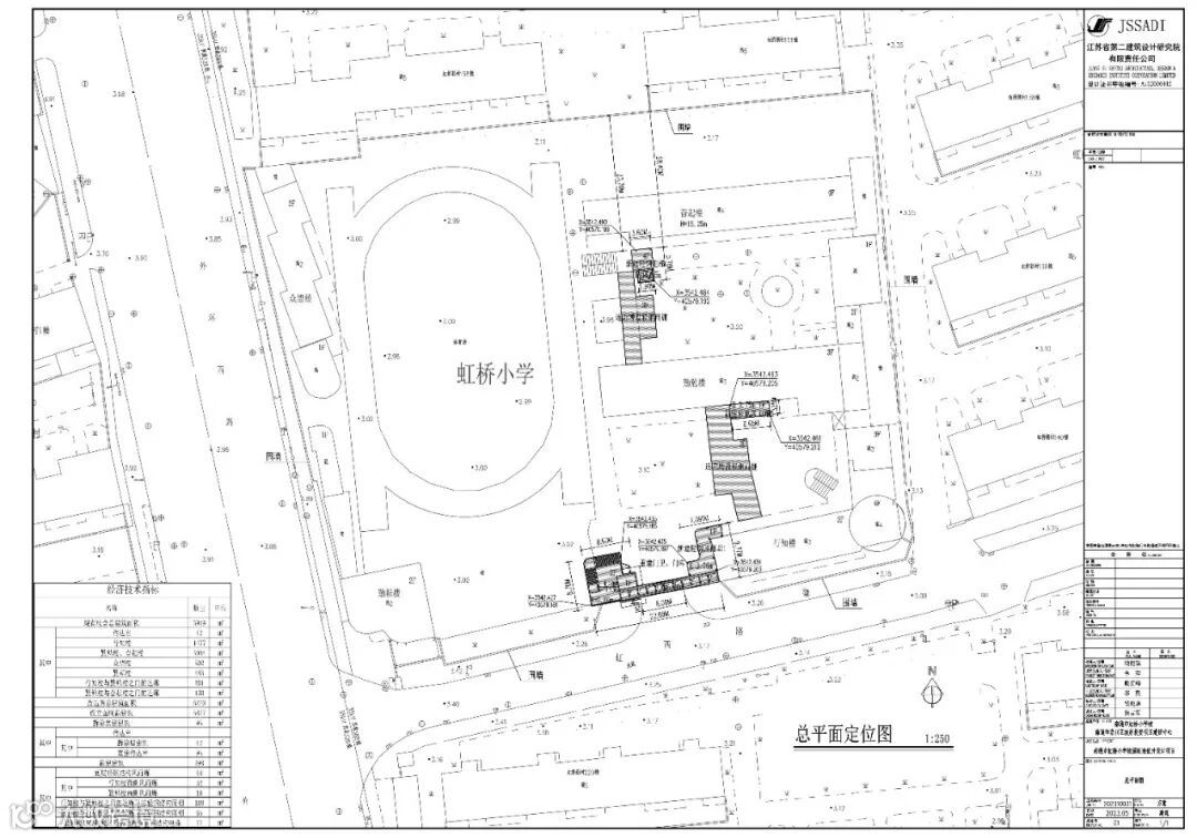
南通市崇川区教育体育局委托江苏省第二建筑设计研究院南通分院编制完成虹桥小学改造项目的规划方案,并将该方案送我局组织审批。为体现规划行政审批的公开、公正和透明性,体现规划管理的公众参与,我局现将建设单位报送的虹桥小学改造项目规划方案进行审批前的公示,以听取公众意见。公示时间自2023年7月8日起至2022年7月17日止。相关利害关系人对此方案有合理化意见或建议,请以书面的方式提交南通市行政审批局规划审查处。为便于我局进行答复,书面建议请提供通讯地址、联系人及联系电话。
申请受理地址:南通市行政审批局规划审查处(南通市工农南路150号二楼243办公室);
联系人:曹女士;电话:59001060;邮编:226007
2023年7月7日


-END-
公众号对话框回复楼盘名称,
一键查楼盘详情、加买房群

免责申明:1/本文来源南通行政审批局,仅供参考和交流,不构成直接投资建议;2/任何投资行为均有不同程度风险性,投资需理性;3/添加微信nt36522,观察君拉你进买房交流群。


